
一器一物,方见始终;原木质感,喜欢的是韵味,一种传承,雅中见致,灵中见韵,东方美学,最美榫卯工艺。
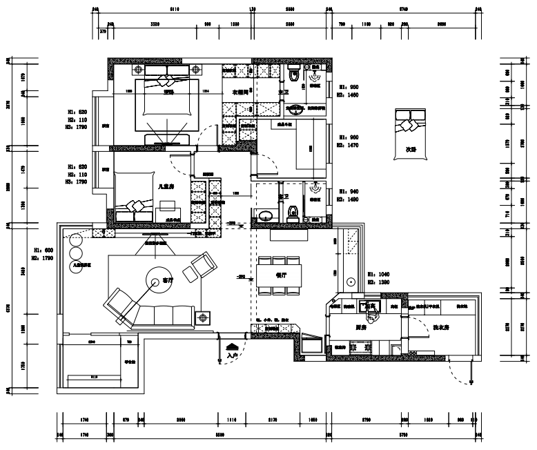
户型分析

-实景品鉴-
·客厅空间
客厅以自然木纹肌理匹配开阔空间,带来文艺高级的艺术气息,简洁线条与质感家居的搭配,呈现雅致、清新的视觉效果。


无主灯设计与原木茶几一起营造出安静,治愈的空间格调,白色窗帘随风飘起,细腻静谧、诗意盎然。


·书房空间
问渠那得清如许,为有源头活水来。在客厅与阳台的过道通往书房空间,简易的书桌在清新的质朴的空间中熠熠生辉,在这里学习也是一种乐趣。


·餐厅空间
餐厅区放置了简易的原色木质餐桌椅,简易的吊灯,彰显了一种平和简约的生活态度。

靠近入户门的墙面也做了顶墙的柜子,整体看着干净整洁,既可以当做玄关柜又可以日常摆放物件使用,中间中间留出一块凹槽,原木色为底,挂上一幅简易画,很有艺术氛围。

另一侧的餐边柜较为赏心悦目,下面封闭式用来储存物品,中间则可以进行装饰,为用餐提供轻松的氛围。
·厨房空间厨房的橱柜同样选用了原木色,而墙砖则是沉稳的浅灰色,一下子就让空间层次丰富了起来,更显大气整洁。

·卧室空间
卧室空间不需要华丽,舒适才是主题。设计师在打造之时,融入了更多的静谧清新之感,并无过多元素的渲染。深浅的色彩,搭配干练的线条,精致的原木色及天然质感让简约与时尚在空间内达到平衡。

·卫生间
干净清爽的卫生间,光影作为视觉惊喜很有格调,设计师运用最简单的元素,赋予空间最自然的感受。

原木独特的肌理和温润的质感极具魅力,无需缤纷的色彩与复杂的结构来烘托,搭配低饱和度的素色,便能够演绎出温暖,沉稳,文艺的空间氛围,即使在经历了漫长岁月的打磨与沉淀后,依然动人。
