今天分享的实景案例来自肥西,是一家四口的家,室内面积168㎡,屋主希望拥有一个简约温暖的空间,设计师结合实际所需以简洁干练的现代风为主,公共空间采用温润大地色系辅以浅灰砖,塑造简约大气的居家氛围。
项目介绍
设计机构|:圣都家装合肥分公司
设计师|:李秄明
项目地址|:高速地产
项目面积|: 168㎡
设计风格|:现代简约
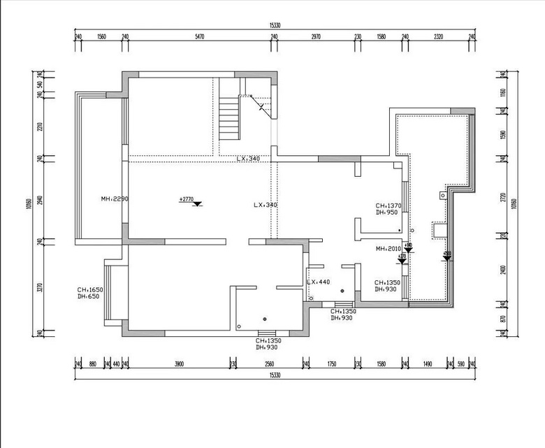
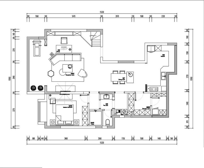
户型分析

?一楼原始户型图和平面布局图
?二楼原始户型图和平面布局图
? 设计亮点:
1.楼梯位置的方向做了变动,便于对二楼的整体布局做调整;
2.一楼墙体被打通,为屋主做了大客厅,同时将阳台纳入客厅,增加客厅采光面积;
3.打通原有生活阳台作为厨房一起使用,延长厨房操作台面;
4.二楼将多余墙体打通,将大客厅一分为二,设计成书房和女儿房,合理规划每个空间。
实景品鉴-
·客厅空间

橙色的皮质沙发与窗帘,结合轻奢的大理石石材,让空间显得现代舒适而高级。当浅色系与棕色系邂逅,冷静沉着的空间多了一份慵懒和舒适,给人带来一种极度轻松和舒适的氛围。


沙发背后放置一条长长的书桌,用大面积的书柜为沙发背景,实用美观,艺术创造和生活思考的域界更加阔敞,丰富的灵感也由此而来!
·餐厅空间餐厅是客厅功能的延展,引导人与人之间更多的交流与沟通。拆除了原本厨房的墙体,整个餐厅看起来更加开阔通透,动线流畅。其乐融融,伴家而归大概这就是向往的生活吧。
·厨房空间
将生活阳台打通,增加厨房的多元化使用场景。厨房区域通过长虹玻璃门与餐厅分割,既防止做饭时油烟四溢,又不影响空间的互动性。
·休闲空间二楼休闲区用于儿女的休闲和学习的场地,将原木风纳入其中,一整排立顶的书柜壁龛用来摆放书籍和摆件,伴随着墨香,沉浸在文学的天地。
·卧室空间
卧室整体的设计感通过简单流畅的线条和高级家具的品质体现,床头背景墙以拼接色作为打底,吊灯的搭配更加突出简单和精致。
通过不同材质和线条的融合,打造空间的立体感,加上素雅的床品色调和室内流行元素,在不破坏休息空间温和氛围的情况下,带给主人最完美的视觉感受。
女儿房的装饰简约素雅,采用棕色木质地板,以高级的脏脏粉作为背景墙,搭配蝴蝶吊灯的装饰,打造一种温馨舒适的休息氛围。

男孩房则是选用清新的天蓝色作为背景墙,同色系床品的搭配,为孩子营造童趣的专属私密空间。
·卫生间空间明卫的设计,让整个卫浴区明亮又干净,洗手台则选用高级的深色系橱柜,下设悬浮橱柜便于清洁死角,实用性与美观性十足。