屋主是90后小姐姐,杭州本地人,对装修很感兴趣,自己也会去研究做响应的攻略,包括智能系统、暖通系统、还有定制和软装,所以屋主在本次装修的参与度也是很高的。
因为是三口之家,夫妻两和一个女儿,所以居室只保留了二室,主卧是套间设计,也比较宽敞,包含化妆间、衣帽间、浴缸区和淋浴区,整体居住体验是很舒适的。

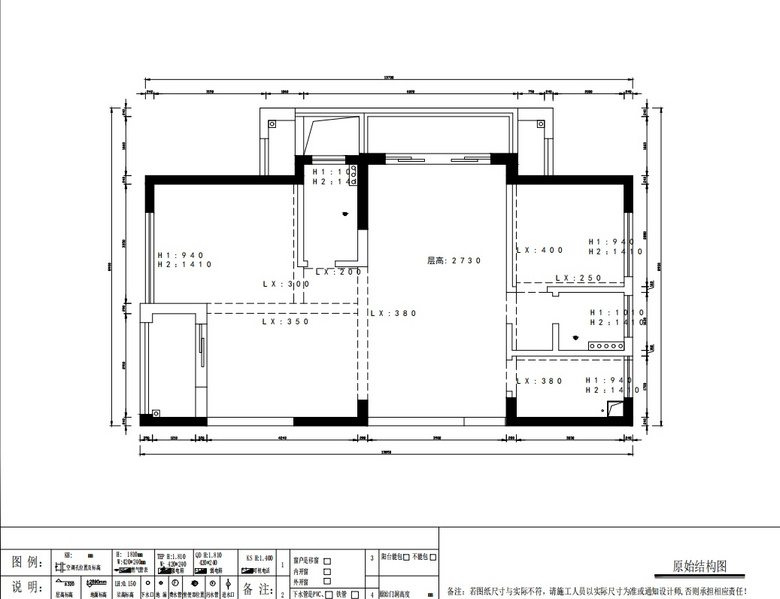
原始结构图
项目地址 / Address:杜湖名庭
设计施工 / Co :铭品装饰
风格 | Style:现代
项目面积 | Area:112㎡

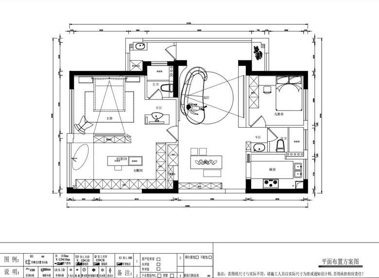
平面设计图
设计亮点:
① 强调从功能出发,保留必要的整洁外观,减少不必要的元素,追求实用、大方、干净利落。
② 采用黑白灰和咖色作为主色调,使用金属色、木色和石材的颜色来实现变化。
③ 空间的合理规划和利用,避免过多的隔断和拥挤感,创造宽敞、明亮和干净的感觉。
④ 利用充足的自然光线和良好的照明设计,增强空间的通透感和亮度。
⑤ 强调家具和装饰的简洁性,追求少即是多的原则,选择简约而不复杂的家具和装饰品。
客厅

把原客厅和卧室的阳台打通,包进客厅,扩大空间的开阔感。靠近卧室的阳台做成生活阳台,客厅阳台做休闲区使用。 两端的承重墙,电视和沙发背景墙都借此做了弧形设计,多增添了些柔和感,显得没那么棱棱角角。

花色大理石做地台,留出的台面还可以做置物区。电视背景墙也做了弧形设计,同时和底层板叠出层次感,电视机嵌入更显完整性。 客厅和厨房的走廊做了干区外置,这里加了一组玄关柜来遮挡卫生间的私密性,也能弥补入户无鞋柜收纳的弊端。
考虑到家里有小朋友,餐椅、沙发和茶几都是圆弧形的造型,放置日常被磕碰到,吊顶也相应的做了弧形设计,和墙面有更好的衔接。 沙发背景墙做了弧形墙叠加,搭配隐藏灯带,墙面会有立体的层次感,色彩丰富的装饰画点缀墙面,增加视觉中心。沙发墙一侧做了隐形门,和墙面很好的融入,推门进去是主卧空间。
餐厅

从餐厅望向客厅,地砖的统一、吊顶灯具的统一让空间更具整体性。

餐厅做了岛台+餐桌一体的设计,边边角角都贴心的做了圆弧处理,座椅是不锈钢材质搭配绒面的座椅,奶呼呼的,坐感也很舒适。 靠墙做了一组L型的餐边柜,白色柜体+无拉手设计,视觉上清爽又大气。中间区域留出台面,加入滑轨插座,可以放一些日常的厨房小电器使用。转角处的餐边柜,将双开门冰箱嵌入,为厨房释放出更多空间。

主卧

卧室地面铺了人字拼木地板,背景墙也做了原木半墙设计,奠定空间温馨的基调。背景墙的上半墙衔接吊顶做了弧形处理,搭配上超宽灯带,有种科技未来的既视感。 床选了奶油白的色系,搭配同色系床头柜,尽显舒适。

床尾是手办展示区和电视区,最右侧留出2个壁龛,收藏屋主的手办。电视背景墙做了悬空处理,上下留出的空隙为衣帽间借光,光线和通风无阻隔。地台嵌入壁炉,即使是冬季也不感到寒冷。

床侧是干区,这里做了黑色和大理石台面的结合,颜值比较高,也有色彩的碰撞。黑色台上盆小巧精致,不用担心外漏隐私,还能为空间增添颜值。背后是马桶区和淋浴区。进门的墙面也合理利用起来,做了全身镜上墙。

电视区后就是女主人的衣帽间、梳妆台和浴缸区啦~ L型的超大衣柜,足够满足屋主四季的衣物收纳,柜门是哑光白,做了圆弧形处理,搭配金属拉手和拱形长虹玻璃,更显精致,虽然说柜子多,看起来也没那么沉闷。 梳妆台是居中摆放的,书桌+抽屉+边几的形式,日常的化妆护肤用品都有收纳的地方啦。

儿童房

女儿房是比较粉嫩的设计,学习区的墙面刷了粉色乳胶漆,搭配同色系书桌、座椅,再置办上搁板,给孩子一个独立的学习空间。 床品和窗帘也延用了粉色系,床尾做了挂衣架,日常的净衣和包包都放在这里。

次卫墙地面都是统一的灰色,会更耐脏显大气些,浴室柜用了黑色营造出层次感,底部悬空也方便清理卫生。镜柜做了延伸,扩大收纳区,马桶是智能马桶,插座是提前预留出来的。