阅读数: 1933 | 回复数: 0

V15 发表于: 2022-10-28 15:18
基本信息:
◆ Area:89㎡
◆ Address:江南之星
◆ Design Style:现代简约
◆ Interior Decoration Design:铭品装饰

【沉沦锦年】杭州江南之星89㎡现代简约风
◆ 原始户型图

主体颜色以灰色展开,烟灰色作为主题颜色,添加胡桃木凸显业主个性而又沉稳的一面。

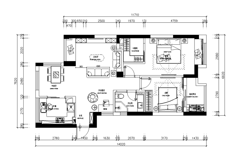
【沉沦锦年】杭州江南之星89㎡现代简约风
◆ 平面设计图

运用现代/纯粹/人文/生活等元素,让每个空间展现最单纯的原型,这些木/石/金属作为最存粹的材质赋予空间最新的面貌,也彰显了无拘无束向往个性的同时又保持着稳重理智的一面。

客厅

【沉沦锦年】杭州江南之星89㎡现代简约风

【沉沦锦年】杭州江南之星89㎡现代简约风

【沉沦锦年】杭州江南之星89㎡现代简约风

【沉沦锦年】杭州江南之星89㎡现代简约风

【沉沦锦年】杭州江南之星89㎡现代简约风

【沉沦锦年】杭州江南之星89㎡现代简约风

餐厅

【沉沦锦年】杭州江南之星89㎡现代简约风

【沉沦锦年】杭州江南之星89㎡现代简约风

【沉沦锦年】杭州江南之星89㎡现代简约风

【沉沦锦年】杭州江南之星89㎡现代简约风

厨房

【沉沦锦年】杭州江南之星89㎡现代简约风

主卧

【沉沦锦年】杭州江南之星89㎡现代简约风

【沉沦锦年】杭州江南之星89㎡现代简约风

【沉沦锦年】杭州江南之星89㎡现代简约风

【沉沦锦年】杭州江南之星89㎡现代简约风

卫生间

【沉沦锦年】杭州江南之星89㎡现代简约风

【沉沦锦年】杭州江南之星89㎡现代简约风
  • 人赞过
查看更多

快速回帖 使用(可批量传图、插入视频等)

表情
写好了,发布  Ctrl + Enter 快速发布