设计背景:沟通设计需求的时候两人一致表示喜欢敞亮的空间氛围,最好能将储物空间隐藏起来,一眼望去干净通透,另外要有木色元素,舒适自然的北欧风无疑是最好的诠释。
◆ Area:140㎡
◆ Address:三江名苑
◆ Design Style:北欧风

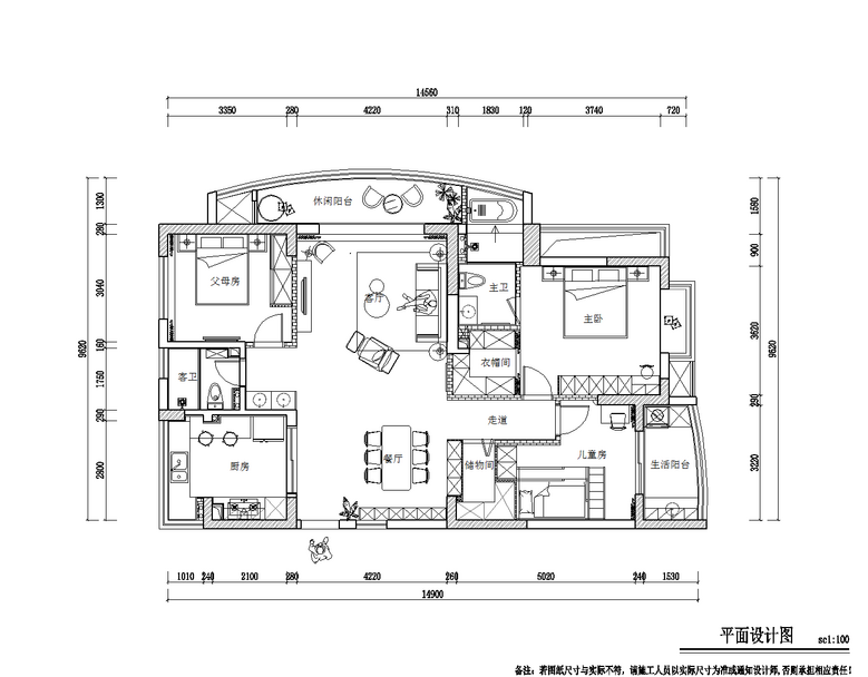
原始户型图
玄关
设计亮点:
入户玄关处我们设计了一个独立的鞋柜,三层倾斜抽拉式鞋柜+一层置物柜,这样的组合搭配完全够汪先生夫妇二人生活储物需求。
客厅
设计亮点:
整体空间以木色为主色调,简单的吊顶、干净的纯白色墙面成就一个简单干净的空间。地面选用金牌亚洲80×80cm的瓷砖铺贴,浅灰色纹理将整个空间沉下去,复合配色让空间不至于显得寡淡。
软装搭配:
家具纵向排布,首先在视觉上就呈现一个干净利落的效果,其次墙面选用美国威仕伯乳胶漆+黄铜包边木饰面,生活品质由内向外散发。装饰画和窗帘选了朱红色,用以点缀,让整个空间鲜活起来,也不会显得太过于素雅单一。
餐厅
设计亮点:
因为二人对储物需求极强,所以我们在有限的空间中尽可能多地设计储物柜,它的外观、质量更是直觉决定了这个家的调性,我们选择名仕橱柜,模压技法让橱柜经久耐用。
软装搭配:
阶梯式储物柜既可以摆上绿植点缀空间,白色与木色绝妙的组合更是不落俗套。
厨房
设计亮点:
厨房——外卫洗手台——客厅电视墙在一条水平线上,用吊顶走线组合栅格木饰面,形成隔断空间,既起到了隐形空间保护隐私的作用,艺术效果上也达到呈现。
软装搭配:
超大的厨房空间,让女主人大展身手,也给了两人更多下厨互动空间,干净的空间让人心情也自然明朗起来。烟机选的是方太这个大品牌,用起来质量更是没的说的。
主卧
设计亮点:
主卧算是空间中难的一见的亮色,床头背景墙用的是花色墙纸,虽然亮眼却不庸俗,这对设计的要求也是相当高的,这种设计也普遍流行于温暖的北欧色系设计中。
软装搭配:
床尾我们设计了一点小巧思,把橱柜空间分出110cm,打造一个属于女主人的梳妆台,上层放护肤用品,桌面放化妆品,洞洞板也分担了桌面的收纳。
次卧
设计亮点:
次卧从地面到床品再到灯饰,木质气息贯穿全局,选择温暖亲肤的棉麻质地的床品,由内而外散发亲人、舒适的睡眠氛围。
卫生间
设计亮点:
将洗漱空间挪出卫生间,将其设计在客厅空间拐角,这样既方便了主人家日常使用,也可以分担一些卫生间的功能需求。墙面铺贴20×60长方形罗马利奥亚光砖,哑光材质的墙面能有效地减少光污染,保护视力。
阳台
设计亮点:
阳台做了大封窗的处理,大封窗的好处就是完全不用担心卫生处理问题,花木桌椅,有序布局,简直是人生一大惬意之事。
软装搭配:
植物向阳而生,我们亦喜向阳而居,这样美好的生活环境生活怎么能不美好呢。