装修公司已确定
现有89房高层房一套,打算装修,但是客厅的厕所门开得位置不好,电视机背景墙和沙发对不到一块儿去,就算把厕所门移位,沙发也正对不了电视机,求助有没有什么好的布置方法。
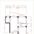
暂时停止…工作先。如图,求设计师,设计方案。 注明设计师!来源19楼,非诚勿扰。建筑面积89方,实用面积大约68方
各位大虾,偶打算开始装修了,预算有限, 想自己设计,跪求中海钱塘山水B户89方设计图以作参考(绝不照搬),多谢啦
你好!我有89方的新房,想要装修,不知道找哪家装修公司好!能帮助推荐一下吗?谢谢!
上周参加了19楼设计传媒大赛,之前也都比较过几家装修公司。觉得圣都的80900套餐不错,平常和媳妇上班都比较忙,考虑这周末和设计师约一下在沟通一下
10月份要交房子了,89方的,预计家电一起搞好15万内,够吗?有信誉,有保障,价格实惠的装修公司可联系一下,西溪海小海的房子
站内短信
附上户型图
有装修过的同户型的效果图,最好~~
过期
房子在下沙,89方的小房子。木工马上结束,找一个包清工的油漆工,有意者可以留下联系方式~
房子上个月才刚交房,89方,做成了三室,所以客厅和房价相对比较小,请了021工作室设计,现在出到手绘设计图阶段,大家看看,给些意见。
RT,求问各位达人,预算有限,先完成硬装,家具家电慢慢填,12W够不够
我想找个好的设计公司,设计装修下我的房子,我想尽可能的利用空间,喜欢现代简约的预算大概15w光景89方
滨江89方..半包,简约地中海花园混搭3口之家....求设计装修报价
家里想装中央空调,目前倾向于大金、三菱电机,请经销商,报个价格先,短我就可以。以下是户型图,想把外机放在北面,南面我就转为阳台用了。
全部(4256)
更多