阅读数: 4604 | 回复数: 6

V16 发表于: 2020-03-26 18:59

·绿·野·

沉浸于深林,
过着都市里的小隐生活,
甚是清悠自在。

MHOO|绿野清风·藏在春天里的小秘密 87㎡城市小森林
 

业主需求 
业主是一对新婚夫妇,暂且还没小孩,父母朋友偶尔会过来住。对开放式厨房和客厅的格局要求比较高,收纳系统要多一点,满足后续有宝宝之后的储藏。软装方面喜欢色彩丰富的感觉,跳跃性的色彩也都可接受。想要以暖色调为主,并且需要一个绿植的空间。

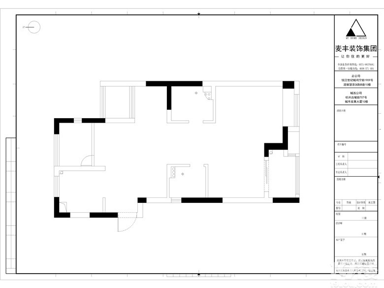
设计方案(户型对比图)
餐厅位置的改动,使得客厅的动线较为宽敞,双向动线更方便业主对于厨房的使用,次卧的高低铺也改善了业主进出阳台的动线,方便后期的晾晒,人员的进出。
MHOO|绿野清风·藏在春天里的小秘密 87㎡城市小森林
MHOO|绿野清风·藏在春天里的小秘密 87㎡城市小森林
 MHOO|绿野清风·藏在春天里的小秘密 87㎡城市小森林

户型优劣势
客厅空间比例不合理,采光有明显缺陷,主卫采光与通风不是很合理。

户型改造
拆除客厅北面的设备平台归入客厅,扩大客厅空间尺度。拆除北面房间隔墙,形成开放式厨房与餐厅空间,加强客厅与餐厅的连贯性,增强客厅的采光面积。同时获得一处小空间,便于灵活使用。

设计感悟
希望我所设置的空间,能让业主感受到温馨与美满,往后的时光也让小宝宝有一个充满乐趣与多彩的世界。
  • 人赞过
查看更多
V16
发表于: 2020-03-26 19:06


客厅 Living Room
本案坐落于杭州 [ 铁建西湖国际城 ]。设计师擅长现代风格,在空间规划和色彩调控方面有独到的见解和体会,让居住空间有利落的线条和丰富的层次,给业主城市里的隐居生活。
MHOO|绿野清风·藏在春天里的小秘密 87㎡城市小森林

棉、钢、布、木格栅、长虹玻、蜂窝砖等多种材质的精细臻选,让质感在刚与柔、冷与暖的对比中渲染与众不同的气质与腔调。
MHOO|绿野清风·藏在春天里的小秘密 87㎡城市小森林
 
设计师巧用大热的莫兰迪色系,呈现一副岁月静好的画面。
色彩运用大胆、不轻挑,让人眼前一亮,高饱和度空间里点缀绿植,令居家生活呈现更多的自然与生机。
MHOO|绿野清风·藏在春天里的小秘密 87㎡城市小森林

Kale 羽衣甘蓝绿像是自然中植被青葱肥沃的样子,居住者时刻感受着生命力的张扬;烟桃粉则是早春时节里散发文艺气质的浪漫色调;暖咖棕接近原木,像是秋日静谧的咖啡屋里一杯卡布奇诺;低调的中性灰让整片空间沉静下来。

MHOO|绿野清风·藏在春天里的小秘密 87㎡城市小森林

墙面的挂画让人身临其境,渴望着碧海蓝天。
忙碌的城市生活中给自己一片温暖与静谧的庇护所,让思绪在治愈中沉浸,梦想在旷野上奔跑。

餐厅Dining Hall
拆除原房间的隔墙,让厨房与餐厅融合,并且使客餐厅成为一个开放的空间,加强采光。
MHOO|绿野清风·藏在春天里的小秘密 87㎡城市小森林
 
MHOO|绿野清风·藏在春天里的小秘密 87㎡城市小森林
 
餐厅地面铺设灰白拼接蜂窝砖,令客厅与餐厅自然衔接。
所谓家,是闹市的宁静一角,是纯粹的情感疗愈之地,你我待在此处不至于饥寒交迫。三餐皆有味,四季常暖人...
MHOO|绿野清风·藏在春天里的小秘密 87㎡城市小森林
V16
发表于: 2020-03-26 19:16

榻榻米Tatami
改造后,我们得到了一处灵活使用的空间,于是将其作为拥有超强储物的会客空间,也可当做以后小孩的爬行区。
以长虹玻璃门作为隔断,既保留了私密性又扩大了客厅的采光。
MHOO|绿野清风·藏在春天里的小秘密 87㎡城市小森林
 
书房Study room
书房主要是满足男主人的办公需求,男主回家偶尔加班,所以绿植与原木搭配容易让人进入沉静思考的状态,书房是半开放的设计,木格栅分隔了客餐厅的烟火气,却不阻碍与家人的交流。
MHOO|绿野清风·藏在春天里的小秘密 87㎡城市小森林
 
主卧 Master Bedroom 
主卧的色彩对比鲜明。明暗、饱和度的深浅调整使红配绿呈现时尚高级的独特格调。稳重不乏热情,精致舒适,满足年轻人对家的畅想。
MHOO|绿野清风·藏在春天里的小秘密 87㎡城市小森林
 
MHOO|绿野清风·藏在春天里的小秘密 87㎡城市小森林
 
卫生间Bathroom
卫生间的门选用了外挂移门,这样节省了开门的空间,柠檬黄让空间显得跳脱。。

因为女业主喜欢泡澡,所以设置了一个浴缸,为了增加外部的衣帽间区域,卫生间相对缩小一点,台盆区也适当缩小,圆柱形粉色台盆让卫生间增加一点温度。
MHOO|绿野清风·藏在春天里的小秘密 87㎡城市小森林
 
MHOO|绿野清风·藏在春天里的小秘密 87㎡城市小森林
 
小景Little Bing
MHOO|绿野清风·藏在春天里的小秘密 87㎡城市小森林
 
MHOO|绿野清风·藏在春天里的小秘密 87㎡城市小森林
 
案例信息丨Case Information
项目地点:铁建西湖国际城
项目类型:住宅
项目性质:全包
项目面积:87m²
项目风格:现代
设计师:麦丰国际设计 陈海勇
项目经理:江啟淦
施工:浙江麦丰装饰设计工程有限公司
软装:东麦家居
主要用材:木地板 乳胶漆 长虹玻 蜂窝砖 木格栅 
装修总投入:硬装18万、软装10万、设备5万
摄影:林峰
文字编辑:北乔
V6 发表于: 2020-03-27 14:59

设计师的电话有吗
V16
发表于: 2020-03-27 15:21

如果您有装修的需求,可以联系我们喔~具体已私信
V6 发表于: 2021-04-14 13:56

棉、钢、布、木格栅、长虹玻、蜂窝砖等多种材质的精细臻选,让质感在刚与柔、冷与暖的对比中渲染与众不同的气质与腔调。
V_16
发表于2021-04-14 15:23
刚柔并济;冷暖相间

快速回帖 使用(可批量传图、插入视频等)

表情
写好了,发布  Ctrl + Enter 快速发布