阅读数: 3711 | 回复数: 6

V16 发表于: 2020-08-13 13:40


[金乌]


MHOO|一枝一栖 时和年丰 180㎡新中式
 

业主需求
业主一家5口人,三个女儿都需要独立的房间,收纳空间要多。喜欢低调点的颜色。

户型优劣势
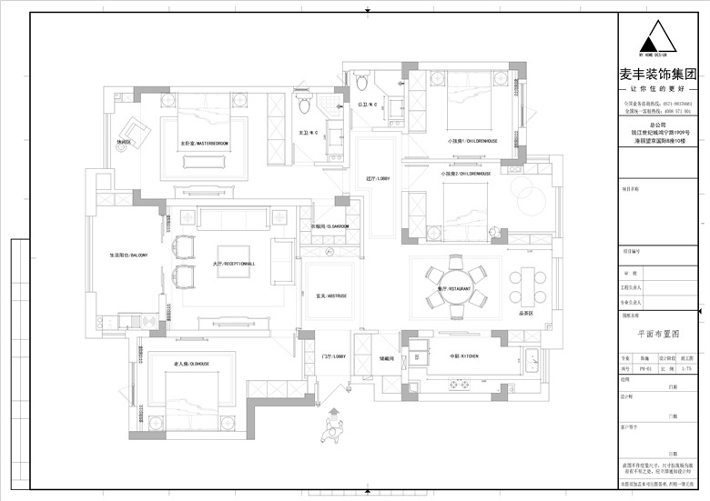
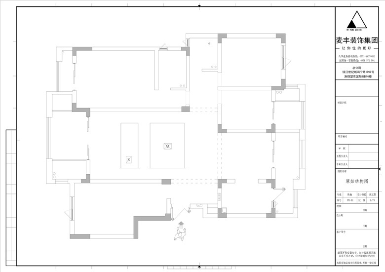
原户型没有玄关背景,没有储物间、衣帽间。房间偏小。北阳台利用率不高。

户型改造
增加了主卧衣帽间,储物间。增大了餐厅,客卧,玄关背景墙。

设计理念
家意味着什么?在外奔波了一天,回到家,或来一杯丝滑的咖啡,或品一盅即时的茶。吐一缕芬芳,求一刻安宁。

设计方案(户型对比图)
MHOO|一枝一栖 时和年丰 180㎡新中式
 
MHOO|一枝一栖 时和年丰 180㎡新中式
 

MHOO|一枝一栖 时和年丰 180㎡新中式
 

  • 人赞过
查看更多
V16
发表于: 2020-08-13 13:45

玄关
       玄关一词早先出自中国,源自道德经:“玄之又玄,众妙之门”。而与现代融合的新中式,则摆脱传统中式的刻板和沉闷,取其精华去其糟粕,而其中带有古韵的新中式玄关,更是集静谧与清雅于一身。
MHOO|一枝一栖 时和年丰 180㎡新中式
 
客厅
       古往至今,中国人一直很讲究待客之道,新中式客厅的气质和品味,体现了中国人深入骨髓的待客礼仪,也传达了一种浓郁的东方式精神境界的追求。
MHOO|一枝一栖 时和年丰 180㎡新中式
 
       客厅布置严整方正,背景墙就像一幅山水画,古韵跃然而生。
MHOO|一枝一栖 时和年丰 180㎡新中式
 
       蟾精雪魄孕云荄,春入香腴一夜开,宿露枝头藏玉块,暖风庭面倒银杯。
MHOO|一枝一栖 时和年丰 180㎡新中式

MHOO|一枝一栖 时和年丰 180㎡新中式
 
餐厅
       餐厅延续客厅的设计,追求低调之美。设计师从实用出发,把储物空间进行分离,增加左右两边的装饰柜,一边作为酒柜,一边作为储物柜。
MHOO|一枝一栖 时和年丰 180㎡新中式
 
      中国人特别中意于圆,不仅是它造型大气,也因它形似满月,又有“团圆”的意思。所以圆桌是新中式风格不可缺少的元素,这里自然不能缺席。
MHOO|一枝一栖 时和年丰 180㎡新中式
 
       放下一天的疲惫,走进餐厅,与家人团座,此刻所食的家常饭,比任何山珍海味都还美味。
MHOO|一枝一栖 时和年丰 180㎡新中式
 
厨房
       厨房,会治愈一个人。如果一个人不喜下厨,可能缺的并不是时间和那份热情,而是一个能打动你的厨房。
MHOO|一枝一栖 时和年丰 180㎡新中式
 
V16
发表于: 2020-08-13 14:25

主卧
       延续客厅的中式氛围,设计师在主卧色彩的处理上,选用了米色作为背景墙色彩,与偏金的卡其色相映成趣,赋予空间更多的包容性。
MHOO|一枝一栖 时和年丰 180㎡新中式
 
MHOO|一枝一栖 时和年丰 180㎡新中式
 

次卧
       次卧相比于主卧,色调会更暗一些,设计师选用米色加金边铺陈墙面,并从床头延伸至窗边,再搭配深色床头柜更融入与协调,而黑色床架与蓝色寝具、绒面蓝色窗帘的运用,让空间简单却富有层次。
MHOO|一枝一栖 时和年丰 180㎡新中式
 
MHOO|一枝一栖 时和年丰 180㎡新中式
 
儿童房
       很多业主喜欢在儿童房布置鲜亮的颜色,但这些颜色看久了就会产生视觉疲劳,并随着孩子年龄的增长,显得越发不合时宜。而这间儿童房选择了较为成熟的配色,整体风格与主卧次卧保持统一,简约不简单。
MHOO|一枝一栖 时和年丰 180㎡新中式
 
卫生间
       卫生间干湿分离,让淋浴区以外的空间保持干燥。
       只凭借简洁的线条装点空间,整体效果看起来简单大方又实用,呈现温馨却不失时尚的质感。
MHOO|一枝一栖 时和年丰 180㎡新中式
 

案例信息丨Case Information
项目地点:龙湖滟澜山
项目类型:住宅
项目性质:全包
项目面积:180平方
项目风格:新中式
设计师: 麦丰国际设计 王蕾
施工:浙江麦丰装饰设计工程有限公司
软装:东麦家居
主要用材:大理石、木饰面、硬包、不锈钢
装修总投入:硬装31万、软装25万、设备12万
摄影:林峰
文字编辑:cc

V7 发表于: 2020-08-20 13:37

不错
V_16
发表于2020-08-21 13:00
感谢认可
V6 发表于: 2021-04-12 14:11

简洁的线条装点空间,整体效果看起来简单大方又实用
V_16
发表于2021-04-12 15:07
麦丰装饰感谢您的关注与支持

快速回帖 使用(可批量传图、插入视频等)

表情
写好了,发布  Ctrl + Enter 快速发布