
当我跨越五大洲、三大洋,走过所有的河谷,寻寻觅觅渴望看见奇迹,等我逛遍全世界回到家里却惊异地发现,奇迹就在我家的后花园里,那一小片叶子上的露珠中。
——《Scream of the Ants》
业主需求
三口之家,简单舒服为主,想要干干净净的白色
设计方案
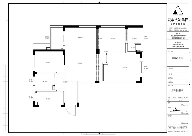
户型优劣势
优势:户型较为方正,采光性好
劣势:户型入户有点狭窄,只有一个卫生间
户型改造
1、避免过道过于狭长,入户走道设计了玻璃砖和开放式厨房
2、卫生间做了干湿分区


步入房中,映入眼帘的是
柔和的木色与纯净的白
空间沉浸在温馨、恬淡的氛围里
让居住者放下疲惫
感受归家的愉悦