阅读数: 6693 | 回复数: 13

V15 发表于: 2017-07-04 13:58
碧  梧
所有的朴素都会归于生活的随心所欲,简单,却精彩。

富春和园(现代北欧 面积:130㎡)
 

案例信息
项目名称:碧梧
项目地址:杭州·富春和园淳和苑
项目面积:130㎡
项目风格:现代北欧
项目户型:三室一厅
设计团队:麦丰装饰·城西全案设计七中心
施工单位:浙江麦丰装饰设计工程有限公司
主要用材:定制实木家具、进口彩色乳胶漆、通体砖
摄影师:林峰
文字编辑:夕花朝不拾

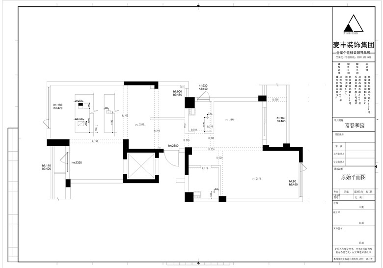
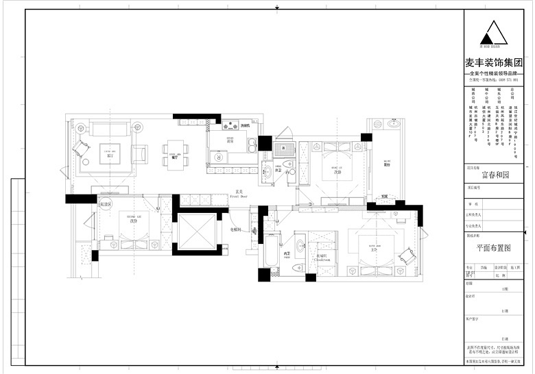
户型的优缺点】
   本案户型方正,客厅在北面,餐厅在中,采光一般。设计师将房子定位为北欧风格,以生动活泼的色彩,弥补中套采光不足的问题。

客户需求
   本案是一家六口之家,空间规划有三个卧室。装修期间夫妻俩喜获二宝。男主人一力承担装修事宜,为妻女打造温馨的生活空间。因为是双千金,要求色彩搭配更活泼些,还需要宽敞的孩子玩耍空间。

设计方案(户型对比图)】

  • 人赞过
查看更多
V15
发表于: 2017-07-04 13:58

▼客厅 Living room
   生活是朴实的,又是多彩的。配合客厅灰色的空间基调,设计师采用时尚、明亮的软装物件搭配,轻松提升空间活力。姜黄的棉麻窗帘带来扑面而来的浪漫气息,彩色地毯吸引孩子们在这里嬉戏流连。
富春和园(现代北欧 面积:130㎡)
 
富春和园(现代北欧 面积:130㎡)
 
富春和园(现代北欧 面积:130㎡)

▼餐厅 Dining room
   开放式的餐厅选用的是实木桌椅,不止于环保,更贴合“亲近自然,还原自然”这一主题。餐厅旁边设置嵌入式置酒柜,整体风格返璞归真,自然清新。
富春和园(现代北欧 面积:130㎡)

▼厨房 Kitchen
   蓝白相间的格调历来都为大多数艺术家喜爱,通体砖、镜面油烟机的选用提升亮度,视觉上延展空间。厨房结构紧凑,布局巧妙,整洁明亮。
富春和园(现代北欧 面积:130㎡)
 

V15
发表于: 2017-07-04 13:59

▼主卧 Master  bedroom
   主卧采光较好,设计师以纯度较低的暖蓝墙面与棕色的窗帘搭配,营造通透温和的视觉感。彩色的装饰画艺术气息的点缀,提升空间的质感。为屋主打造一个宜人、静谧的睡眠空间。
富春和园(现代北欧 面积:130㎡)
 
富春和园(现代北欧 面积:130㎡)

▼次卧 Bedroom
   卧室以黄色与沉稳的灰色演绎动与静的完美结合。和谐的色调,简单的配饰,打造安静的休憩之所。
富春和园(现代北欧 面积:130㎡)
 
富春和园(现代北欧 面积:130㎡)

▼儿童房 Kids room
  儿童房以可爱的粉色为主,温馨美好。墙上的斑马和鹿,处处都洋溢着童趣的烂漫。墙角的阅读空间给孩子一方学习天地,处处都彰显了父母对孩子爱。
富春和园(现代北欧 面积:130㎡)
 
富春和园(现代北欧 面积:130㎡)

▼卫生间 Bathroom
  与厨房遥相呼应,卫生间的主色调也糅合蓝白的优雅魅力,镜柜艺术感兼具实用功能,洗手台很好的兼顾孩子和大人的身高,金属的挂画和搭衣架更具质感,刚柔相济,打造简约又精致的卫生间。
富春和园(现代北欧 面积:130㎡)
 
富春和园(现代北欧 面积:130㎡)

V4 发表于: 2017-07-04 16:47

作品不错
V4 发表于: 2017-07-05 13:14

这个半包还是全包的,清单你们这边有吗
V5 发表于: 2017-07-05 16:45

次卧的猫和鱼的壁画很有意思,床品四件套有链接么?
V15
发表于: 2017-07-05 17:25

半包的喔~
V15
发表于: 2017-07-05 17:25

业主自购 我们没有的哈~
V5 发表于: 2017-07-07 09:21

卫生间果然还是做干湿分离比较好
V6 发表于: 2017-07-08 10:17

卧室粉嫩嫩的感觉
V6 发表于: 2017-07-10 15:00

现在还是喜欢北欧简洁干净,又不会冷冰冰的,这套还是很成功的了
V6 发表于: 2017-09-02 22:04

各房间的色彩,很有特色,130方的半包多少价格?多问一下:半包包括哪些?
V15
发表于: 2017-09-03 09:29

查收私信喔~

快速回帖 使用(可批量传图、插入视频等)

表情
写好了,发布  Ctrl + Enter 快速发布