阅读数: 2260 | 回复数: 2

V16 发表于: 2019-12-23 15:26

好的设计可以让这一空间的生活方式发生根本的变化。
 
【光影故事】 155㎡现代美式设计

本案将大美风与金色碰撞,彰显出浓郁的贵族风情。空间的设计不拘一格,手法流畅利落。以温和的大地色系强调温馨的归属感,深棕色彩注入沉稳的格调。设计师删繁就简,思考空间设计的本质,创造出简约利落的美式空间。
 
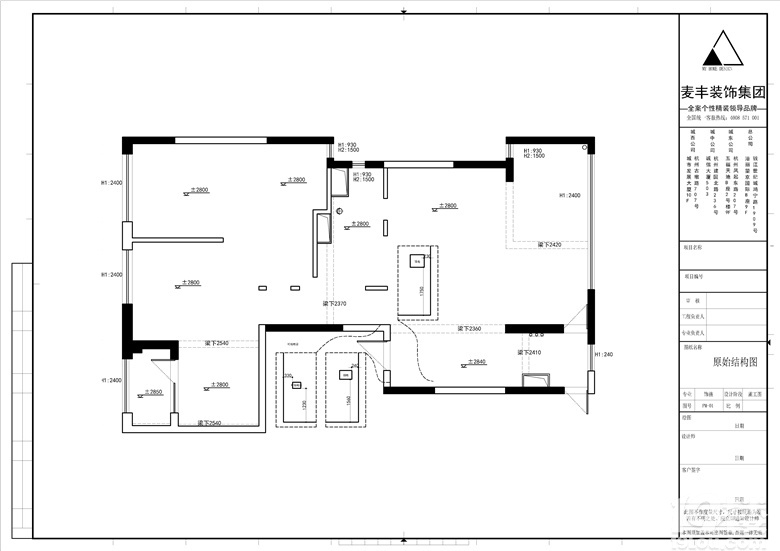
户型的优缺点
      本案原始户型虽然客餐厅空间较大,但是整体是个不规则的L型,利用率不高,而且一进门就能看到北阳台,气氛也不是太好。设计师在改造这一块大空间的时候,直接把北阳台和原来的客餐厅融合成一个巨大方形空间,然后分割成四个功能区——客厅、餐厅、阅读区和书房,并且用活动百叶窗和百叶门隔断,让这四个空间既分离又连贯。

客户需求
改变户型劣势,让L型的客餐厅空间得以充分利用,采光通透,每个空间独立又连贯。

设计方案(户型对比图)

【光影故事】 155㎡现代美式设计
 
【光影故事】 155㎡现代美式设计
 

  • 人赞过
查看更多
V16
发表于: 2019-12-23 15:28


客厅

【光影故事】 155㎡现代美式设计
 
【光影故事】 155㎡现代美式设计
 
【光影故事】 155㎡现代美式设计
 

餐厅

【光影故事】 155㎡现代美式设计
 

卧室

【光影故事】 155㎡现代美式设计
 
【光影故事】 155㎡现代美式设计
 

儿童房

【光影故事】 155㎡现代美式设计
 

卫生间

【光影故事】 155㎡现代美式设计
 
【光影故事】 155㎡现代美式设计
 

 

 

 
V6 发表于: 2019-12-24 14:23

[s2028]

快速回帖 使用(可批量传图、插入视频等)

表情
写好了,发布  Ctrl + Enter 快速发布