阅读数: 3855 | 回复数: 14

V16 发表于: 2020-10-09 15:14

无界之岛

审美是没有限制的,如果看清“美”的本质,那抓住审美,便是抓住了艺术。

MHOO|坠入银河的夜晚 91㎡后现代工业风

▼业主需求
房子是一家三口日常居住的,因为业主把色彩效果和舒适感放在第一位,对色彩非常敏锐且童心未泯,所以希望房子能够更有趣味性,多以活动家具以及软装做点缀,硬装越简单越好。

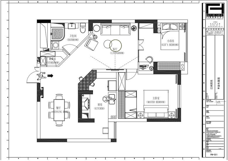
▼户型优劣势
客厅无采光,格局较为方正平庸。

▼户型改造
将3房改2房,空出的房间改成活动空间。

▼色彩搭配
MHOO|坠入银河的夜晚 91㎡后现代工业风

▼设计感悟
房子的风格就如同女业主本人一般,清爽洒脱,简洁干练,蓝灰调子的极简工业风,为了追求井柏然同款也花了不少心思,“趣味不单调”是本案的设计初衷。

▼设计方案(户型对比图)
MHOO|坠入银河的夜晚 91㎡后现代工业风
MHOO|坠入银河的夜晚 91㎡后现代工业风


  • 人赞过
查看更多
V16
发表于: 2020-10-09 15:47

客厅
       利用现代人对色彩的敏锐度,设计师用色大胆,以墨蓝为主色调,配以原木色,混凝土灰,加以复古金属点缀,质感的软装,以及有态度的家具家饰使每一处充满艺术氛围,也让空间有着不同韵律的过渡。
MHOO|坠入银河的夜晚 91㎡后现代工业风

不要茶几,是业主特别要求的。

      业主注重孩子的成长,既怕孩子在家横冲直撞,又想着给孩子更大的活动空间,于是移除了茶几,在视觉上也显得空间更加开阔
MHOO|坠入银河的夜晚 91㎡后现代工业风

      原户型的客厅在暗处,没有采光,设计师通过长虹玻璃门引进儿童房的光线,通过斜面拉伸空间视觉,从而解决了客厅小而暗的问题。
MHOO|坠入银河的夜晚 91㎡后现代工业风


餐厅&吧台

腰缠万贯,日食不过三餐。

      设计师认为,好的设计不是一味做堆砌和装饰,而是去做一些减法,拒绝传统的设计思路,打破固有的棱角,才能让不可能变可能。
MHOO|坠入银河的夜晚 91㎡后现代工业风


吧台上的棕榈泉花瓶是软装设计师Jonathan Adler 的作品
餐桌上的金色顶灯来自丹麦家具设计品牌Gubi
其余饰品大都来自意大利品牌seletti
每一个细节都彰显了后现代风格的独特魅力。
MHOO|坠入银河的夜晚 91㎡后现代工业风


厨房
厨房是生活的开始

      高对比度的黑白蓝厨房时尚又前卫,灰暗配色的厨房常常需要在灯光上多些亮点,设计师用筒灯完美点缀,简约不简单。
MHOO|坠入银河的夜晚 91㎡后现代工业风
MHOO|坠入银河的夜晚 91㎡后现代工业风
MHOO|坠入银河的夜晚 91㎡后现代工业风

V16
发表于: 2020-10-09 17:10

卧室

      卧室沿用了整体的后现代工业风,大片的空间留白,加上相得益彰的暖光设计,让人充满归属感。
MHOO|坠入银河的夜晚 91㎡后现代工业风

      清晨,当阳光透过百叶窗照进室内,闭上眼睛,让阳光肆意地洒在脸上,是被幸福笼罩的感觉,心情也是豁然开朗,一扫阴霾。有一种暖,冬天里自己也觉得暖。
MHOO|坠入银河的夜晚 91㎡后现代工业风

儿童房
      业主比较前卫,孩子的房间没有采用传统带柜门的衣柜,而是选用了宜家货架式衣柜,好处是可以任意组合,随着孩子年龄的增长,可以随时调整衣柜。既方便实用又减少了造价成本。
MHOO|坠入银河的夜晚 91㎡后现代工业风
MHOO|坠入银河的夜晚 91㎡后现代工业风


活动区
MHOO|坠入银河的夜晚 91㎡后现代工业风


设计师品牌落地镜
特斯拉tesla model s童车
Seletti装饰镜
北欧炫彩茶几
kartell水晶灯
Daniel arsham +disney+apportfolio米奇联名公仔
(从左到右顺序)
MHOO|坠入银河的夜晚 91㎡后现代工业风
MHOO|坠入银河的夜晚 91㎡后现代工业风
MHOO|坠入银河的夜晚 91㎡后现代工业风

卫生间
       恰到好处的工业元素,让这个卫生间自带swag属性。 粗狂的大理石纹理,和口红化妆镜相碰撞,形成反差,增加了空间的可看性。
MHOO|坠入银河的夜晚 91㎡后现代工业风


小景
MHOO|坠入银河的夜晚 91㎡后现代工业风
MHOO|坠入银河的夜晚 91㎡后现代工业风


案例信息丨Case Information
项目地点:江南国美
项目类型:住宅
项目性质:全包
项目面积:91平方
项目风格:后现代工业风
设计师: 麦丰AR原创国际 赵蕊
施工:浙江麦丰装饰设计工程有限公司
软装:东麦家居
主要用材:艺术涂料、乳胶漆、不锈钢隔断门、轻钢龙骨石膏板、鱼骨铺地板等
装修总投入:硬装24万、软装5万、设备6万
摄影:林峰
文字编辑:cc

V7 发表于: 2020-10-14 13:35

这个颜色很年轻化
V_16
发表于2020-10-14 15:03
充满活力喔
V6 发表于: 2020-10-16 16:33

[s5027]
V_15
发表于2020-10-21 17:24
感谢您的关注与支持!
V6 发表于: 2020-10-23 14:38

可以约这个设计师吗
V_16
发表于2020-10-23 15:15
可以的 感谢您的关注和支持
V7 发表于: 2020-11-02 09:27

[s5027]
V_15
发表于2020-11-24 13:40
感谢关注~
V6 发表于: 2021-04-08 16:23

审美是没有限制的,如果看清“美”的本质,那抓住审美,便是抓住了艺术
V_16
发表于2021-04-08 17:22
精髓啊
V7 发表于: 2021-04-09 15:40

无界之岛
V_16
发表于2021-04-12 15:07
感谢关注~

快速回帖 使用(可批量传图、插入视频等)

表情
写好了,发布  Ctrl + Enter 快速发布