阅读数: 3626 | 回复数: 8

V16 发表于: 2020-11-06 17:01

「炭」

美好设计,源于对品质生活的追求。

MHOO|这个家火了!灰色+法式元素 140㎡大气优雅之家

      本案作为现代轻奢风格,选用自带金属光泽的装饰物和线条柔美的家具作为点缀, 彰显空间整体庄重感,展现主人的优雅气质。

▼业主需求
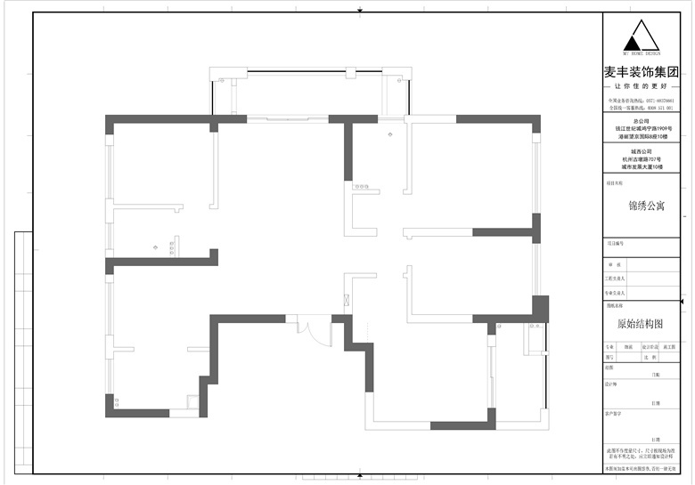
一家三口,原结构房间太多,但业主喜欢大空间,也需要一个大衣帽间用来收纳。

▼户型优劣势
本案是高楼层的边套,采光很好,不足的就是厨房空间不够大,房间也比较小。

▼户型改造
房间比较多,但只要二个卧室,所以主卧做了一个套间,还有一个卧室做成了中厨房,
打造出一个社交西厨房,主卫利用客厅阳台做出一个浴缸。

▼设计灵感
设计手法上运用了比较深色的材质,如地面的砖,柜体门板。对于大空间来说,用深色更显稳重。

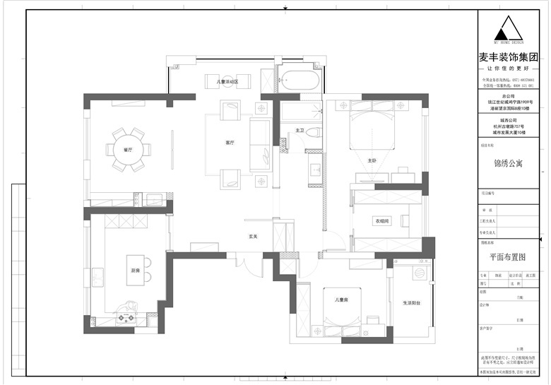
▼设计方案(户型对比图)
MHOO|这个家火了!灰色+法式元素 140㎡大气优雅之家
MHOO|这个家火了!灰色+法式元素 140㎡大气优雅之家

  • 人赞过
查看更多
V16
发表于: 2020-11-06 17:13


玄关Entryway
      窄边金属框+夹金丝的长虹玻璃
      让空间形成虚实结合的意境,同时给客厅部分留有悬念。
      玄关选用灰蓝背景墙,用线条和艺术挂画给每一位回家的人营造仪式感,为归人扫去一日奔波的疲乏。
MHOO|这个家火了!灰色+法式元素 140㎡大气优雅之家


客厅Living Room

真实的世界不是非黑即白,
而是黑白依存、相互制衡的状态。
MHOO|这个家火了!灰色+法式元素 140㎡大气优雅之家

       将颜色在空间中的运用降低。我们用丰富的材质和线条在这个流通的“大空间”中勾勒出低调奢华的生活场景。
MHOO|这个家火了!灰色+法式元素 140㎡大气优雅之家

      温润自然的护墙与如镜面般光滑亮泽的大理石搭配在一起,衬托别样的雅致。
 MHOO|这个家火了!灰色+法式元素 140㎡大气优雅之家
MHOO|这个家火了!灰色+法式元素 140㎡大气优雅之家

      浅色地毯为客厅空间注入轻盈感。就像赤足柔软的草地,与亲人围坐畅谈,营造浪漫温馨的居家氛围。
MHOO|这个家火了!灰色+法式元素 140㎡大气优雅之家

MHOO|这个家火了!灰色+法式元素 140㎡大气优雅之家


餐厅Dining Hall

       原户型拥有四个卧室,按业主需求保留了一个主卧套间和一间儿童房。
       将一间卧室改造成餐厅,宽敞的空间可满足亲朋好友多人聚餐。
MHOO|这个家火了!灰色+法式元素 140㎡大气优雅之家

      集功能与美观于一体的定制餐边柜让空间更具整体性。拉门后暗藏冰箱、台面可放置咖啡机、豆浆机等料理机器。洗手台和丰富的收纳空间让餐厅功能更显完善。
MHOO|这个家火了!灰色+法式元素 140㎡大气优雅之家

        非洲草原图搭配优雅的法式壁炉营造出温暖且梦幻的用餐氛围。

      “幸福时光就是和家人享受一顿温情的晚餐。”


厨房 Kitchen
      原餐厨一体的空间合并作为厨房使用。业主喜爱下厨,所以需要宽敞的厨房空间满足多人同时料理。

      金属吊灯投射的暖光映照在洁白如玉的石英石台面上,清晨的咖啡与午夜的小酒都在这个吧台上陪我们消磨了时光。
MHOO|这个家火了!灰色+法式元素 140㎡大气优雅之家

V16
发表于: 2020-11-06 17:19

主卧Master Bedroom
       主卧是属于夫妻俩的私密空间,以象牙色的纯、青蓝色的稳来打造一个舒缓宁静的睡眠区域。
MHOO|这个家火了!灰色+法式元素 140㎡大气优雅之家

        印花复古墙纸和两侧深色木饰面装饰让素雅的睡眠空间尽显格调,床头选用金属线形吊灯,亦是增添了一番优雅。
MHOO|这个家火了!灰色+法式元素 140㎡大气优雅之家

       主卧作为套房,配置了超大衣帽间。半开放式设计,两侧是入顶式的衣柜,黑色玻璃门储藏衣物,给业主提供了一个实用方便的衣物收纳与挂放的空间。
MHOO|这个家火了!灰色+法式元素 140㎡大气优雅之家

       正光处设置了梳妆台,摆上一束花,十分清新好看。

儿童房Children's room
       儿童房以宇宙为主题,奶白色软靠结合卡通床品,营造出充满活力的男孩成长空间,飞机吊灯则是房间的点睛之笔。
MHOO|这个家火了!灰色+法式元素 140㎡大气优雅之家

       光线良好的靠窗位置还为孩子设置了看书区域。线条简约的大象腿凳打造慵懒人居。

       设计师将趣味装进生活空间,让家居生活更加鲜活、灵动。
MHOO|这个家火了!灰色+法式元素 140㎡大气优雅之家

卫生间 Bathroom
      卫生间干湿分离,黑色地面的基础,结合雅白的墙面与浴缸,三分离式洗浴空间布置配合金属和玻璃隔断,提供了时尚轻奢的卫浴空间感。
MHOO|这个家火了!灰色+法式元素 140㎡大气优雅之家

案例信息丨Case Information
项目地点:锦绣公寓
项目类型:住宅
项目性质:全包
项目面积:140㎡
项目风格:现代轻奢
设计师:主案设计江威 杨素叶 深化设计钱国妹
项目经理:李钱龙
施工:浙江麦丰装饰设计工程有限公司
软装:东麦家居
主要用材:大硬石,墙纸,护墙
装修总投入:硬装36万、软装12万、设备8万
文字编辑:BQ.

 
V5 发表于: 2020-11-09 11:20

儿童房的灯具很漂亮
V_16
发表于2020-11-13 10:33
感谢支持!
V6 发表于: 2020-11-12 19:49

很稳重的设计 感觉有点贵
V_16
发表于2020-11-13 10:33
这个价格控制的还好的哈~
V5 发表于: 2020-12-02 10:30

男孩房很有特点 去找同款了
V6 发表于: 2021-05-03 15:18

灰蓝背景墙,用线条和艺术挂画给每一位回家的人营造仪式感,为归人扫去一日奔波的疲乏。

快速回帖 使用(可批量传图、插入视频等)

表情
写好了,发布  Ctrl + Enter 快速发布