一、户型分析
1.业主需求:
人员构成:业主夫妇,父母,两个小孩
2.功能需求:6房,独立书房,音影室,休闲区,酒窖,加装电梯。
3.小区介绍
面积:500平方
户型:别墅
风格:意式
4.户型分析
原结构房间均偏小,带露台,赠送面积多,格局改动灵活性强。
负一层、负二层有室内错层,改变楼梯位置,调整动线,将车库包入室内做运动区,区域功能更完善。公卫附带桑拿区,敞开式家庭音影增加整体互动性。
一层:原户型厨房、玄关小,动线不明确。把阳台区含进,加大做独立的入户玄关,通 过对承重柱的处理,做独立的餐厅、茶室。加大通往客厅的楼梯,双通动线,路线灵活。
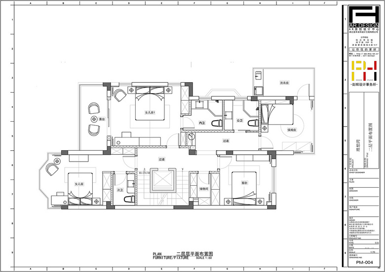
二层:4个房间(2个套房)。取消原客厅挑空区,加一朝南卧室,增加卫生间,做套房。水吧,独立储物间配置,完善居住功能。
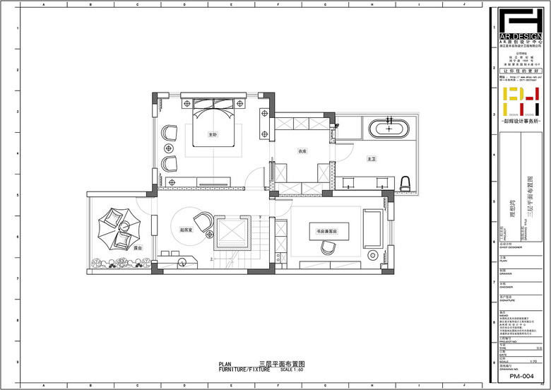
三层:有两露台,业主需求要独立书房,调整原动线,包一露台,主卧套卫生间做三分离,增加衣库面积。起居室做敞开带南露台,空间更灵活。
二、费用投入
1.预计投入:240 万(半包52万、主材103万、家具软装45万、地暖空调、水处理、电梯、设备40万)
2.主要用材:大理石,不锈钢,木饰面
三、创作人员
1.设计团队:彭辉设计事务所
2.施工:浙江麦丰装饰
3.软装:彭辉设计事务所
四、户型图

负一层平面布置图
一层平面布置图

二层平面布置图
三层平面布置图