阅读数: 3055 | 回复数: 3

V15 发表于: 2023-02-16 16:57
琥珀色的春天 130㎡现代轻奢住宅
借光影窥探琥珀色的春天
业主需求
1、家庭主要成员一家四口,夫妻俩+兄妹
2、主卧的设计主调定位为清爽类
3、需要较多的收纳储物空间供家庭后续使用
4、女业主较有生活情调,家中会养绿植
 
改造策略
优势:楼层较高,130方的建筑面积拥有四房两卫
劣势:各个空间相对紧凑,厨房空间对于一家四口来说偏小
 
户型改造:
1、打通与客厅相邻的阳台,扩宽客厅视野,增加室内自然采光
2、客厅与进门处增设玻璃砖分隔出玄关与客厅各自空间,丰富空间层次

琥珀色的春天 130㎡现代轻奢住宅
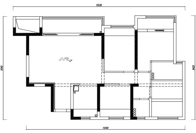
/原始结构图
琥珀色的春天 130㎡现代轻奢住宅
/平面布置图

玄关
琥珀色的春天 130㎡现代轻奢住宅
入户可见一面到顶收纳墙,拥有物品摆放、收纳、换鞋及挂衣等多种功能。
玄关尽头的平行纹不透明玻璃砖隔断面,引入厅内光线的同时也可巧妙地划分空间。
琥珀色的春天 130㎡现代轻奢住宅

  • 人赞过
查看更多
V15
发表于: 2023-02-16 17:19

客厅餐厅前后相邻,共用一处吊顶。客厅靠里,由磁吸轨道灯、筒灯和灯带共同提供照明。
琥珀色的春天 130㎡现代轻奢住宅

琥珀色的春天 130㎡现代轻奢住宅

琥珀色的春天 130㎡现代轻奢住宅
客厅黑白灰色调一致,深青色沙发的加入似是经典搭配中的出彩之笔,除去色彩上的巧思外,亮面皮质与磨砂材质的碰撞打破了一致的单调。
琥珀色的春天 130㎡现代轻奢住宅
左设收纳柜,右留空设室内阳台,可做物品摆放、衣物晾晒及儿童玩乐等多功能区域使用。
V15
发表于: 2023-02-16 17:21

餐厅
琥珀色的春天 130㎡现代轻奢住宅
餐厅与客厅共用吊顶,天花板筒灯充当基础照明,餐桌上方吊灯补充用餐灯光,四座餐桌配色与客厅主色相呼应。
琥珀色的春天 130㎡现代轻奢住宅
对面设置有收纳柜,分为两大区。左边柜体由上至下分隔出三区,上方为透明收纳格,内布灯带,氛围满满,中间做镂空处理可用于存放小型家电,下方即为传统收纳柜。

厨房
琥珀色的春天 130㎡现代轻奢住宅
厨房位于餐厅右侧,用厨动线明朗,采用玻璃推拉门,同时满足油烟隔绝与光线贯通。
琥珀色的春天 130㎡现代轻奢住宅
厨房面积较小,U型设计可将空间利用率提升至最高,考虑到功能应用与人体工程学,三区域的高度宽度均与所需功能相适配。
V15
发表于: 2023-02-16 17:26

主卧
琥珀色的春天 130㎡现代轻奢住宅
卧室转为暖色调,深棕木地板与土黄色磨砂墙共同打造温润安睡空间。
琥珀色的春天 130㎡现代轻奢住宅
主灯与床头吊顶灯完美满足基础照明与局部照明的需求。硬装色调深浅划分,增加空间层次感。

儿子房
琥珀色的春天 130㎡现代轻奢住宅
趣味太空灯与月球吸顶灯为家居增添了几分童趣,儿童房不仅是卧室,同时也兼作书房,挂墙桌面与柜面最大程度的节省了室内空间。
琥珀色的春天 130㎡现代轻奢住宅
书桌旁的飘窗是孩子劳逸结合好去处,靠书桌的飘窗上配有同色系的开放收纳格,可做书籍收纳和玩具收纳两用。

卫生间
琥珀色的春天 130㎡现代轻奢住宅

琥珀色的春天 130㎡现代轻奢住宅

案例信息丨Case Information
项目地点:大名城华府
项目类型:住宅
项目面积:130㎡
项目风格:现代轻奢

快速回帖 使用(可批量传图、插入视频等)

表情
写好了,发布  Ctrl + Enter 快速发布