
把生活嚼的有滋有味
把日子过的活色生香
往往靠的不是嘴
还有一颗浸透人间烟火的心
业主需求
业主是一个豪爽性格的90后企业家,做事思维方向明确,十足的细节控,喜欢强烈的黑白对比,新房是两人常住,父母偶尔来住,预留了未来孩子的儿童房,女业主自律的健身爱好者,需要留有健身空间,平常会有朋友来小聚。
设计方案
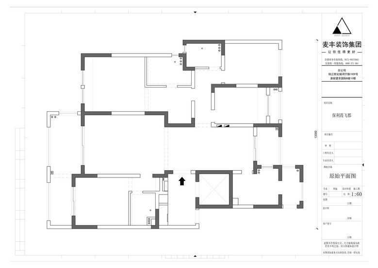
户型优劣势
户型优势:空间分割明显,户型方正,南北通风
户型劣势:餐厅和厨房空间小,主卧卫生间采光少体量小
户型改造
改造重点:打开主卧卫生间的墙体,引入房间南面的采光,增加主卧衣柜收纳量。打开北卧拓展面积,增加室内空间。吸纳空间增加厨房使用面积。
设计灵感
钢琴黑白色的琴键拨弄琴弦,演奏出一个个绚烂的音符。声声间奏,亦是黑白的震颤。黑与白,描摹勾勒生活的昼夜,交替编制出生活的乐章。
设计理念
去繁精简,设计是手法辅助空间体现美的载体。