阅读数: 3264 | 回复数: 6

V16 发表于: 2020-11-14 11:37

无影灯下

当你设计高度和力量都十分可观的建筑时,要担心的问题可不是装饰。关键的是要保持结构上的纯粹,这样才会收获纯粹的美.
——贝聿铭
MHOO|克制而纯粹的美学态度 120㎡简约现代

客户需求
业主一家三口,一开始的设计需求是三间卧室加一间茶室,主卧夫妻两人居住,儿子房间,客房,茶室。男主平时喜欢喝茶,儿子需要一张大书桌,休息时间也喜欢打打游戏。
在设计初期客户对风格的概念不强,说御湖公馆的样板间还算满意。也给客户看了往期的实景案例,客户觉得美式风格也行,没有明确说喜欢那种风格。随着不断的沟通、对客户的了解逐步的明确了客户喜欢现代简约风格。

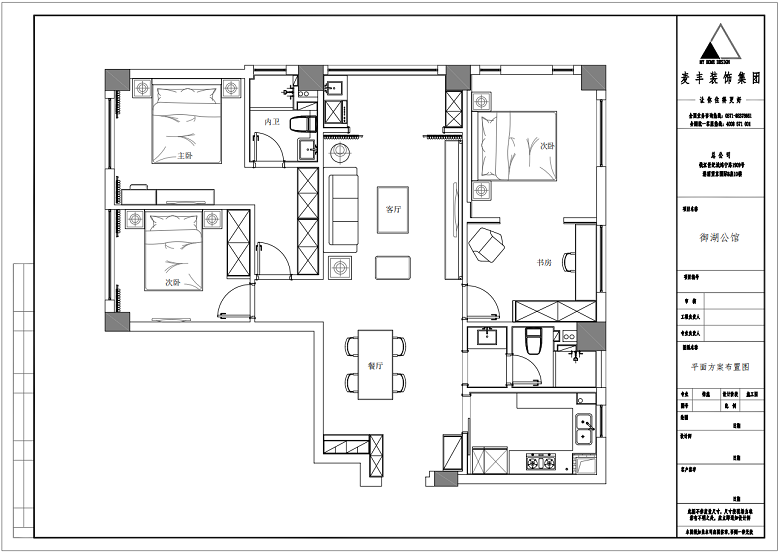
户型解析
优势原始户型层高3.05米是属于比较高的,内部没有承重墙改造空间大。劣势整个空间的梁比较低,没有单独的阳台。

户型改造
梁位又低又宽,梁低处标高只有2.48米,通过大面积的吊顶降低了梁与顶面的落差。无主灯设计主要运用在顶部设计,这样可以让顶部设计更加简洁干净,视觉上层高更高,使光线更加均匀照射,更加有层次感。

设计方案
MHOO|克制而纯粹的美学态度 120㎡简约现代
MHOO|克制而纯粹的美学态度 120㎡简约现代

  • 人赞过
查看更多
V16
发表于: 2020-11-14 11:39


客厅
此户型空间层高很高而梁过低,所以顶部采用无主灯设计,运用大面积吊平顶的手法去弱化又宽又低的大梁,黑色线条贯通南北,简约通透的格局规划中将艺术渗透进生活里。
MHOO|克制而纯粹的美学态度 120㎡简约现代
MHOO|克制而纯粹的美学态度 120㎡简约现代

整体空间以大量白色铺陈,穿插木色和浅灰色,简单中透着细节,呈现舒适而利落的风格样貌。
MHOO|克制而纯粹的美学态度 120㎡简约现代

餐厅
餐厅无过多装饰,柜门全采用无把手设计,中间做开放式置物,有藏有露。
MHOO|克制而纯粹的美学态度 120㎡简约现代
MHOO|克制而纯粹的美学态度 120㎡简约现代

用清爽流畅的线条画做装饰,配合同具有天然美感的大理石桌面,不规则却十分抢眼的纹理勾勒出动感的水流效果,流露出精干内敛的美学态度。
MHOO|克制而纯粹的美学态度 120㎡简约现代

厨房
使用大理石纹瓷砖搭配木质柜门,符合整体现代简约的风格设定,干练的线条打造简洁清爽的料理空间。
MHOO|克制而纯粹的美学态度 120㎡简约现代

V16
发表于: 2020-11-14 11:41

主卧
主卧配色简洁、大气,配合精挑细选的家具,质感满满,不着痕迹地透露出对品质生活的追求。
MHOO|克制而纯粹的美学态度 120㎡简约现代

灰茶色带来的别样气质,优雅而随性的将都市生活尽情演绎。

MHOO|克制而纯粹的美学态度 120㎡简约现代

次卧
次卧依旧简洁,线条高级的吊灯,用其不经意的艺术感装点空间....
MHOO|克制而纯粹的美学态度 120㎡简约现代

MHOO|克制而纯粹的美学态度 120㎡简约现代

业主偏爱灰色,从墙面、床品到座椅,有着深浅不一的灰色,在这深深浅浅的灰中融入了相对偏暖的木色,给空间带来别样的色彩和质感。
MHOO|克制而纯粹的美学态度 120㎡简约现代
MHOO|克制而纯粹的美学态度 120㎡简约现代

卫生间
卫生间做三分离,既可保持干区的干燥卫生,又能维持浴室整体环境的整洁美观。
MHOO|克制而纯粹的美学态度 120㎡简约现代

MHOO|克制而纯粹的美学态度 120㎡简约现代
MHOO|克制而纯粹的美学态度 120㎡简约现代


案例信息丨Case Information
项目地点:御湖公馆
项目类型:住宅
项目性质:全包
项目面积:120平方
项目风格:现代
设计师: 麦丰国际设计 叶仁雄
项目经理:周新建
施工:浙江麦丰装饰设计工程有限公司
软装:东麦家居
主要用材:大理石、木饰面、硬包、不锈钢
装修总投入:硬装17万、软装10万、设备5万
摄影:林峰
文字编辑:cc

V5 发表于: 2020-11-16 15:39

[s5027]
V_15
发表于2020-11-24 13:37
感谢支持~
V5 发表于: 2020-12-02 10:29

色调很朦胧
V_15
发表于2021-04-08 15:31
朦胧美

快速回帖 使用(可批量传图、插入视频等)

表情
写好了,发布  Ctrl + Enter 快速发布