阅读数: 2851 | 回复数: 4

V16 发表于: 2020-02-20 14:19

「贝壳上的蜗居」

//
“你说过我们会有一个家,它不需要很大,因为打扫起来会很麻烦,只要能让我们时时刻刻黏在一起就好了。”
//
MHOO|梦想照进现实!婚后我们也有了属于自己的小窝 89㎡轻奢雅?
 

业主需求
业主常住人口两个,偶尔聚餐烧饭,储物空间要求不大,喜欢现代轻奢的设计风格。

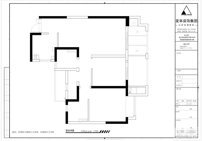
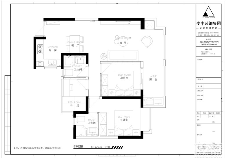
设计方案(户型对比图)
原始平面图
MHOO|梦想照进现实!婚后我们也有了属于自己的小窝 89㎡轻奢雅?
 
平面布置图
MHOO|梦想照进现实!婚后我们也有了属于自己的小窝 89㎡轻奢雅?
 

户型优劣势
户型优势:是标准的89㎡三房两卫,南北通透,阳台大。
户型劣势:小户型空间局限化,客厅空间小,厨房几乎没有。

户型改造
进户门就是3㎡的厨房,实在是施展不开,干脆打通做开放式厨房,这样既变大了厨房也扩大了用餐区。
客厅的面积太小,所以设计师把其中一个阳台扩进客厅区域,通过吊顶设计完美的融合在一起。

设计感悟
“一年三度不负君,返来也,家似春草暖心田”

  • 人赞过
查看更多
V16
发表于: 2020-02-20 14:24

客厅Living Room
      多种材质在空上间合理运用,并以丰富的色彩打造生机盎然的奢美雅居。设计师以特别的灰蓝色运用其中,给与居住者一份宁静与舒缓的氛围。
MHOO|梦想照进现实!婚后我们也有了属于自己的小窝 89㎡轻奢雅?
 
MHOO|梦想照进现实!婚后我们也有了属于自己的小窝 89㎡轻奢雅?
 
      设计师在做空间设计时,模糊空间之间的边界,希望家人之间有更多的互动,产生更多的交集和对话。
MHOO|梦想照进现实!婚后我们也有了属于自己的小窝 89㎡轻奢雅?
 
      背景墙的选择灵感来源于意大利都灵的维纳利亚宫,纵深的长廊给与客厅一定的延伸效果。
MHOO|梦想照进现实!婚后我们也有了属于自己的小窝 89㎡轻奢雅?
 
      朝阳中落叶纷纷,人在铺满秋色的街道中来去匆匆,Espresso散发着浓厚的醇香,生活的些许美好都藏在无法察觉的流动时光里...
MHOO|梦想照进现实!婚后我们也有了属于自己的小窝 89㎡轻奢雅?
 
餐厅Dining Hall
      西厨、客厅、餐厅他们相互呼应但又自成一体, 空间交集越多,变化出更多的生活场景,也就多了触动情绪的可能 。
MHOO|梦想照进现实!婚后我们也有了属于自己的小窝 89㎡轻奢雅?
 
MHOO|梦想照进现实!婚后我们也有了属于自己的小窝 89㎡轻奢雅?

      餐厅采用木饰面背景作为搭配,希望居住者在用餐时不仅能感受来自食物的温暖,还能感受更多来自空间的温度。无论是两个人的浪漫还是与父母在一起的团聚时光都能在这里实现。
MHOO|梦想照进现实!婚后我们也有了属于自己的小窝 89㎡轻奢雅?
 
MHOO|梦想照进现实!婚后我们也有了属于自己的小窝 89㎡轻奢雅?
 
厨房Kitchen
      进户处就是厨房,业主夫妇不常在家料理,为扩大用餐区和厨房空间,将厨房与餐厅打通,形成一个西厨。灰白设计让空间显得干净整洁,注入更多的现代气息。
MHOO|梦想照进现实!婚后我们也有了属于自己的小窝 89㎡轻奢雅?
 

V16
发表于: 2020-02-20 14:27

主卧 Master Bedroom
      设计师在大面积白色的主体下,搭配上圆点壁画作为床头背景,同色系的窗帘浅淡相配,让这个颜色虚虚实实温润起来。
MHOO|梦想照进现实!婚后我们也有了属于自己的小窝 89㎡轻奢雅?
 
次卧Guest Bedroom
      尽管父母们偶尔来居住,但也预备下这间采光很好的卧室给他们。以冬日白为主色的墙体,带着灰度,温馨舒适。
MHOO|梦想照进现实!婚后我们也有了属于自己的小窝 89㎡轻奢雅?
 
      不被时间磨灭的气质与态度,像冰川般寂静无声,用曲曲折折的纹路向你诉说这漫长的一生。永恒、低调、自然,是最优雅的经典色彩。
MHOO|梦想照进现实!婚后我们也有了属于自己的小窝 89㎡轻奢雅?

案例信息丨Case Information
项目地点:香悦半岛
项目类型:住宅
项目性质:全包
项目面积:89平方
项目风格:现代轻奢
设计师:麦丰国际设计 林益锋
项目经理:李成广
施工:浙江麦丰装饰设计工程有限公司
软装:东麦家居
主要用材:木饰面,墙布,玫瑰金不锈钢,瓷砖
装修总投入:硬装20万、软装10万、设备4.5万
摄影:林峰
文字编辑:橙子

V6 发表于: 2021-04-22 16:43

“一年三度不负君,返来也,家似春草暖心田”
V_16
发表于2021-04-22 16:57
模糊空间之间的边界,产生更多的交集和对话。

快速回帖 使用(可批量传图、插入视频等)

表情
写好了,发布  Ctrl + Enter 快速发布