阅读数: 2129 | 回复数: 2

V15 发表于: 2021-06-01 12:56
如果既喜欢充满阳光的北欧风,又想要美式的精致复古,不如就混搭一下吧~

本案是来自桃源小镇一套330㎡的排屋,设计师将被北欧风与美式元素完美搭配,是小编梦想中的房子了!

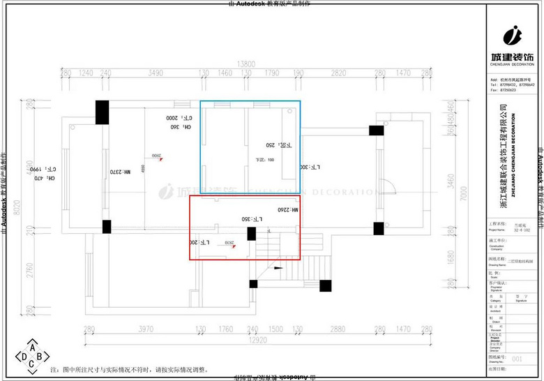
一楼
▼将原来的厨房区一侧阳台打通包进,扩大面积,做成现在的开放式厨房与餐厅区。
▼改变原来客卫门洞的位置,更具有隐私性,做成干湿分离,使用更方便。
北欧的阳光+美式的浪漫,是我梦想中的房子了!

北欧的阳光+美式的浪漫,是我梦想中的房子了!

一层作为公共空间,采用全开放式格局,增强采光、增强互动性,原木色与白色搭配糅合成温暖的米色调,自然简约的北欧设计,让屋里充满阳光。

北欧的阳光+美式的浪漫,是我梦想中的房子了!

北欧的阳光+美式的浪漫,是我梦想中的房子了!

北欧的阳光+美式的浪漫,是我梦想中的房子了!

餐厅里复古的吊灯,墙面上复古的装饰画,这些美式元素的增添,仿佛进入电影场景一般,让空间有了时光沉淀的味道。
北欧的阳光+美式的浪漫,是我梦想中的房子了!

北欧的阳光+美式的浪漫,是我梦想中的房子了!


  • 人赞过
查看更多
V15
发表于: 2021-06-01 13:03


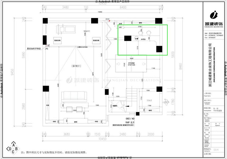
负一楼
▼连接两个承重柱之间做成水吧台,巧妙合理的最大化利用空间。

北欧的阳光+美式的浪漫,是我梦想中的房子了!

北欧的阳光+美式的浪漫,是我梦想中的房子了!

负一层是休闲娱乐区,是集结了影视厅、健身区、酒吧等多功能空间。楼梯采用玻璃栏杆,让楼梯空间显得通透、不压抑。

北欧的阳光+美式的浪漫,是我梦想中的房子了!

北欧的阳光+美式的浪漫,是我梦想中的房子了!

北欧的阳光+美式的浪漫,是我梦想中的房子了!

影视厅一分为二,一侧整面的书柜,做成工作区;另一面,下拉式投屏,休息的时候放一部电影、看一部综艺,放松一下。

北欧的阳光+美式的浪漫,是我梦想中的房子了!

北欧的阳光+美式的浪漫,是我梦想中的房子了!

北欧的阳光+美式的浪漫,是我梦想中的房子了!

投屏背后的空间做成健身区,上方采光井保证了空间的采光。健身区右边,利用承重柱与墙面围合的空间做成酒吧区,闲暇时间和家人、朋友小酌几杯,轻松惬意。

北欧的阳光+美式的浪漫,是我梦想中的房子了!

北欧的阳光+美式的浪漫,是我梦想中的房子了!

北欧的阳光+美式的浪漫,是我梦想中的房子了!


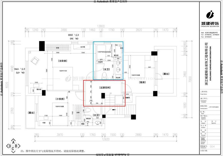
二楼
▼将卧室门洞位置改变,让公共过渡区动线更舒适。
▼因为夹层已有衣帽间,主卧将原本的衣帽空间舍弃,扩大主卫空间,便同时拥有了淋浴房与浴缸。
北欧的阳光+美式的浪漫,是我梦想中的房子了!

北欧的阳光+美式的浪漫,是我梦想中的房子了!

北欧的阳光+美式的浪漫,是我梦想中的房子了!

北欧的阳光+美式的浪漫,是我梦想中的房子了!

V10 发表于: 2022-02-10 12:47

不错哦,颜色搭配很好看!

快速回帖 使用(可批量传图、插入视频等)

表情
写好了,发布  Ctrl + Enter 快速发布