19楼家居
公共论坛
相亲
八卦
商家圈
我家
搜索
搜“
”相关的帖子
搜“
”相关的用户
搜“
”相关的圈圈
搜“
”相关的版块
当前位置:
家居19楼
>
铭品装饰
>
点评列表
>
点评详情
关注
小手指。
花费¥
186700
消费后点评
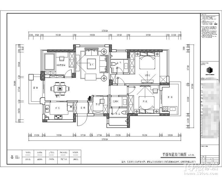
对装修的认知最开始就是19楼开始的,一直潜水看案例学知识,新家装修完毕也秀家记录了 这里感谢铭品装饰团队
点击收起
2020-12-30 22:18
铭品装饰
5.0
¥19.3万/人
设计施工
上城区
共6个优惠活动
发表
网友回应 (
0
)