照片及价格 门栏石、窗台石铺装完毕 马赛克实物到货,好亮啊~!~上照片《19楼》华丽丽地马赛克上墙了 已定雅鼎浴室四件套 次卫箭牌马桶、阳台箭牌龙头、箭牌的台下盆《20楼》次卫金属马赛克美图及6月30日木工进展 主卫与主卧隔断的钢化玻璃价格 《21楼》讨论双开门冰箱...
柜格和开门橱柜,用于满足客厅内日常的收纳需求。尽量简约的硬装设计,搭配原木风的家具和大面积留白,体现出空间的质感与更多的可能性。坐在沙发上,就能看见客厅侧边新开辟出来的小餐厅。③餐厅餐厅的设计也极为简单,餐桌椅和定制的顶天立地收纳柜,提供了用餐和储存功能。双开门冰箱...
这个我是库巴网上看到的,不知道他们的网购质量怎么样?
想买双开门的冰箱,一直看的是西门子的,今天逛商场偶然看到三星有款变频的,营业员说原装进口耗电1.2度,而且价格比西门子便宜三千,不知道楼里有人用过没有,实际耗电和噪音怎么样,双开门冰箱到底哪家的好
乐融融,在选材上多取用一些舒适、柔性、温馨的材质组合,如印花布沙发、碎花墙纸,还有手工纺织的尼料、麻织物编织画。 厨房:受饮食烹饪习惯,田园风格的厨房是开敞的,要有一个便餐台在厨房的一隅,操作、享受两不误,还要具备功能强大又简单耐用的厨具设备,如大容量的双开门冰箱...
?三星冰箱到底有多少产品存在潜在的爆炸隐患?三星到何时才能给中国消费者以及世界消费者一个明确的详细的说明? 直至11月2日晚10点,三星冰箱市场部负责人颜莹才向记者发来声明,称中国三星电子已正式决定在中国市场实施召回政策,将针对部分在中国销售的韩国原装进口双开门冰箱...
咨询:哪个牌子的双开门冰箱较节能?
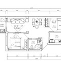
详细图纸在下面,主要想请教以下几个问题:1.客厅太窄了,只有2.7米,放了沙发和电视以后,很拥挤,2.我家有很多书,因为客房主要是作为书房用的,需要一面墙的位置做整墙书架,3.想放双开门冰箱,不知道是否合适?4.洗衣机能否放到卫生间?5.进门餐厅的位置很空,显得空间...
冰箱的品牌:容声购买时间:2012年使用心得:用着挺好的还有个冰箱放在餐厅的,东西太多放不下,又买了大点的冰箱,房在书房,夏天上网的时候拿雪糕吃很方便,哈哈
设计布置一个岛台,使厨房显得更时尚高档,岛台可兼餐桌使用,更好的利用空间。 2、美式厨房的布局特点 (1)布置细节:美式厨房往往需要有美式风格餐边柜,一个便餐台在厨房的一隅,还要具备功能强大又简单耐用的厨具设备,如水槽下的残渣粉碎机,烤箱等。需要有容纳双开门冰箱...
全部(334)
更多