活动图片
一套三、四档的排屋想装修了,有设计装修过该户型的请联系
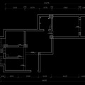
一楼127㎡,起居二楼115左右,种花草盆景和堆放简单就好配以自己的创意,主要想把盆景融入到整个体系贴近自然一点楼梯的设计应该是重点,也是点睛和败笔的所在因为是在整个房子的中间位置
请大家帮看看怎么装修
前面没有交代,因为我们一家现住在湖州,所以装修赶路这个辛苦呀!所以更新可能慢点,请大家多多包涵。以后会每天上来溜溜的。昨天到了施工现场,敲墙刚结束,在确定线路图,工人还没到齐。翰高这方面要加油呀!开工都一星期了,还只有一个工人,我可是很急的呀,要给我女儿9月1日上学...
今天终于去房子量了尺寸,回家把大致平面图画好了,房子是53.68平方,二室一厅。我们的要求是:希望能做个书房出来,最好不要放阳台,可放主卧与次卧之间的那个空间,阳台东侧放洗衣机、洗衣板、水池,冰箱放餐厅。其他大致没什么要求了,还有就是以前旧房子有家具,一个1800的...
:一个92方的房子,是高层的,求设计师设计平面图及水电图,谢谢
如题!钱虽不多,但也是诚意。国庆快到了,设计达人们要是打算宅在家,欢迎来捧场。详情在http://www.19lou.com/forum-94-thread-40445784-1-1.html500元征求设计构思,出简单的平面图即可。请直接去帖子里看清楚要求,站内短...
三口之家,房子面积不大,格局实在不太好······希望有贵人出手相助啊~~~~~怎么设计才好呢?要求:现代简约风格(好打扫点~~),储藏功能一定要多!!
本户型除了房子中间有个承重柱,中间套,另外都可以敲掉的。感觉客厅很难设计。请设计师帮忙设计一下,谢谢了。装修公司请不要让打了,手机要打爆了。
现有159平毛坯一套,求设计图,后续装修可以商量
请大家帮忙出出主意,这两稿的设计哪个更实用,方案一感觉好处是:1.储藏室相对封闭,可做橱柜的地方多,2.厨房和卫生间门大,透气好些;3.餐厅离厨房近,端菜方便;弊端是:1.厕所门斜对着进户门,一进门看到两个门,电视背景墙小;方案二的好处是:1.背景墙完整,客厅在窗户...
房子已经到手,建筑面积为60平,马上就要装修了,现求平面设计图。要求2室一厅一厨一卫。。。。。哪位设计师帮忙看一下。。。。附上。户型图。
很老很老的破房子,3楼,厨房在大门外面,卫生间极小,户型很不规整,锉的不行,想通过设计弄出个儿童房出来,把户型设计得好看些。包括厨房在内的建筑面积是58方。户型平面图只是大概比例,可能有些不准确,但是最大的房间就是连着阳台的那间,而卫生间和进大门的那个“厅空间”都非...
Blue的首张专辑《All Rise》以一种复古的R&B音乐为灵魂,显示了不同于其他偶像团体音乐的风格。随着首张专辑的成功,Blue再次出发,发行了他们的第二张专辑《One Love》,仍旧以R&B曲风为主,再度展现了他们超龄的声音演出。从饶富都会节奏感的“One ...
这就是小家的初貌
说明 1. 144.65平方(包括入室花园和露台送一半面积)经改造4室2厅2卫如下面平面图所示。 2. 房没装好家具已买好(据说过好年实木的要涨价)休闲椅一对,沙法一组,餐桌6个椅,电视柜一个, 主卧床一张(以上品牌为原野居均为全实木约2万左右)如下图。 3. 女儿...
全部(71)
更多