想在储物间和客厅这里改格局
如题,,,餐厅感觉没地方放啊,,,过道那道墙应该怎么处理,,,大家建议建议,,,谢谢各位了!!!
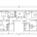
小户型,三室两卫一厨,套内面积85平,带斜顶阁楼70平左右。。北方右墙顶是阁楼的入口,占居了客厅一堵墙的位置。因此,客厅、餐厅都很难设计。。卧室都偏小在11平左右。。。请高手给设计一下。。。
家装格局灰色代表什么》》》有讲究吗?全部是订制的,灰色系,家具床,室内空间灰色好不有讲究吗?
如题
萧山 德圣 博奥城 86方西边套,阳台飘窗约13方为赠送, 不计入面积,感觉主卧太小,望设计师看下,谢谢QQ63247765
跪求闲的设计师帮本人设计下。。谢谢了。。准备当婚房~~
刚拿到新房,但格局不是很合理了,想找设计公司给好好规划一下,有没有设计公司能来挑战一下啊,
一、家庭成员基本情况常住家庭成员有几位?需要几个房间五位,需要四个卧室二、房子的基本情况1、房子的建筑面积是多少?房间格局描述,层高面积,地理环境如何?(最好附实景图)2、对房间布局最不满意的地方,需要设计师想办法的地方3、装修预算经费多少?面积196方,格局四室两...
准备过完年开始装修了。房子户型是比较正,但是也有些缺点。1.门口正对着洗手间。2.想弄个书房出来,找不到地方。希望能找到一个比较有见地的设计师帮忙给点注意。谢谢!!
活动图片
经过半年的努力,装修近尾声,油漆也完成了,装修的质量没有什么问题,即将大功告成的时候,一把手提出要改动墙体格局。。。。。。。。。。。悲剧啊!话不多说,先看已经完成的格局:通透、大气;拟改动平面图:客厅无限大,空而无当。。。。。。。。。。。各位同学看了这两种格局有什么...
活动图片一、家庭成员基本情况常住家庭成员有5位?需要3个房间 自己一间,父母一间,客厅隔一间小的给孩子二、房子的基本情况1、房子的建筑面积是89.73?两单卧室朝南,客厅和餐厅有隔墙,层高2.7M ,17楼,北面是高架?2、对房间布局最不满意的地方是进门正对卫生间,...
有朋友能帮忙设计下装修的格局出出点子吗?下面是家里的平面图,这个是某装饰公司设计的,但是不是很理想,不知道朋友们有什么好的点子没?1、希望洗手盘能放进厕所里,放外面很累赘2、厨房面积太大了,有没有办法缩小下(和客厅的墙是承重墙)。3、餐桌尽量往里靠!
新房装修,请帮忙重新设计一下格局,特别是餐厅、客厅与厨房的布置。
房子116平方,感觉墙体较多,房间格局不是很满意,客厅略小,浪费面积较大,想征求大家建议
全部(37)
更多