你有把衣服晾在屋内吗?当心慢性中毒!洗衣精里添加的芳香剂,在密闭空间内氧化,长期吸入的话容易鼻子过敏,甚至有致癌的风险。 在密闭的室内晾晒衣服,还会使洗衣粉里的有害成分在室内扩散。洗衣粉内含强效洁白衣物的萤光剂和芳香成分,长期挥发在空气中,人体晚上就好像睡在一个刚...
就看情况了。 像这样的装修事故时有发生,有业主家里刷漆的师傅从凳子上摔下来,一条腿骨折,经过治疗现在已经残疾,请问业主要负责医药费用及赔偿吗? 话题讨论:你遇到过这样的装修事故吗? 如果遇到这类的事故你会怎么来解决?业主需要承担责任吗?金华汇阳装饰金华交换空间...
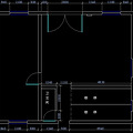
家里新盖的房子,还没装修,如下图(一楼),楼梯下面除了储物间做什么比较好啊。。原先想着做卫生间的,但是卫生间已经定死了。。做厨房么又嫌太小。。各位帮忙想想办法如何是好啊?
已经装修过的,正在装修的,还是准备装修的,都来说说你家的花费,抵得上你多少年的工资了! 【回帖格式】 1、装修的风格,花费: 2、你家装修花费相当于你多少年工资: 3、对于装修成果,你觉得花得值吗? 回帖有福利哦,小编给大大的加分。金华汇阳装饰金华交换空间...
如果客厅的沙发位已经足够了,飘窗台则可以做成一个小小的娱乐室。 飘窗既有大面积玻璃采光,又有宽敞窗台,可以在视觉上增加室内空间的面积,受到很多家庭的喜爱。因此时下新居里,总是少不了飘窗的身影。但是你是否注意到,明净通透的玻璃和光滑清凉的大理石台面构筑的飘台空间其实可...
算。奖品设置: 根据评奖规则,得分最高的童鞋,将有机会获得纪念品一套:小熊台灯+19楼便签+19楼鼠标垫+19楼环保袋,台灯很可爱滴,灯光也不刺眼!台灯放在宝宝房间很合适的说!其他参加活动,发帖符合要求的童鞋,将从中随机抽取幸运儿,送出19楼天堂伞、马克杯、七度空间...
全部(21910)
更多