刚刚拿到的新房需要装修,巧克力公馆,跃层80方左右的,懂得人麻烦指点一下,电话:15857118821,晚上不要打啊,
这是我和老公人生路上的第一套房,也是我们第一次正儿八经的从点滴开始设计装修自己的梦想中的家。漫漫长路从开始锁定设计公司开始,我们的心情也像是过山车,从刚开始的忐忑不安到各种纠结体附身的过程直到现在的满心欢喜,断断续续坚(mo)持(ceng)了两年的大好光阴,为了梦...
木制的楼梯大概多少钱?跃层的,一层
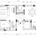
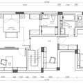
混迹19楼N年,在家居板块各大板块都留有我的踪影:租房维权,家具转手,房贷咨询,装修交流等等。感谢19楼给予的强大资源为我答疑解惑。 言归正传,今天来是分享一下我们的小窝。房子处于萧山大江东义蓬街道星悦湾小区,15年6月底交付。买的是开发商主推的跃层户型,赠送45方...
如题,本人在下沙有一套毛坯现房需要装修,半包,寻找装修项目经理,有意者面谈。房子在下沙朗诗国际街区,小跃层。联系电话,13282833253,张先生
如题,手上有现房一套,小跃层,毛坯,需要装修。寻找项目经理,有意者面谈合作。目前人在萧山城区,电话:
以前都是找认识的包工头包清工装修的,现在觉得好累啊。现在这套是跃层感觉吃不消,各位亲有什么好的装修公司推荐吗。
我们的一些基本信息和要求:1:我家套内面积230平方,跃层2:需要风格:现代简约为主。3:我们已基本完成平面的布局,需要设计师给我们提供一些修正方案(这也是我们考核设计师设计水平的方法)。4:我们只单方面寻找设计师或者只经营设计的工作室,不接触装修公司。(装修公司请...
瑷骊山【建筑面积】263平方米(得房率88%)送2个大露台 合计 72平方【装修公司】鸿都装饰【第三方监理】卓恒监理【设计师】潘工【装修风格】简约台式现代 混搭 风格自己喜欢就行别太纠结与名称【装修形式】半包【半包预算】26万房子基本情况:五层花园洋房小区,顶楼跃层...
铭的脚步户型谈起来吧{A1户型}{A2户型}|B1户型||B2户型||C1户型||C2户型||C3户型||C4户型||D1户型||D2户型||E1户型||E2户型||F1户型||F2户型||J1户型||J2户型||K1户型||K2户型||M1户型||M2户型||跃层...
作品简介(introduction )工程地址:观澜时代作品面积:215㎡作品户型:复式跃层设计风格:新古典设计施工:铭品·太和设计『 作品故事( story)本案的业主是一对事业有成的实业家夫妇,对生活品质要求较高,简约之下要求奢华,时尚之余也要有丰...
本人一套小跃层,建筑面积178.61,双阳台超难加朝北的露台,地点九堡,,目标风格简约实用,美式乡村也能hold住,只接受设计师私人联系,不接受装修公司报价,,擅长空间利用的设计师有意可与我联系,谢谢。联系请发站内信告知联系方式,擅长风格,我看过会联系你面谈。
在临安,103方,实用面积83方,层高5.8米,楼板与楼梯需要自己浇筑,半包价格多少?可私信给我,谢谢
大华海派风范18楼顶楼A1户型 跃层 求靠谱设计!
全部(2910)
更多