自新视野装饰的周梦炜设计师获得周梦炜设计师毕业于南昌大学建筑系室内设计专业,从事装饰装修行业5年擅长现代简约、新中式、新古典、美式等风格设计理念为将设计融于人性,将家居带入悠闲自在的情境。代表作品:万达广场中国移动店面设计及施工财孕投资管理有限公司设计及施工香榭丽舍...
柯城区香榭丽舍楼盘新房装修,需水电安装。户型LOFT,上下两层。有意者电话:18257015356揭先生非诚勿扰!
香榭丽舍小区陆陆续续开工了10余套,这套房子是15号楼的复式套房,业主之前的说是要现代风格,经过沟通以后,业主家有2位可爱的小公主,结合业主喜欢的图片,后定位为简欧,温馨的壁纸和石膏线的走边,放整个空间感觉温馨浪漫,,最后小编发现一个问题,哈哈,佳盛的业主都是好忙碌...
香榭丽舍的业主们,有没有要互换防盗门的,请联系我。
置的平面方案,经过双方沟通确定了欧式风格...在此,佳盛非常感谢业主的信任与支持,佳盛十二年的品质与发展离不开各位业主的支持与信赖,感谢你们!衢州佳盛装饰2014年实价经营,客户进店就可看见我公司我单价展示牌,所有工程所需材料品牌和项目单价一目了然. 地址:香榭丽舍...
杭州永通中策);泥工连工带料(江山水泥);木工连工带料(品牌兔宝宝系列);油漆连工带料(品牌多乐士)所有主材品牌款式按实际样品客户认可为准,让您装修无忧!衢州佳盛装饰实价经营,客户进店就可看见我公司我单价展示牌,所有工程所需材料品牌和项目单价一目了然 地址:香榭丽舍...
家用分体式与中央空调有着什么样的区别呢,这里先跟大家唠叨一下哈: 1、家用空调优点:安装简单、结构简单、室内机组单一、功能单一、控制简单、适合大规模生产、价格较为便宜。缺点:(1)影响建筑外观及室内装饰效果;(2)无法引入室外新鲜空气、导致室内空气品质较差和气流组...
业主喜欢最简单的装修,按照业主的要求,墙面基本保持原生态了,看多了繁花似锦,原生态却更有一番风味在心头、、、 衢州佳盛装饰2014年实价经营,客户进店就可看见我公司我单价展示牌,所有工程所需材料品牌和项目单价一目了然. 地址:香榭丽舍7号楼设计风格:现代简约房屋面积...
大家好!我是香榭丽舍1号楼的业主,按道理外立面是属于我们业主的!可是物业现在不让我们业主挂空调外机,说什么影响他人!可是我想说的是既然外立面是属于业主的!那么业主就有权来决定它该怎么办而不是由物业说了算!应该让物业搞个投票表决!如果大多数业主同意外机不能挂外立面,那...
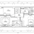
项目名称\\《简欧》项目地点\\ 香榭丽舍设计单位\\奥亚设计设计师\\胡锋项目面积\\150平方户型结构\\跃层公寓合作模式\\纯设计主要材料\\抛光砖、实木线条、石膏线条、定制花板、墙纸、大理石设计时间\\2014.05奥亚设计装修设计理念:先定家具 后做设计...
全部(43)
更多