-
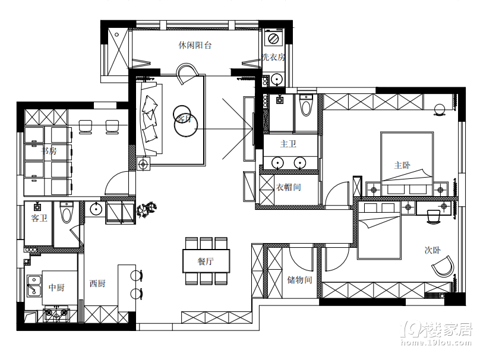
安家,安心,安稳,89㎡现代轻奢风
【说在前面】 本人88年,三十好几的人才在杭州买房多少有点难为情,装修的时候发现很多邻居都是90后,怎么你们这么年轻都能买房了,80后表示羡慕啊...... 掏空四个钱包买了房,装修预算不多,但是毕竟是要自住的,装修效果还是还把控,所以选装修的时候我们也确实好好对比过了,有朋友被不知名的小公司搞得身心疲惫,最后钱没少花,活也没做好,我最后还是选了大点的装修公司,做了半包。 就是老婆有时候跑工地辛
33751006 2021-08-18 15:3633778 79
-
【2022日立中央空调杯】横厅一墙三用,背景墙、隔断、吧台三合一
从设计、选材到施工、家具灯具的购置,都给出了非常专业的意见,反馈及时,沟通过程非常愉快。我们在灯具、柜门的选 择上一时难以抉择,设计师利用周末时间陪我们去市场选购,有时日程安排比较紧饭都顾不上吃,感谢设计师辛勤付出。施工过程中,工人操 作规范,项目经理杨海棠把控施工质量,注重细节,每一道工序都认真检查,施工进度安排合理。特别值得一说的是后续服务做的很到位,小问题都能够及时安排工人师傅来完善。所有的
51259423 2022-02-08 16:5761269 73
-
平凡日子的艺术气息 130㎡不一样的现代风
从住进新家到现在也有半年多了,趁今天有空做个小总结,记录装修这一路发生的各种故事,秀一回我的小家。小区:合景映月台面积:130㎡风格:现代装修公司:麦丰装饰从找装修公司说起。由于我从事的是演艺方面的工作,可支配的休息时间特别少,而且在装修那段时间,是我全年最忙的时候,本来想暂时将装修时间延后,但父母不希望我拖着,就由他们替我筛选出了两家还不错的装修公司,让我最后做决定选择哪家。第一家的设计师给出的
40299972 2021-11-30 17:2141751 73
-
【2022日立中央空调杯】130㎡奶油风,爱躺平的年轻人又心动了
屋子以木色+白色为基底,整体色调统一,面积铺陈的木色带来温润美感,满屋都是自然的气息。户型痛点:隔断比较多,需要合理改造空间。设计亮点:① 阳台包进客厅,扩大公区储物面积。阳台地面抬高20公分,打造休闲阳台区。② 餐厅做了大量的收纳柜,餐边柜与玄关柜是一体的设计。③ 厨房外做了西厨吧台区,丰富就餐多样性。④ 客卫台盆区外移,方便日常使用。⑤ 主卧利用墙面做了大量的柜子,满足日常收纳的需求。 原始结
51373888 2022-06-19 16:21553407 72
-
邻居秀家 | 螺蛳壳里做道场,50平“孟母房”里做出一个小阁楼
年轻的时候总觉得,在郊区买一套稍大的新房子,窗明几净,岁月静好,这才是圆满的人生。 过了几年却渐渐发现,每天路上的通勤让人疲惫,周边的各种生活配套也和市区相差甚远,特别是有了孩子以后,学区、生活氛围,各方面差距就愈发明显起来。 终于,豆豆和吉吉决定,卖掉位于下沙的一套新房,置换一套市中心的老破小。 房子位于戒坛寺巷,是个三楼东边套,虽然是筒子楼户型,但是南北通透,采光也很不错。下楼就是武林商业圈,
好爱装 2022-03-30 09:2944853 72
-
【秀家大赛】小姑娘小脑袋中的小家
房子装修完了之后回忆装修过程也回忆想起她们娘俩儿的点滴,好像一直都在记忆里,从未记录下来,刚好趁这个机会记录下来,也为了防止以后想不起的时候还能再看到。时间会走远,网络永留存。 回忆到以前跟她认识像是缘分,像是天注定。因为我跟她是网恋,走到美好结局的奔现。现在小姑娘都已经七岁了,瞬间又感觉自己无比幸福。 网络上一根无情的线把我们这个两个有情的人紧紧的绑在了一起。相识、相知、相认,像所有情侣一
33830719 2020-09-08 21:5333521 72
-
【2022日立中央空调杯】400平轻奢美学,体现了我热情好客的特质
房子:西溪璞园面积:400平风格:轻奢居住人口:一家四口(我们夫妻+一儿一女)装修公司:浙江城建联合装饰工程有限公司模式:半包 43w设计师:张俊辉 新房装修足足一年,完工后伞甲醛至年底,如今已入住一个季度,装修这项工作真是大工程,虽然有小插曲但也最终完美解决。找设计师这块就是一个插曲,先是跑了杭州各家装修公司,又跟亲戚打听装修哪里装的。听朋友说小公司或者工作室普遍会有一个问题,签完合同后会继续加
46888356 2022-04-19 14:237365 14
-
【2023日立中央空调杯】我花了10w把104㎡的房子装成南洋复古风
出品:铭品装饰风格:南洋复古风出镜嘉宾:宝贝豆豆~交房的时候其实隔断的墙体还是比较多的,浪费了这么好的户型条件,因为房子是我一个人住,所以装修也是我说了算。我家里还养了一只超级容易害羞的狗狗叫豆豆,我们俩住的房子我就希望能温馨一点。 我们选的装修公司是铭品装饰,当时看方案的时候就让我眼前一亮,设计师听取了我的想法,拆掉多余墙体,打通能打通的空间,真正意义上地做到“贯通”,又用软装将房子点亮,刚好戳
50822087 2023-03-21 15:2186694 71
-
130㎡新中式,三代同堂其乐融融
我和老婆儿子再加上我爸妈,一家五口在83的房子里住了五六年了,说实话还是挺拥挤的,其他倒还好,主要是一个卫生间太不方便了,尤其是早上,都急着上厕所。儿子准备上小学了,以前都是和爷爷奶奶一个房间,慢慢大了以后有自己的房间了。 买在江南院子是看它的户型不错,比较适合我这种5口家庭,户型本身还不错装修也省得改来改去增加成本。 另外这个小区比较安静,小区江南水乡的整体风格也是我们比较喜欢的。犹豫不决是买
46812193 2021-09-10 10:3839139 71
-
95后孕妈的现代小家,阴暗小方块变敞亮大横厅
忍痛下手二手房! 我家在都市水乡水秀苑,是二手房,买的时候三万出头吧,当时买房比较着急,因为要当婚房用,等不及摇号买新房了,尽管觉得户型不是太理想,也先下手了。虽然对我们来说单价比较高,好在是小户型还能接受。 小区地址: 杭州·都市水乡水秀苑装修面积: 86㎡设计风格: 现代项目户型: 两室两厅一厨一卫装修投入: 总投入28万 关于我们 虽然小区环境一般,户型一般,但是!刚需不配有这么多要求。过
46812302 2021-08-07 17:0844577 64
-
【2021秀家大赛】一个可盐可甜的家
买完房子就零零散散的在看一些装修类的东西了,看多了,自己都不用特意去找了,猜我喜欢这个功能猜的真准。慢慢的看多了,发现很多人求助装修,不管说了啥,只要问到一句喜欢什么风格,整个人就懵了。看来最主要的还是自己想象中家是什么样子。 其次就是要把自己的情况仔细(记住是仔细)的跟设计师交流情况,家庭成员的生活习惯和爱好,这样设计师才能更好的去针对各个问题去做设计方案。有些时候自己不知道该要说些什么,设计
33786886 2020-12-06 17:3949082 70
-
128㎡打造梦想之家,有娃家庭也能装成极简风
我本人是在做时尚相关的工作,也算是半个小网红吧,对家居时尚和风格上也有一些自己的见解,所以在和设计师聊的时候我也会关注是否能聊得来,审美是不是能达到一致,这样后面装修的时候就会轻松很多,毕竟我们确实没那么多时间耗费在这件事情上。 项目地址: 永兴首府项目面积: 128㎡设计风格: 极简项目户型: 四室两厅一厨两卫常住人口: 4人装修投入: 硬装30万装修公司:恒彩装饰 我哥哥前一年刚找了恒彩装修
33884123 2021-10-29 18:4342048 69
-
89平简约复古风,两房巧变三房,收纳满分!
让我来说说找装修公司,我之前的那套房子是自己找的清包,因为那个时候也是刚毕业,手上积蓄也不是很多,所以没办法,但是个种辛苦是只有自己知道,不仅装出来的效果不满意,价格也没有多便宜了,所以这套装修说什么都不自己弄了,还是交给装修公司负责吧,省心省力点,选择亚加装饰也是有原因的,我们小区有很多户就是他们装修的,也去看过工地做的蛮干净整洁的就,因为他们公司就在小区边上,正好周末有空就直接上门去了,接待
45343200 2021-09-07 15:0036941 67
-
【日立中央空调杯】8W翻新46㎡阴暗老房,被玻璃砖治愈了
即使身为土生土长的杭州人,面对同地段、劝退人的房价,虽然家里有套地段位于钱塘江附近的老破小,但还是打消了置换房子的计划,决定把老房子重新翻新一番,方便一家三口入住。 九几年的老房子,很多地方确实过于老旧:泛黄的白色窗帘、狭小暗淡的厨房、已经拖不出本来面目的地板...... ? 进门就是厨房,昏暗拥挤,? 没有客厅空间,希望餐厅承担起临时会客的功能;? 改变卫生间布局,能收纳洗衣机,做干湿分离;?
46812333 2022-10-16 15:48524920 66
-
35万搞定107方,打造恰到好处的“半开放”空间!
楼盘位置:雍泽府房屋面积:107方房屋户型:4室2厅1厨2卫装修风格:现代简约装修形式:设计+半包总花费:35万左右(包含所有) 原户型存在问题及需求:1、厨房面积逼仄,只有4㎡左右。2、无餐厅功能区域。 3、男票喜欢乐器,希望有一个独立且隔音的空间,可在家随时弹奏。 4、家里有娃,有着超多储物需求。5、考虑和爸妈同住,至少有3个卧室。 重新定义了空间后,希望自己的家能开阔、灵活一点改造重点:1
48009037 2020-01-01 11:2043808 66
-
【2022日立中央空调杯】全屋无主灯设计,三房改两房这也太舒适了
终于是入住了,从开始买房到入住填满了2021年,一个人跑来跑去也是挺累的,所以找装修公司基本上就是找装修公司就是在房子附近看了一圈,一圈看下来,感觉是品牌越大的公司报出来的价格也偏高一点,但相差都不是很大,施工相差感觉也不是很大,最后还是选择了一家老牌公司。因为是一个人,还是选择全包,硬装部分就是隐蔽工程最重要,所以也就是前一个多月去现场次数多一点,水电结束以后,去的次数就大大的减少了,看了很多工
33330973 2022-01-09 17:37544813 63
-
135平现代简约,从繁去简才能看清生活的美好
【小区名称】:西湖国际城【户型面积】:135m?【装修风格】:现代简约【装修公司】:中博装饰【装修方式】:全包 【装修花费】:25万 我就想要一个简约整洁,任何杂乱的物品都可以完美的收纳起来,色调上喜欢淡雅的家。所以我也没有跟设计提太大的需求,但是最后装修完,我真的惊艳到了,完全超乎我的想象。真的很感谢设计师和王工的用心,过程中经常跑我家帮我盯进度、盯细节,每天都在群里跟我反馈,我真的觉得很贴心。
51136841 2021-11-14 15:3329321 42
-
设计师心细如发,施工师傅巧夺天工实现现代轻奢精致主义
今天看别人的秀家突然心血来潮,也写一篇秀家吧,每次都是当潜水员,潜水员今天浮上水面了。正好今天周末天气冷,孩子也不愿出去玩了,等啥时候天气晴朗了再带他们出去玩,最近天气冷出去玩也容易感冒。家里面现在就我们夫妻和两个孩子了,一儿一女也算是圆满了。还好她也希望有两个孩子,没有闹什么矛盾。 其实装修上的时候大部分都是她去弄的,我主要负责结账和做饭带娃,因为我买东西不是一个细心和跟别人砍价的人,很多东西会
33786892 2020-11-29 17:29219634 63
-
【2022日立中央空调杯】58㎡阴暗学区房极限改造,告别糟乱旧!
@装修美少女这几年我们夫妻俩在杭州做外卖生意赚了点钱,想着杭州教育资源要比老家强太多,决定买套带学区的房子,把孩子接到身边。 本来准备买新楼盘的,但是前几年限购政策对外地人实在不友好,摇号也等了好几轮,还是没有机会,眼看着孩子年龄越来越大,不能再拖延,最后和老公商量咬牙买了这套二手老房子。 房子户型着实不太好,采光挺差,不装修不行,唯一让我们感到欣慰的是孩子在杭州上学有了着落,一家人也能团聚。
33786889 2022-06-02 12:08549171 62
-
【2022日立中央空调杯】轻奢不仅是好看,还有品味
开始只是在楼里看到不错的案例,因为我们房子在临安,不在杭州城区里面,但考虑了两天还是尝试性的问了一下,当时没想到他们刚刚在临安开了分公司,就不用我们经常开车来城区这边了,我们工作都是在临安,我在工厂里面做技术,她公司做财务,家里面还有两儿子,儿子也是在临安读小学。这也是为啥当初要买在临安,上班方便,孩子上学也方便。最重要的是有一个居有定所、情有所依的地方了。所以在风格上也是温馨的格调,最后选择现代
33449508 2022-02-23 18:0944790 51
标签简介
大家都在讨论"厨房"赶紧来看看吧~



