-
275㎡三世同堂的舒适阳光房,被挑高客厅圈粉!
三世同堂+二胎家庭,如何设计才能最大程度满足所有家人的需求,打造一个有颜有品、舒适度满满的家呢?圣都家装设计师周斌老师给了我们一个满意的答卷! 面积 | 275㎡复式阳光房居住人口 | 父母、夫妻俩和一对小公主一起居住。户型丨5室2厅1厨3卫风格丨现代轻奢施工单位 | 圣都家装对于装修具体有三点需求:1、家中有老人和小孩,家装材料一定要环保。 2、风格上最好能满足温馨、开阔、明亮的特点。3、对舒适
51353127 2022-04-20 11:1514254 21
-
刚需房,小三居的温馨家搭配
没什么大抱负,就想和爱的人,有个美美的小家,就这样一辈子...这或许是,坚持在大城市的大多数年轻人为之奋斗的目标。 地址:德信东宸面积:90风格:现代轻奢模式:全包公司:城建价格:15w 需求:作为常见的刚需房,空间的局限是最头疼的问题。在原始户型大格局基本不动的情况下,就稍微把餐厨之间布置好,有舒适的生活动线;家里需要有足够的收纳空间。我家的户型很通透,所以找装修公司的时候就希望他们能够把我们家
50555966 2021-11-17 10:4410569 21
-
【2024日立中央空调杯】五房改两房,黑蓝配极简,独居江景大客厅
老房子放那很久一直没有动,格局虽然不怎么样,但是一旦有装修目标,一切都不是问题!这是房子装修之前的样子。 房子的原户型有两房朝南,可以看到江景,但是厨房小,空间之间的联动性又很差,所以在找到设计师之后就说了大致的想法,想拥有一个大客厅,150㎡目前是一个人住,个人是喜欢极简风格的,所以就让设计师大刀阔斧改了,次卧1间做衣帽间,中心部分全部打通作为全开放式客餐厨领域,并融入健身室、影音室与书房的功能
51902364 2024-06-13 14:10113073 20
-
三口之家190㎡现代风,四房改三房、收纳型住宅实现0杂物!
度身打造的家居环境,以居者的需求为第一设计要义,重新定义空间与生活的关系,才能形成高品质家居范本,方寸之间,尽显舒适与美好。纵观本案,用低饱和度色系奠定下细腻、治愈的空间氛围,以全新的空间布局适应居者生活习惯,终形成了这套令人叹为观止的佳作。 作品介绍:坐标丨杭州·义府名苑户型丨3室2厅1厨2卫面积丨190平方米风格丨现代简约设计师丨林晓珍施工单位丨圣都家装 本案的居者是幸福的一家三口。年轻的小
51093590 2023-07-19 18:2927968 20
-
【2022日立中央空调杯】出租收回后重装成小家,充满期待ing
这套房子之前用于出租,收回后打算我们夫妻自住,然后目前住的房子考虑局部装修后出租出去。原始测量的户型可以看出我们按合租的方式租给了5个租客,户型上整个杂乱,需要设计师根据我们两夫妻的居住需求重新构建、规划、布局。 找到一个优秀、认真尽责、经验足的设计师是非常困难的,我们是先询问身边的同事、朋友装修找的什么公司或者设计师推荐。有找清工的,设计师就是自己,这样其实不行,关键每个工种都得去找,我们时间不
46888337 2022-06-24 09:47425370 20
-
【2022日立中央空调杯】89㎡现代风,决定了,就在这里与你白首
我家是一套三室一厅的刚需房,面积89㎡,2020年对我们而言,是意义非凡的一年,这一年,准备结婚、装修婚房、工作等,对家有具象的期待。在每一处空间都要有收纳,空间感要大,尽可能增加房间的收纳。前期设计阶段我们接触了很多个设计师,将对家的需求和两人的喜好罗列了几十条,统统发给设计师,经过多方对比,最终看中了细心又耐心的万设计师。本案设计以简洁大气的现代简约为风格基调,每一处家的细节都融有我们两个人
48962556 2022-06-15 15:40434517 20
-
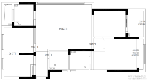
【2022日立中央空调杯】125㎡适合三代人居住的现代风装修,
打破传统的装修习惯,根据我们居住需求,最大程度的优化空间。本案将原来的储藏间拆除,把空间释放出来给餐厅,餐桌居中放置,形成环绕动线,另外餐厅跟客厅的中轴线尽量统一,使整个空间更加井然有序。主卧室打破了传统的摆放方式,床头放在进门口一侧,床尾设计了综合柜,满足了衣柜电视柜办公桌的功能,进主卧门右手边设计了拱形门洞,巧妙的把休息区和门厅区分开,也增加了主卧的私密性。 放一下户型图 原始结构图 项目地址
51259396 2022-04-13 16:1413564 20
-
【2022日立中央空调杯】128㎡一家四口轻奢奶咖三居,灵活布局
房子基本信息:项目地址| 水景城设计施工|良工家装项目面积| 120㎡项目风格| 现代轻奢设计师| 陈其翔 新家的落地效果,不仅设计师看了满意,身为业主的我看完以后更满意。为啥会这么说呢,接下来聊聊具体原因。起初也找过其他公司聊方案,但是给出的设计方案,始终没法满足我们一家子的居住需求,后来通过熟人介绍认识了良工的陈其翔老师,抱着试一试的心态,量完房后跟陈老师见了几次面,交谈甚欢,一家子也很喜欢这
17766884 2022-03-03 16:3116093 20
-
165㎡轻奢风,餐厨一体+中岛设计,
生活,需要品质。 对于每天忙碌的城市精英而言,高品质的家居生活是让节奏慢下来、舒缓身心的绝佳秘方。房子承载了我们对生活的情感,才能成为舒适的家。我们给本案取名《馥芮白》,宛如馥郁的咖啡被细腻丝滑的奶泡温柔包裹,寓意优雅、醇厚、有滋有味的家居生活。本案的女主人是一位时尚达人,喜欢舒适、雅致的品质生活。对于居住空间,她提出了如下要求:①尽可能将厨房扩大;②进门空间要宽敞明亮;③主卫增加浴缸。设计亮点↓
51299032 2022-03-25 11:458841 13
-
【2022日立空调装饰杯】玄关和电视背景墙合二为一也是极好的
1.房子基本信息小区:绿洲之馨面积:112m?设计师全名:都都装饰何志敏户型:三室两厅 房子买的是二手的,户型是传统的西边套户型,两房朝南,最初开始看装修公司的时候感觉这个户型设计不出什么新花样,想简单弄下,但是又总觉得缺少点什么,装修也属于无法前进又不得不硬着头皮去看的感觉,后面是朋友介绍了都都栗子设计师,设计师说或许可以打开思维设计大胆一点呢,于是就有了下面的设计方案 1厨房做开放式2进门处做
51587344 2022-11-11 11:3615085 15
-
【2023日立中央空调杯】138㎡江景房的风格选择与家居搭配!
这是我和我老公都非常期待的江景房,购房开始就畅享可以在大大的落地窗前,欣赏美丽的江景,所以我们对房子最大的要求就是可以有足够开阔的空间来欣赏美景,其次我喜欢锻炼瑜伽,要拥有独立练习瑜伽的地点,最重要是希望孩子的要有玩耍成长和学习的空间。 小区:春江彼岸 面积:138㎡风格:现代轻奢设计师:李挺辉、赵亚 装修公司:麦丰装饰 改造策略: 1、利用造型和灯光的过渡改变了梁低所带来的视觉影响;2、厨房改为
51731509 2023-06-20 15:1842722 18
-
【2023日立中央空调杯】女教师115㎡暖宅,打卡书房,空间0闲置
【作品简介】坐标丨湖州·大发-融悦四季户型丨3室2厅1厨2卫面积丨115平方米风格丨现代简约施工单位 | 圣都家装 设计师丨陆淼辉 本案的屋主是一位单身女教师,房屋前期与父母一同共住,后期会作为婚房。对于家的模样,希望拥有现代的高级感和品质感;保留三间卧室、两间卫生间,最好能有单独的书房。 设计亮点↓↓↓①减少空间隔断,形成LDKB开放式布局,获得优越的采光,让空间趋于舒阔、明朗。②动静分区合理
51491863 2023-04-19 10:3317489 18
-
【2023日立中央空调杯】参观设计师的家,我的婚房设计直接抄作业
去年,我们购入了明熙府的这套房子,房子相对比较偏,位于临平板块,靠近半山公园。当初看重的是房子的得房率比较高。作为婚房,我跟老公对于装修也是做了多方比对的。 地址:明熙府面积:120㎡风格:现代投入:硬装18万设计师:颜烨施工:恒彩家装 先来说说我家的情况吧,我跟老公都是90后,算是新杭州人,大学毕业便在杭州发展了。我是外企的员工,工作时间比较固定,基本下班就工作不多,所以平常在家时间多,就会做一
38562676 2023-04-04 14:1937847 11
-
【2022日立中央空调杯】111㎡素色奶油风,爆红网络的浅色系装修
【户型面积】:111㎡【装修风格】:素色奶油风【装修方式】:全包【装修预算】:16.6万【施工单位】:楚邦上易装饰 最近读了一本书,叫《伟大的复利》,上面说,品牌是人们对美好生活的需求,我深以为然。恋爱长跑了三年,在今年年初,我们结婚了,连房子还没装好,结完婚他就去上海当兵了,我在家搞房子装修。在纯设计和装修公司上考虑了很久,决定选设计比较强的装修公司,无他,平时太忙没时间,而且纯设计+施工也很心
51519285 2022-10-02 17:4813432 8
-
90后小夫妻婚房,沁蓝+米咖 配色清新,处处小资情调
家的意义不仅在于遮风挡雨,还在于提升生活品质感。本案作为婚房,更具有特别的意义,我们期望通过设计,将屋主的日常喜好及生活习惯融入其中,做出适合他们方案,为他们的新婚生活增加色彩。 【案例详情】项目地址| Address:绿城蓝庭品蓝轩装修公司| Co :铭品装饰设计风格| Style:美式轻奢户型面积| Size:150㎡玄关|入户是玄关短廊,定制了整面储物柜作为出入收纳。 客厅livin
铭品DESIGN 2020-12-14 11:2412376 18
-
【2022日立中央空调杯】114方锦粼府三房改两房,幸福感upup!
小区:锦粼府面积:114m?设计师:都都装饰张丽佳户型:两室一厅风格:现代 户型分析:1.原户型客餐厅挤在一起,南北不通透;2.厨房空间也比较局促,客厅空间采光很好;3.主卫门直接对着床头,朝向不好。 户型改造:1.牺牲一个书房改成餐厅,客厅扩大,南北通透 更加明朗;2.厨房L型布局,安装玻璃移门,开放和封闭灵活调控,使用便利;3.在床和卫生间之间定制衣帽间,增加收纳的同时也化解了尴尬。 客厅 整
51541121 2022-09-17 15:21398034 17
-
【2022日立中央空调杯】美家一赏|缺个女主人的94㎡现代北欧风
我的工作是飞机维修工程师,我的性格算是比较严谨的。这个房子目前是我自己住,但是有考虑后面女主人的入住,所以跟设计师沟通的时候设计风格还是想夹杂一些小清新的。原本的格局三个房间是比较均分的,但是因为小房间对于我来讲只要满足书桌和一张小床的就可以,反而主卧是需要大一点的。另外业主不喜欢走廊的尽头是一扇门,所以在这块的格局设计师也上做了改动。 Area:94㎡Address:钱塘御景园Design S
51373931 2022-07-10 17:303360 10
-
78㎡现代台式风格的精致空间,看如何巧妙联动
因为这套房子只是二位小年轻过度的作用,以后有个小孩子会准备更大的房子,所以在这套设计上我做了更迎合年轻人口味的敞开式厨房,以及主卧次卧打通做一个大型的起居室。~项目地址 / Address:江南文苑设计施工 / Co :铭品装饰风格 | Style:现代台式项目面积 | Area:78㎡ 设计亮点: 白色的地砖显得家里明亮,木色的门板以及护墙显得家里温馨,铜色装饰显得家里高贵,黑色的收边显得家里庄
铭品DESIGN 2022-03-11 11:019382 17
标签简介
大家都在讨论"厨房"赶紧来看看吧~



