- 
                                
                                    
                                    
                                    8个超炫收纳技巧,让70㎡的家,秒变3倍收纳力
新房刚装修好的时候,空空荡荡,再买入沙发等软装,变得温馨舒适。生活还得继续,用品还在增多。随着生活了一两年,买的东西越来越多,从刚刚开始根本没考虑过的齐人高抱枕,到后来需要的各种电热毯、棉被,这时才发现家里越来越拥挤,越来越堵塞,像是压得人喘不过气。今天小铭就为大家分享一下终极收纳攻略,还在装修的小伙伴们可要收藏起来哦~收纳一:玄关玄关作为入户的第一印象,往往都是想着装饰得怎么好看,草草准备个鞋柜
铭品DESIGN 2021-02-26 14:019283 21
 - 
                                
                                    
                                    
                                    【2023日立中央空调杯】2代同住242方简约大平层,270°落地观景
空间开阔心情好,别墅哪有平层好。今天的案例是一套242方的大平层,风格是简约风,是非常适合大平层这种户型的装修风格之一。两代人居住,而且还要考虑到儿子结婚后的居住情况,所以在具体风格上还要做到老少皆宜,不过简约风格本身就比较中性,更多是在细节上的调整。房屋信息面积:242方户型:大平层(四室两厅一厨四卫)风格:现代简约装修公司:南鸿装饰费用:硬装48W、软装25W工期:7个月户型图 (原始户型图)
50869165 2023-04-20 09:5937046 20
 - 
                                
                                    
                                    
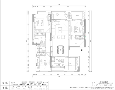
                                    【2022日立中央空调杯】89㎡现代风,决定了,就在这里与你白首
我家是一套三室一厅的刚需房,面积89㎡,2020年对我们而言,是意义非凡的一年,这一年,准备结婚、装修婚房、工作等,对家有具象的期待。在每一处空间都要有收纳,空间感要大,尽可能增加房间的收纳。前期设计阶段我们接触了很多个设计师,将对家的需求和两人的喜好罗列了几十条,统统发给设计师,经过多方对比,最终看中了细心又耐心的万设计师。本案设计以简洁大气的现代简约为风格基调,每一处家的细节都融有我们两个人
48962556 2022-06-15 15:40408971 20
 - 
                                
                                    
                                    
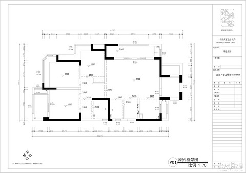
                                    【2022日立中央空调杯】125㎡适合三代人居住的现代风装修,
打破传统的装修习惯,根据我们居住需求,最大程度的优化空间。本案将原来的储藏间拆除,把空间释放出来给餐厅,餐桌居中放置,形成环绕动线,另外餐厅跟客厅的中轴线尽量统一,使整个空间更加井然有序。主卧室打破了传统的摆放方式,床头放在进门口一侧,床尾设计了综合柜,满足了衣柜电视柜办公桌的功能,进主卧门右手边设计了拱形门洞,巧妙的把休息区和门厅区分开,也增加了主卧的私密性。 放一下户型图 原始结构图 项目地址
51259396 2022-04-13 16:1413500 20
 - 
                                
                                    
                                    
                                    【2021秀家大赛】120㎡现代三居,有娃家装范本
- 家有萌宝 可爱乖巧 - 设计方案DESIGN PLAN 地址 | 白马御府 面积 | 120㎡户型 | 3室2厅1厨2卫 风格 | 现代常住 | 母女+1娃 设计师 | 朱恺琳 有娃的家庭总是要顾虑更多,我们家专门为两岁的宝宝选择了这个有着宽敞客餐厅的房子。小男娃正是爱玩的年纪,设计时规划了全屋的收纳,同时选择样式简单的家具,留出更多活动空间,在孩子成长期给他最好的陪伴。感谢九鼎装饰的
34197810 2021-05-27 11:1816609 20
 - 
                                
                                    
                                    
                                    与自然同住,满屋清新绿意,这个89㎡北欧家居不简单
户型解析 项目地址 :Address:新城红郡设计施工 :铭品装饰风格 :现代北欧项目面积 :89㎡业主信息:业主是工作追求快节奏,生活讲究休闲清静的新时代白领。 原始结构图 改造点:① 封闭式阳台,导致客厅空间过于狭窄,需要打通阳台,纳入客厅区域。② 小户型结构做客餐厅一体化,会更显空间通透。③ 书房阳台需要拆除,实现小空间最大利用化。④ 走廊通道墙体太多,需要拆除,让动线更加合理流畅。⑤ 两个
铭品DESIGN 2021-04-26 16:5115761 20
 - 
                                
                                    
                                    
                                    家有二孩,改善型住房怎么装?
去年2宝意外来了,原来的家也变得不太够用,因此跟爱人合计着置换一套大一点的住房,考虑到双方家长会过来帮忙带孩子,所以想要一个四室的房子,同时想要在2宝出生以后就能搬进新家住,故很快就定了一个215方的房子。第一套房子就是南鸿装的,所以这次还是找了原来的设计师,比较懂我们的需求,也比较放心。这次我们的要求也很明确了,针对两个孩子的房子装修需要更偏实用,储物空间要多,装修下来我最满意的部分也是儿童房部
49674028 2021-04-23 15:5914839 20
 - 
                                
                                    
                                    
                                    【2021秀家大赛】130㎡现代风,背景3D立体设计,处处有惊喜!
项目地址| Address:上塘宸章公司| Co:铭品装饰设计风格| Style:现代面积| Size:131㎡ 因为我要自己的商铺,每天要面对不同的客户,处理很多繁琐的事情。一个偶然的机会找到了铭品装饰,我想要自己的家里不要有太复杂的设计或造型,在追求简约的同时,还希望家中能有一些“与众不同的设计”,创造不经意间的惊喜。后边又与设计师沟通了许多,比如说穿衣风格,生活去哪里旅游等等。设计师综合了
50504005 2021-03-19 14:2224276 20
 - 
                                
                                    
                                    
                                    【2021秀家大赛】90平现代轻奢丨清冷高级
【小区】:光明尚海湾 【户型】:三室两厅 【面积】:90 【施工】:江水平装饰 【 风格】: 现代轻奢 平面布置图 功能与颜值兼具的入户空间,门框与玄关柜都采用了灰咖调的木色,金色做为点缀,正是整个空间基调的浓缩,现代感中夹杂着轻奢的质感。 客厅采用无主灯照明设计,加之简约的设计调性,空间感极好,敞亮大方。电视墙以白色大理做为背景,加上简洁的金属线条做为装饰,质感满分。悬空的电视柜及展示架的设计,
50498857 2021-03-14 22:3315029 16
 - 
                                
                                    
                                    
                                    67平北欧丨送你一夏天的风
【小区】:新城山语院 【户型】:2室1厅 【面积】:67 【风格】:北欧简约 【施工】:江水平装饰 平面布置图 入户门正对着的墙面空间处做了嵌入式的鞋柜,还留了部分的空间做换鞋的。在鞋柜和换鞋凳的底部做了留空和藏光的处理,让日常使用更加方便。 入户的这个走廊空间被我作为厨房来使用,L形的橱柜布局方案更适合狭长的空间,黑白灰的六边砖结合青色的墙面带来了北欧风的文艺感。 在玄关和客餐厅之间是卫生间的干
50810066 2021-07-11 21:448013 19
 - 
                                
                                    
                                    
                                    当轻奢遇上优雅亲和的她,迸发现代与艺术感染力
我个人比较喜爱原木,我先生对现代设计偏爱,儿子上大学,基本我待在家时间是最久的,所以我对家的感情是非常深的,家的氛围和品质也是我非常看中的。 选朴森也是一种缘分吧,是在逛家居商场时候进到他们店的,和他们小伙子聊天也舒适,也看了他们门店出样的原木家居,细节和做工都还不错就定了他们家。 【小区】: 朗诗乐府【户型】:四室两厅【风格】:现代原木混搭风 平面图 房子是精装修交付的,硬装也没想去动,就麻烦
46202182 2021-05-02 14:489874 19
 - 
                                
                                    
                                    
                                    76㎡舒适北欧2室2厅,电视背景墙实用性逆天!
这是一套北欧风格的装修案例,整个家里充盈着自然舒适的气息,感受到身心的放松与愉悦。希望这套装修案例能给大家带来一些灵感。整体空间以白色和原木色打底,搭配深深浅浅的灰色穿插在空间里,温馨而有格调。朴素的色彩、简约的家具、流畅的线条,让空间的每一处都呈现出自然与舒适。通过抱枕和挂画的色彩点亮空间表情,不多不少,恰到好处。电视背景墙,大面积的白色储物柜延伸至餐厅区域,保证强大的收纳功能,使空间看上去整洁
亚加装饰始于1994 2021-03-26 15:257804 19
 - 
                                
                                    
                                    
                                    97平简约风格装修 如何装修让家显大!
【小区】 :星汇花园【户型】:3室2厅【面积】:建筑面积97平,套内面积78方【风格】:现代【施工】:杭州江水平装饰 家里柜子是做的一面墙设计,空间看起来齐整统一,让整个客厅空间视觉上都变大了很多。玄关处既可以做鞋柜,也充当了餐边柜的作用,节省空间的同时又发挥了很大的储物作用。台面摆放一些彩色装饰画,摆件,植物让家瞬间变得温馨。 鞋柜底部镂空,方便平时出入鞋子的收纳,预留人体感应灯带,回家再也不怕
50806625 2021-11-02 06:559470 18
 - 
                                
                                    
                                    
                                    90后小夫妻婚房,沁蓝+米咖 配色清新,处处小资情调
家的意义不仅在于遮风挡雨,还在于提升生活品质感。本案作为婚房,更具有特别的意义,我们期望通过设计,将屋主的日常喜好及生活习惯融入其中,做出适合他们方案,为他们的新婚生活增加色彩。 【案例详情】项目地址| Address:绿城蓝庭品蓝轩装修公司| Co :铭品装饰设计风格| Style:美式轻奢户型面积| Size:150㎡玄关|入户是玄关短廊,定制了整面储物柜作为出入收纳。 客厅livin
铭品DESIGN 2020-12-14 11:2412291 18
 - 
                                
                                    
                                    
                                    131㎡现代三居,全屋做隐形收纳+黑白灰色系
户型解析项目地址 / Address:上塘宸章设计施工 / Co :铭品装饰风格 | Style:现代项目面积 | Area:131㎡业主不喜欢太多得造型和复杂得设计,但是又希望简约的同时要有不意间的小心机。整屋设计以简约大方的风格为主,追求隐形收纳,柜体收口干净利落搭配无主灯设计,结合虚光的运用,让空间更显整洁和清爽。 原始结构图 平面设计图设计亮点: 1、入户设计玄关柜,底部设计换鞋区,方便进
铭品DESIGN 2021-05-05 14:527508 14
 - 
                                
                                    
                                    
                                    老房改造系列——儒雅之境 141㎡新中式家居
流光千年印古意,四壁浮影悟中采。袅袅熏香絮絮绕,诗词意境自然来。 在深化方案的时候考虑加入现代的一些元素,不锈钢,木饰面等。山水元素,充满了意境的朦胧和神韵,有时感觉是清新自然的,还有时感觉是波澜壮阔的,心灵和现实交融的感受,让整体风格彰显线条,简洁。 本案来自南都德加,141m?新中式设计风格,装修设计公司:麦丰装饰。 量房的时候看到原来户型装修的风格,感觉已经是十几年的装修感
麦丰装饰2007 2021-03-18 17:195713 7
 - 
                                
                                    
                                    
                                    【2022日立中央空调杯】以灵动去触碰『现代』艺术,荡开一塘夏意
五月是玫瑰肆意生长的月份,吸收了冬日雪水和春之光华,在夏日初启的时候,所有花瓣一起抢地,全力营造那种舍身的浪漫。 设计方案设计师 - 马西亚风格 - 现代地址 - 星桥华庭嘉苑面积 - 160㎡户型 - 4室2厅1厨2卫装修公司 -九鼎装饰 家里的设计来自于九鼎装饰设计师马西亚,我们家是我们夫妻居住,喜欢现代简约的风格,对新风格、新技术也敢于尝试。测量后第二次见面就签约了,足够的信任是一个好作品
34312033 2022-05-19 13:489917 17
 - 
                                
                                    
                                    
                                    【2022日立中央空调杯】今年儿子的生日,和他在法式新家里庆祝!
在塞纳河畔左岸慢酌意式咖啡,耳机里流淌着周董的《告白气球》,徜徉在凡尔赛宫的花园和镀金廊柱,然后目眩神迷,红酒和玫瑰香氛都成了掌中之物……这些是专属于法兰西式的高贵浪漫。 而我想借重新装修把法式风格安放在家里,身居其中,让感觉成为永恒。中户型房屋装修法式风格颇有挑战性,但没有女性能逃得过如此浓郁的优雅情调。 家里老人爱人孩子三代同堂,也有自己的小想法,和城建设计师章工沟通协调,现实与理想逐步融合,
40428207 2022-03-18 10:319123 17
 - 
                                
                                    
                                    
                                    153㎡新中式三室,山水墨画沙发墙,打造出别具一格的江南风情
这是一套153平米的户型,整体以独特优雅的江南水乡风情的格调,以诗意朦胧的山水与墨色的装饰元素,营造出一个别具一格的新中式风格,带来的是一种焕然一新的氛围感。 ▲ 平面布置图客 厅 ▲ 客厅以古朴的水墨风情,素墨色的空间搭配,使得空间充满了儒雅的中式格调。 ▲ 沙发墙以浅淡的诗意画面,结合中式造型的墙饰,在右侧的边几上摆上一盆梅花装饰,整体简单的空间带来的是朦胧的气息。 ▲ 洁白的电视墙,以黑色边
50153787 2021-03-17 16:502862 4
 
标签简介
大家都在讨论"玄关"赶紧来看看吧~
 



