5人参与 3609浏览
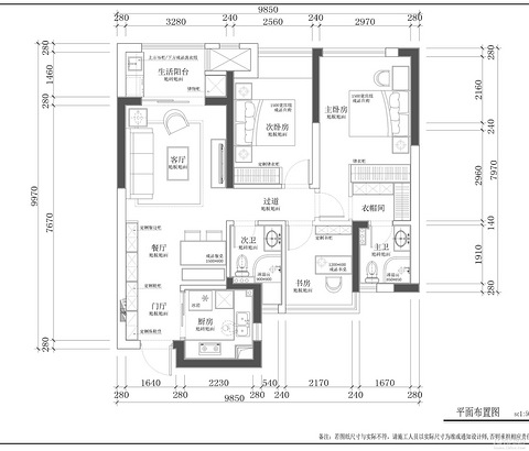
我家毕业了,现代简约,三房爆改四房
楼盘:东方星城造价:43万(硬装+软装+电器)面积:124方户型:四室两厅两卫设计师:杨环信装修公司:铭品装饰风格:现代简约 买房子的时候都抢的不要钱的一样(先吐槽一下),后台不够硬,没有抢到我想要的户型,最后当然还是买了,不然就没有接下来的故事了。买了3房,其实我家按人口来说是必须4房的,所以对于我们来说找设计师很关键。真的,真的比较设计师让我跟我老公都要跑断腿,去了好几家装修公司,设计师出来
83374 124
江南之星 mini户型 装修进行式
2019年1月15日开启我的装修日记本周末收房。已经预定了不少装修内容了,虽然是12月才开始看装修,这一个半月时间定下了:装修公司---已签约中央空调---日立地板----莫干山地板已付定金部分柜子定制---莫干山家居已付定金橱柜 ----志邦 付好多钱,有点难过厨卫吊顶---奥华 已付定金厨房瓷砖 ----冠珠卫生间阳台瓷砖-----嘉俊房间木门 ------日门建材 (看过来N多品牌的门,唯独
11691 56
美式田园温馨梦,完美毕业,分享一些心得~
【小区】:云东公寓 【户型】:三房二厅二卫 【面积】:143 【设计】:自己 【风格】:简约美式 【施工】:江水平装修 【购材】:铝合金封闭阳台【板桥佳洁斯门窗】;中央空调【日立 斯铂瑞】;水管【伟星】;厨卫墙砖地砖【东鹏】;地漏【淘宝老铜匠,潜水艇】;木门【欧派】;家具及移门【安普】;灯具【雷士】 前期做了很多准备,包括选装修师傅,设计风格,主材购置等等。思前想后,最终决定不靠设计师,自行设计,
6240 26
安装全过程拍摄,还给刻光盘 ,也太贴心了吧!
选中央空调真是一个漫长的过程,我家是120方,两层,但是公摊面积比较大,看了三家日立的店,他们家有三个系列,Ex、Vam mini、Vam尊睿,Ex主要针对的是平层,最多一拖六、Vam mini适用于200平以内的平层,别墅,洋房。Vam尊睿是适用于别墅系列。ex是双转子压缩机,mini是涡旋压缩机,如果预算充足考虑到制热建议大家选涡旋的,像我家这种Ex就足够了。 看了这么多空调店,价格其实都是差
15027 18
安装中央空调时应该注意哪些?这3点你必须知道
一直想用中央空调,在众多品牌中的定位也很准确,要么格力要么日立,最后日立胜出。看中的无非是这3点: 1、我家的层高不够,2.3M左右,他们家这款内机只有192mm,完美解决了层高不够的尴尬。 2、装中央空调的重要隐患应该就是担心漏水导致吊顶被泡,霉变。这款内机除了正常的排水管外,另增了一条水泵排水口,双排水口的设计解决了漏水导致会泡顶的后顾之忧。 3、都说中央空调三分机器七分安装,可见安装也是很重
4910 9
标签简介
大家都在讨论"日立中央空调"赶紧来看看吧~