-
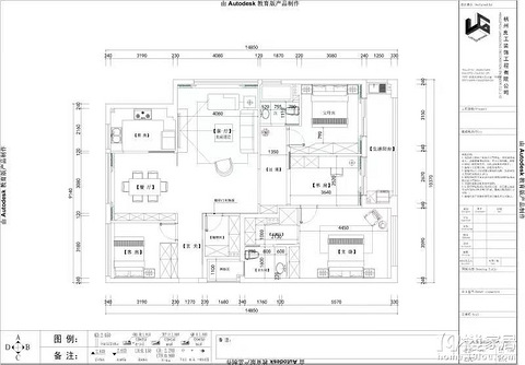
求一个设计师,房子精装交付,需要部分改造和设计
求一名软装设计师,精装修交付,部分改装设计,比如客厅瓷砖和墙面颜色的整体搭配,整个房子的柜子打造和设计,还有软装的挑选把关
U46184745 2023-07-17 17:552679 5
-
铝合金窗户改色
家里的铝合金窗户改色,黑色改成白色,有没有可以做的地方?求指教
50701550 2022-12-12 10:151543 5
-
入住一年,装修后悔的事!
之前介绍过我家装修是半包给装修公司的,硬装软装都是自己设计的,中途踩了不少坑,入住1年了,因为空间的加持住起来还是挺舒适的,风格也是我们喜欢的,整体感觉良好,但还是不可避免出现一些后悔没装好的地方,今天跟大家分享一下。 1、装修合同增项我们是半包给本地规模很小的装修工作室,前期沟通面对面讲清了装修诉求,由于缺乏装修经验,一些细节没有写在合同里就直接把合同签了,后面增项和扯皮的事就很多,增项价格一分
40705600 2022-11-14 16:2650106 44
-
明式中堂
49767969 2022-04-06 18:251309 5
-
请问:这两个户型怎么选?有分析就更好了!
A户型一楼A户型二楼 B户型一楼B户型二楼
11067998 2022-03-02 10:151004 6
-
有汗蒸房推荐的吗?
想做一个家庭式的汗蒸房,有推荐的吗?
拾玖侠客 2022-01-19 10:211230 7
-
【19楼帮帮团】全屋定制还要防晒,我家柜子两个月由灰变绿
提到装修中的家具购买,就不得不提全屋定制,毕竟在好木工不好找,成品空间不合理的情况下,全屋定制的确是很多朋友的第一选择。 但是,在网上随便搜搜,关于全屋定制的坑总有不少人还在踩。这不有网友就在19楼版内开启了全屋定制的吐槽大会。 楼主@A小uuu吐槽说全屋定制的灰色木作才过了两个月就变成了黄绿,商家上门后却说是紫外线照射的原因。 2020年9月11日楼主在杭州某知名装饰公司签订了一份2020年9月
家居小七 2021-11-16 15:2227677 44
-
又买房了,求人品好价格公道拆旧师傅,
敲瓷砖多少一方还有墙之类的请报个价谢谢
今夜离你好近 2021-11-16 08:521223 2
-
救救孩子吧,这图纸看着别扭,又说不出来哪里,求大神帮忙改一下
主要我就想主卧的衣柜能明亮一点,不要做成传统入门L形不透光,然后我爸的要求是不能门对门,不能门对镜子,不能对马桶,就把设计师难住了,好不容易有个设计师出的方案都满足了我们的要求,但是现在又总觉得哪里别扭
27985604 2021-09-23 20:501011 5
-
卫生间拆旧翻新
专业师傅联系
12402487 2021-09-12 01:141937 10
-
求助,老破小20平阳台,该如何设计
我们家是老破小的一楼,自带一个20平的院子。需要贴瓷砖还是防腐木?有懂得人帮忙指点一二不
31801945 2021-08-25 10:181356 3
-
孟也老師說:這個時代把理想賣出去,這是牛逼的!
49767969 2021-08-22 12:391128 5
-
四季轮回
简与繁
健身的香菇rr9061 2023-09-06 09:422130 2
-
清清爽爽的轻法式久看不腻#装修设计#
51646649 2023-02-09 13:472656 9
-
出办公桌椅柜子
在宁波市鄞州区 几乎全新 自提 面议
51157462 2022-02-25 11:001078 5
-
装修,我也是细节控
每个人都想拥有一个温暖的家,这家或大或小,只要能够栖息,那便是避风港。我想在自己的房子里装上我喜欢的颜色,喜欢的家居,想要属于我自己的温柔小细节。就像,我有许多鞋子,我想拥有可以包容我所有鞋子的柜子。那么问题来了,如何设计鞋柜呢?我不仅要入户鞋柜,还要有专门的鞋柜,要让我的宝贝鞋们也有归属地。那么我就要根据我鞋子的尺寸大小来定制鞋柜啦。比如,运动鞋,高跟鞋,长筒靴......我呀,希望在家的很多地
50931186 2021-07-11 17:071350 4
-
木工完工|验收
楚邦上易装饰全杭州免费量房出方案,回迁房新小区样板房征集。
35589491 2023-06-25 15:192308 4
-
pd门
临安有哪家做pd推拉门的,求推荐!
49666762 2023-05-31 12:532183 4
-
我真的不想再付电费了,你知道家里最费电的家电吗?
最近,汪小菲一句:我不想再给她家交电费了,霸占热搜无数条!大S家高达9万的天价确实吓到了好多网友。 大家都很疑惑大S家是在做什么,才会花费那么多的电费呢? 在大家忙着吃瓜的同时,大家是否也看看自己用电,到底哪些家用电器最费电呢? 肯定很多人都想知道家里耗电量最高的电器是什么,我也是一样。曾经一度认为肯定是冰箱超负荷运转。直到问了懂行的人才知道,冰箱不是家里最耗电的电器。那么家里最耗电的电器有哪些?
明月应笑我 2022-11-24 14:2519516 43
标签简介
大家都在讨论"装修讨论"赶紧来看看吧~



