-
圣都vs中博;良亿vs焕新
两家大公司,两家小公司都跑了。另外两家跑了印象不好就pass了。杭州老破小翻新到底选哪家好?大公司好还是小公司
hanji28203 2025-10-13 23:579111 1
-
剩余22片大瓷砖有需要的便宜拿走
原价185一片,40一片,600×1200的大小,可以贴一个浴室或厨房
水手007 2024-12-10 18:005528 1
-
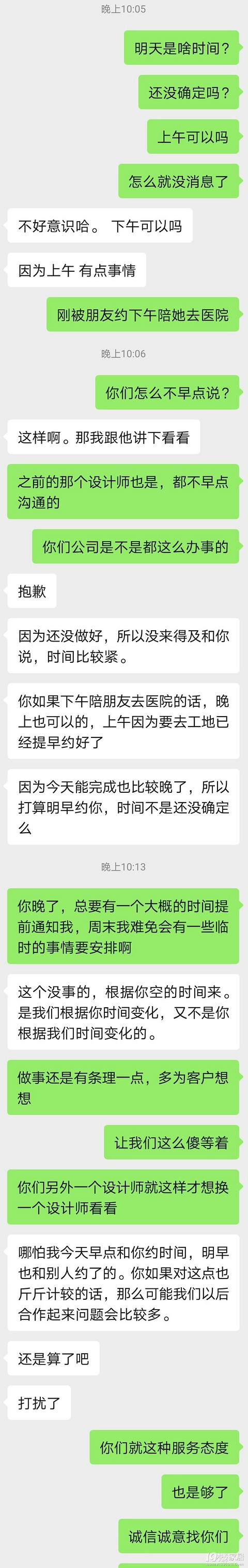
装修第一坑——设计师!我先踩为敬!
装修第一次生气,这不就来了…找了独立设计师,刚接触的时候觉得很聊得来,现在发现他是压根没自己的想法,是全部附和你的想法,所以才给你一种很聊得来的感觉…一个月了,平面图改来改去永远都是错的,施工图今天说明天上午出,明天上午说晚上出,晚上问他就不理人[ej=1F621]
50087583 2023-03-10 23:103393 8
-
杀猪,上门测量了下就要1000块,无信誉商家小何木榫板
一家没有信誉的小型原木定制店,从被这家店坑了以后,经常在19楼发现佳好佳里面的店铺坑人的,这家店就上门测量了下,要1000块,他的测量成本也真是高,早知道他们有起步价打死也不会让他们测量,测量的太随意,就和后面加价一样随意。后来找的测量师傅,非常的认真测量后做的,怕甲醛选了全胡桃木做的柜子,虽然没有千篇一律的多层定制柜好看,但是我觉得挺好的下次找时间再写下那天记者上门去的细节,也是我唯一去的一次店
50959669 2021-09-25 01:052406 8
-
装修那些糟心事~奇葩的万佳装饰
杭州的新房六月份交房了,陆续看装修公司,做对比,结果都太贵,朋友是sd装修公司设计师,推荐了他认识的一家装修公司万佳,结果开启了奇葩的两个月之旅:第一个万佳的设计师:朋友的朋友,约了我去他们公司,下班匆匆忙忙大老远的跑去,结果那个方案一看就是随随便便搞了一下,她自己都说方案就是很普通,朋友介绍的也不好发脾气,后来问了她几个问题,她自己也意识到了做的太随便,说要去现场量房,让我提前和物业打招呼,还把
51004855 2021-08-20 23:063577 8
-
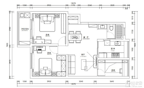
杭州装修日记一墨缘
今天是装修第14天,其实我都没去工地,那我来更新啥呢![ej=1F604][ej=1F604][ej=1F604]今天定了窗户,我的窗户基本上把细节全都定下来再找商家一个一个谈,前期花的时间比较多,后期就不容易三俩句被忽悠。我对隔音要求比较高所以都选的开窗没选平移,楼层低金刚网纱窗防盗,而且要做细纱0.2点,透光性好点,但是大家都说金刚网不防虫,我有点慌……[ej=1F614],窗户具体细节可以看
50891094 2021-07-17 16:551798 5
-
中央空调,要理解客户比价格,难道要求客户只买贵的?
某某客户来海信中央空调门店,开口就问某某产品,价格多少? 小伙伴们不要喜欢,跟我抱怨,说某某客户,就是来比价格的。 我特别理解客户的比价行为,中央空调,虽然说安装重要,但客户没几个人懂安装,甚至有客户,认为同一个品牌,是不是肯定是同样的安装标准? 不错,每个品牌,的确都有自己的安装标准,也有一定的巡检制度,但不同的暖通公司,甚至是一家暖通公司,但里面安装师傅不一样,安装品质都不一样。甚至我这么跟你
我还是天问 2025-12-02 15:4920021 4
-
湖州新方向装饰公司是个骗子公司
湖州新方*装饰公司是个骗子公司,有踩雷的吗?签合同前什么都好说,签完合同后只认钱,现在已经超出合同期几个月拖着不装,还恐吓威胁,一套套的,前两天去他店里看到有好些人找他,好像都拖着,员工几个月内全部换了一批,房租也交不出,水泥工这种也是欠了一屁股债,有在他家遇到同样问题的可以联系我咱们一起维权到底!就这么被坑了太气人了!老板李钢(李刚*)需要装修的也别踩雷了,记住这个人,表面看到的都不是你真正看到
51965245 2024-07-29 08:0412148 11
-
避雷垃圾售后商家,实木踢脚线还没入住就开裂
图片只是一部分,客厅有一整条就是凹凸不平。给商家反应了两个星期,说派人来看,一直没来。问什么时候来处理,也装si不回复。说是我家的问题,潮湿。请问裂成这样合理吗,安装时候就感觉钉子有点多。请问这种可以维权吗?是质量问题吗?还是安装问题。[/11大哭]
51955439 2024-07-04 08:2715266 11
-
一楼厨房返水!我家地板全泡水里了
新房装修入住不到半年入住遇上大麻烦了,因为家在一楼,结果晚餐时间,厨房落水管坏了,上面楼层的厨余水都排到我家厨房。赶紧联系房产维修,房产说施工单位维修方要后天才能来维修,只好联系物业赶紧通知整栋楼的业主注意生活用水。 但是整栋的业主,真的没法控制,物业也没一对一对接,只好自己负责联系,不然我家地面全都泡在水里了,而且会渗到地下室。 但是房产只是承诺把我家按照工装原始布局,修复堵塞的地方,感觉以后还
50269043 2024-04-23 15:2010466 11
-
有谁知道临安淋雨房哪里有的买
有谁知道
1993零七零一 2024-03-16 20:482943 1
-
【2023装修日记】期待蜕变
已经等不及的想要快点看到完成了,但是才刚刚拆旧完[ej=1F604]
shaoqong123 2023-02-22 16:3310902 11
-
1234
1234
40026389 2022-07-29 10:312139 11
-
如此坑人无赖装修老板
按照合同我已经把水电工,木工,油漆工的材料费与人工费都已经付款给老板了,现在好,直接给我停做快二十天了,电话不接,微信不回。九十平的房子已经装修快五个月了。该怎么办哦。
28123241 2022-07-19 16:072077 11
-
找油漆工、电工
因项目经理甩锅,需要收尾油漆工和电工,按点工算。有技术好,经验丰富的老师傅介绍。站内联系,或留电话。地址三墩,家装师傅。谢谢,非诚勿扰,狮子大开口勿扰!
za11189 2022-05-18 20:512786 11
-
水电结束增项
大佬帮忙看一下合不合理?这些增项。
19481798 2021-08-28 22:473220 11
-
寻找泥工师傅一湖墅南路米巿巷社区
泥工师傅,粉墙、砌墙、铺砖、防水
50618520 2021-08-19 20:161965 11
-
中央空调价格内卷,把良心卷没了!
杭州暖通业,今天朋友给我发了一张图片,上面的公司很大,10年前我接触过,还是在一家展会上碰到过。 当时这家企业,在整个展会现场,和我一样,是唯二在展会现场,展示精工安装工艺的,并且我承认,当时我抱着虚心的态度,还请教了很多问题。因为当时,我还是入行小白,而这家公司说的理念,让我特别佩服,他们也说:一个行业,总要有几家企业,要坚守底线。 转眼10年,朋友发来的图片,我又看到这家企业的名字,很熟悉的名
我还是天问 2026-01-06 11:1520906 7
-
家装窗帘怎么选?是选品牌的还是不要品牌的?
家装窗帘怎么选?是选品牌的还是不要品牌的?选品牌的怕太贵,不选品牌的怕太差,就很纠结,有没有性价比高,质量好的那种窗帘?或者是牌子什么的
51310340 2023-03-23 10:073291 7
-
无赖天目装饰公司老板
转眼之间,合同已经超期40多天了,装修协议里写明超期一天赔偿200。现在尾款已经超过赔偿了,活还是继续拖,不知道这种情况应该如何处理,请行家指点。
28123241 2022-10-13 16:053220 4
标签简介
大家都在讨论"装修吐槽"赶紧来看看吧~



