-
自然随性,春风醉丨108平三居
【小区】:湖山帝景湾 【户型】:三室两厅 【面积】:108 【 风格】: 现代简约 【施工】:江水平装饰 平面布置图 玄关整体白色的柜体空间,柜体空间加入了一个木质的格架,简洁的空间体现出主人简单大方的生活态度。 大理石质感的电视墙,嵌入式的电视柜机壁炉造型,旁边还有一盆的芭蕉叶绿植,整个空间充满了时尚清新的气质。 驼色的皮质沙发,搭配圆形双拼的木质茶几,还有雀绿色的沙发椅,整个空间强烈的对比色,
50721524 2021-05-30 22:133622 9
-
130平全装修过程,惊艳~
【小区】:海德北岸城 【户型】:4室2厅1厨2卫【面积】:建筑面积130 【风格】:美式混搭 【施工】:江水平装修队【开工时间】:2018-4-1 【进度】:装修结束 【预算】:硬装35万 【购材】:大金中央空调,西门子油烟机、灶具、洗碗机、烤箱,史密斯热水器、净水器,奥普浴霸、美尔凯特集成吊顶,玛拉兹仿古砖。。。。。。 【师傅】:拆除-李师傅 水电-杨师傅;瓦工-王海军师傅;木工-小杜师傅;油漆
48934563 2019-08-08 18:444843 6
-
东方一品60平老房爆改
【小区】:东方一品【户型】:2室1厅【面积】:建筑69平,室内60平【设计】:参考网络,自己规划【风格】:极简实用【施工】:江水平装修队,拆除李师傅,水电郭师傅,瓦工夏师傅, 木工解师傅,漆工童师傅【进度】:6月2号拆除完毕,6月9号水电交底,6月13号水电进场,6月18号水电结束,瓦工进场,7月7号瓦工结束,木工进场,7月15号木工结束,漆工交底,7月17漆工进场, 硬装结束【预算】:15W软硬
48935069 2019-09-04 05:334515 2
-
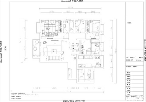
绿城富春玫瑰园,美式混搭毕业啦~
【小区】:绿城富春玫瑰园【户型】:4室2厅1厨2卫【面积】:建筑面积130【风格】:美式混搭【施工】:江水平装修队【预算】:硬装35万【购材】:大金中央空调,西门子油烟机、灶具、洗碗机、烤箱,史密斯热水器、净水器,奥普浴霸、美尔凯特集成吊顶,玛拉兹仿古砖。。。。。。 上户型图: 自己在外面找的设计师设计了一下,空间不好利用,房间小,客厅大,还没有个正经的饭厅,惆怅啊~当初考虑了很久,2年半前装修过
49031421 2019-09-07 19:074679 4
-
东裕华庭美式毕业,完美避坑记~
【小区】:东裕华庭【户型】:三室两厅【面积】:130左右+露台【设计】:SR【风格】:美式【施工】:江水平【进度】:完工入住【预算】:装修30万+其他装饰 早就想写个装修日记,可是本人太懒,加上杂事居多,心情不定,无法安心。现在入住小半年,为了我敬爱的几个装修师傅,终于决定在9月前将一年多的装修史跟大家絮叨一下。我是2016年年底买的房子,2017年6月份拿到的房子。因为房子户型比较复杂,涉及到开
48935052 2019-08-31 20:224724 4
-
宁都花园美式乡村毕业,附报价和装修过程心得
小区:宁都花园户型:三室一厅一卫面积:92㎡(套内78㎡,赠送了接近12㎡面积,半个阳台,半个厨房。)设计:楼主风格:美式乡村预算:20W(已突破,包电器家具软装23.3W完工) 硬装江水平报价6.8W,最后8.2W完工(不含千年舟板材7750元) 购材:久扬地板、史密斯热水器、美标卫浴、箭牌水槽抽拉龙头、华帝油烟机灶具、千年舟生态板、美的吊顶风暖机凉霸、格力中央空调(一拖二)、长谷仿古砖、
48935100 2019-09-05 18:513855 2
-
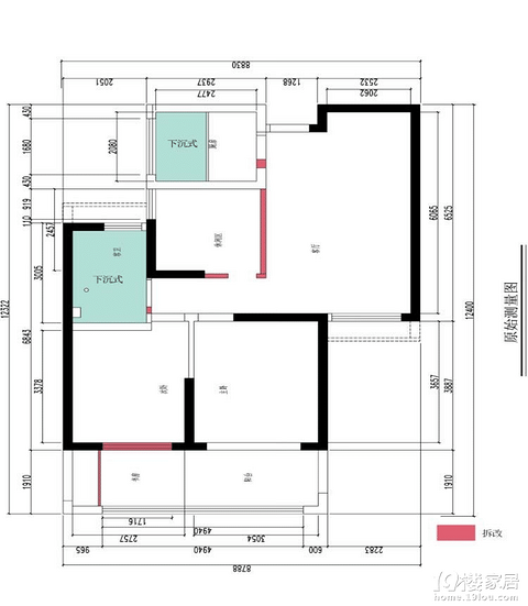
旭日上城88平装修记,完美毕业~
【小区】: 旭日上城【户型】:三室一厅一厨一卫【面积】: 88平米【装修公司】:杭州江水平【设计】: 自己【风格】: 混搭【施工】: 拆除-李师傅;水电-张亚师傅;瓦工:张茂定师傅;油漆-张宁师傅【进度】:完美毕业【预算】: 14万【购材】: 朗格系统门窗、罗浮宫瓷砖、恒洁卫浴、楷奇木门、老板烟机灶具、科诺地板、林内热水器、特略集成吊顶、好太太晾衣架、女皇壁纸... 2018.1月拿房后就开始和客
48934816 2019-08-11 16:234383 2
标签简介
大家都在讨论"江水平装饰"赶紧来看看吧~



