-
我的装修日记--意式轻奢风格打造我的专属小窝~
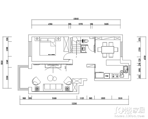
装修是一个很累的工作,所以找对了设计师跟设计公司很关键,我们家是建筑面积122平方的房子,户型为四房两厅两卫的结构,玄关的地方我提了一些要求,因为视玄关处给人一种仪式感,便于换鞋与收纳,也具备观赏性;厨房区域与餐厅区域的相邻,可以避免因距离过远而耗费过多的置餐时间;主卧内置主厕,主厕内去掉了淋浴房加上浴缸,让我有一种舒适的生活方式。房屋采用了意式轻奢风格,删繁就简,去伪存真,简单到极致,追求感官
50502274 2021-01-31 15:3144039 73
-
30万装好时下流行的轻奢风,温馨简约,进门第一眼就被迷住了!
写在前面全职老母亲一枚,大宝也上四年级,有了小宝之后为了方便照顾,我们就在父母旁边小区定了这套,爸妈会偶尔来帮忙我带带小宝,聊聊天,感觉小日子过的还是很满足啦。装修是个累人的活儿,找对人(设计师)很关键!设计师全程帮我们考虑到很多,因为带小宝因为不能到场的设计师一般一呼都能到场帮我协调很多事,事实证明,装修找装修公司一定要近啊 !!!关于风格:我们夫妻两个对家里没定下什么风格的要求,主要是提了一些
50096459 2020-10-22 11:4139900 73
-
【2020秀家大赛】时光和你都在我身边
两年多的装修历程终于结束了,住了一段时间了,我先生经常在外出差,他平时在上海上班,双休回杭州住,我经常加班,年前不容易我俩都有空,约了设计师过来拍了照片 照片是年底放假时候收到的,本想年过完后拍拍日常搜集一下,整理整理好好写篇帖子记录一下,因为疫情的原因,多了一个多月和老公儿子在家的温馨时光,阳光照进来看他们一起玩着玩具小车,角色扮演,这大概是最完美的家庭日常了——————————————————
49771969 2020-04-24 16:5144593 69
-
托斯卡纳的艳阳 意式轻奢
先放张图镇个楼 智能手机更新迭代,慢慢电脑端的19楼几乎要被我们遗忘了,这次装修重新登上这个界面,真是熟悉又陌生呀,翻了翻历史,从毕业到结婚,第一套房装修学习到第二套装完,都是时间 这次找的设计师还是捌零玖零设计的陈少,第一次合作很愉快,我们上一套5年前装的现在看起来还不算落伍,算是比较早的现代简约,那时候就做了开放式厨房和岛台,空间感很棒,买这套房子主要是女儿读书方便,我夫人呢对家里的审美要求比
11693600 2021-04-25 23:0544593 70
-
【2021秀家大赛】一个可盐可甜的家
买完房子就零零散散的在看一些装修类的东西了,看多了,自己都不用特意去找了,猜我喜欢这个功能猜的真准。慢慢的看多了,发现很多人求助装修,不管说了啥,只要问到一句喜欢什么风格,整个人就懵了。看来最主要的还是自己想象中家是什么样子。 其次就是要把自己的情况仔细(记住是仔细)的跟设计师交流情况,家庭成员的生活习惯和爱好,这样设计师才能更好的去针对各个问题去做设计方案。有些时候自己不知道该要说些什么,设计
33786886 2020-12-06 17:3949256 70
-
一家三口的135㎡轻奢风小家,终于毕业啦!
装修了大半年的房子,可算是装好了,在这里做一个简单的记录,也算是有始有终吧。这是我主导装修的第一套房子,很怕装的不好,难看点倒还是其次,就怕施工出问题,住进去还要各种请人返修。所以如何选到一家靠谱的装修公司,就是我当时最关注的事情,我在网上看了好几天,觉得案例不错的,都是设计工作室,施工方面不太放心,觉得施工口碑还不错的,设计上我又觉得差点。来来回回折腾了好几天,在业主群都发起了求助,有两位邻居向
42000859 2021-09-17 14:4027789 69
-
【秀家大赛】喜欢风一样的自由,也喜欢家一样的温暖
都都装饰其实不是我最初的第一选择,因为觉得在我了解看来,他们名气并没有太大,同样的绯闻也没有太多,价格属于适中,不算高也算低,最终打动我的,还是跟以前的老同事吃饭,聊起装修的事,说他们家以前的房子就是都都装修的,都快9年了,都都依然还在为他们家做售后,这个事情让我感觉蛮感动的,这样一个售后工作都能把客户放在首位的,就算名气不大,但是一定是最实在的公司。本来已经以另外一家公司交了定金,因为这事把那
50057826 2020-06-26 16:0844579 67
-
【2021秀家大赛】智能家居让生活更自然
90后的探索者,从小就伴随着电子产品长大,现在也非常喜欢上网冲浪和数码产品。喜欢看一些最新的数码潮流讯息,有一次无意间看到了家居智能化,非常好奇的点了进去。 智能化的家居,一种新颖的家居生活方式。现在也拥有了属于自己的新家,也终于能亲身体验到另一种家居方式。 风格的话还是喜欢干净清爽一些,不需要太多的家具,设计要时尚一些。除了我的一些需求,还有就是,工作原因需要经常出差,所以很看中设计师本人的工作
33884310 2020-12-13 17:5038684 54
-
【2022日立中央空调杯】160㎡巧改布局,内存翻倍收纳力Max
我对家的要求不多,主要是整体舒适,不要求多有设计感,但是收纳一定要足足的,因为家里有俩小孩。找上良工也是机缘巧合,一开始不打算找装修公司的,主要不懂里面的弯弯绕绕,很怕被坑。本来也打算自己动手装了,后来我闺蜜家装好了,就办了一个暖房宴邀请我家去,我去看了,还真的挺不错的。闺蜜说这个设计师也比较认真负责,我就抱着看看的心态去聊了一下,设计师给我们家也做了点方案,我一看也真的觉得还不错,所以还是决定找
32800459 2022-05-09 15:4225769 32
-
设计师心细如发,施工师傅巧夺天工实现现代轻奢精致主义
今天看别人的秀家突然心血来潮,也写一篇秀家吧,每次都是当潜水员,潜水员今天浮上水面了。正好今天周末天气冷,孩子也不愿出去玩了,等啥时候天气晴朗了再带他们出去玩,最近天气冷出去玩也容易感冒。家里面现在就我们夫妻和两个孩子了,一儿一女也算是圆满了。还好她也希望有两个孩子,没有闹什么矛盾。 其实装修上的时候大部分都是她去弄的,我主要负责结账和做饭带娃,因为我买东西不是一个细心和跟别人砍价的人,很多东西会
33786892 2020-11-29 17:29228285 63
-
【2022日立中央空调杯】轻奢不仅是好看,还有品味
开始只是在楼里看到不错的案例,因为我们房子在临安,不在杭州城区里面,但考虑了两天还是尝试性的问了一下,当时没想到他们刚刚在临安开了分公司,就不用我们经常开车来城区这边了,我们工作都是在临安,我在工厂里面做技术,她公司做财务,家里面还有两儿子,儿子也是在临安读小学。这也是为啥当初要买在临安,上班方便,孩子上学也方便。最重要的是有一个居有定所、情有所依的地方了。所以在风格上也是温馨的格调,最后选择现代
33449508 2022-02-23 18:0944900 51
-
【约克水空调杯秀家大赛】129㎡现代轻奢,千金就得这样富养!
都说女儿是爸妈的贴心小棉袄。我家就有一位千金,就想为她营造出一个浪漫精致的轻奢氛围,盼她长成优雅娴静的美好模样。 我们夫妻都比较喜欢小资的生活,机缘巧合通过朋友认识了和我们有相同兴趣爱好的设计师,我家有一位正在读大学的掌上明珠,对她十分疼爱,一直都奉行“富养女”的原则。 究竟该如何富养女儿?我和先生都认为环境对人的影响是潜移默化的,富养绝不仅限于物质上的满足,还要为女儿悉心打造家庭环境和生活氛
47500448 2020-05-06 16:4947545 61
-
新年新气象,跟大家分享一下我的第二套轻奢跃层新居
快过新年了,楼主今年把家中长辈都接到杭州一起过新年。当然了,之前那套房子是小了。不过,楼主今年经过一番仔细挑选,已经换了现在的这套更大的房子。这套房子是买的二手房,主要也是因为孩子年纪大了,再加上家中长辈也要来杭州长住,所以就买了。买了之后,找到窝家里软装,经过一段时间的重新设计,最后变成了这处让我们一家人都相当满意的新居。 坐标:浙江杭州小区:绿城桃源面积:135方户型:三居装修预算:30万元风
49244845 2020-01-21 10:5133892 61
-
167方现代轻奢,挑空设计落地实景
房子:璟宸府面积:167方风格:现代轻奢装修公司:城建装饰模式:半包设计师:汪虎 房子还没交付前就在留意装修公司,通过19楼展会在现场和几家公司的设计师沟通后有了一定的了解,设计师的理念很重要,更要考虑各种生活功能的实现和空间的最大化利用。根据提供的房屋结构图,自己也在纠结做“挑空设计”和“非挑空设计”,如果保留原始户型中楼梯的位置,将原挑空的地方浇筑起来,可以增加很大一部分使用空间,但层高的限制
51546845 2022-09-28 14:14571866 60
-
【2022日立中央空调】轻奢风居然只有81㎡,设计师的鬼斧神工!
因为我们房子的户型面积户型面积比较小,但是隔断式墙体却比较多,我跟我太太都非常不满意,前期也对比了zb、sd、cj和铭品这几家杭州比较有名的装修公司(因为最后没有选择缩写的这几家公司,就不展开来写了)。 总之一圈沟通下来不管从设计师水平还是装修实力我跟太太都一致觉得铭品最合我们心意,但是那时候怕他们是假把式,我们留了一手说想先看设计图,再确定最终在不在铭品做。 Area:81㎡Address:龙湖
50858776 2022-07-16 14:2331301 53
-
156㎡轻奢美式,半山森林公园脚下的悠然生活
楼盘:田园牧歌麓云苑面积:156㎡项目类型:全案风格:美式轻奢造价:整装造价54万,硬装32万,软装22万装修公司:圣都装饰 我家位于环境优美的半山森林公园脚下,2019年最幸运的事情就是抽到了这套房子。2003年的时候来到杭州认识了我憨态可掬的老公,买下了一套小刚需,转眼间儿子女儿已经长大,原本的小房间对他们来说也变的比较迷你了,于是我们置换了这套大一点的房子,把在乡下的父母也接了过来。目前居
42643950 2020-01-15 17:2367293 60
-
【秀家大赛】多预留的0.5㎡简直撩到心坎儿里
如果说家是我们放松身心的灵魂去处,那么设计就为这个空间提供了无尽的想象,设计师就是让理想生活落地为现实的魔术师。 我是一名环境艺术设计师,都说设计师才是最懂生活的人,那么作为同为设计师的我,是否会碰撞出不一样的理念呢?最大程度满足居住需求且极具审美的艺术天堂? 今天和大家一起走进我的小天地领略一番~ 给我家设计的是一位小姐姐,一位极具艺术气息的优雅girl,我个人喜欢舒适简单的生活,同时对品
40533176 2020-05-08 10:4843115 59
-
一家三口静诉美好时光120方pickpick
先来solo一段设计师的发言“作为设计师,在设计的过程中需要无数次的去想象、感悟这个空间里的生活,而家的作用就是缓解外在的压力与喧闹,让家成为身心轻松的栖息之地;设计师更是那个应该懂得生活的人,用自己的设计传递更好的生活方式。”感谢咱们家的设计师运用了他的理念来让我们的生活更加贴近梦想!!!小区名:定山西苑户型:三居室面积:120方风格:简约轻奢装修投入总投入:40W我们是通过朋友家介绍的推荐找的
32809992 2020-05-20 16:4935238 55
-
嘿~我的衣帽间满足啦
2019年味正浓,刚开完年会,也给自己的家留一个印迹,我是一个懒人,懒人有懒人的福气,看到小区群里那么多闹心的装修,我很庆幸我遇到的团队及设计师靠谱(亲戚推荐的公司)网络上看到好多杨总监的作品。真的是工地上没操心让我毕业了~整体效果也是比较满意。#我的房屋情况#装修风格:现代轻奢小区:东方星城户型面积:90方(三室两厅)装修费用:18万(全包装修)设计施工:铭品装饰+杨环信设计费:10000材料费
49032991 2020-01-14 17:2549650 58
标签简介
大家都在讨论"轻奢风格"赶紧来看看吧~



