-
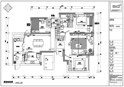
来自建筑设计mm的韩式甜美与轻奢都市风毕业啦
【写在前面】 对于也是学建筑设计的我来说,还是喜欢精致的装修,没交付的时候和我妈妈去逛商场,一眼看中的床和斗柜的款式,当时我俩都特别喜欢,就把门头品牌和款式都拍了个照。 做为杭州本土人,对19楼还是挺熟悉的,逛的特别眼熟,就留意了下,朴森竟然在19楼有好多作品,都一一细看了些。 不过那时候其实也不急,也没定下来,有朋友在装修公司的,想不好是找朋友公司还是软装公司,后面去朋友的公司看了下展厅,好像
46203145 2020-07-17 15:5523204 57
-
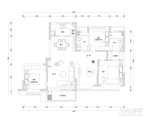
新人秀家,宁波三江观邸毕业照-
装修其实本不复杂,找到对的人做对的事才行。 三江观邸面积:127㎡风格:现代轻奢方式:全包户型:四室两厅一厨两卫装修设计公司:楚邦上易装饰 客厅很大,几何元素很多,黑色的沙发很耐脏我也是和家里人纠结了好久才选的,效果还不错,还有小橙椅撞色是时髦的。整体是轻奢风格的吧~反正都是自己选的餐厅也很大,因为我们家就很大嗨,做了一个餐边柜,厨房做的透明移门能让那边窗户的光打进来而且比较通气呀。餐边柜后面的装
50244824 2020-09-28 16:4633351 56
-
【秀家大赛】法式轻奢,浪漫演绎300㎡品质生活!
说起浪漫,恐怕第一个联想词就是法式。塞纳河畔的左岸咖啡,普罗旺斯的薰衣草,埃菲尔铁塔的迷人风采,浪漫似乎就是法国与生俱来的标志。 我先生是比较浪漫的人,比较有生活情调,经过多方挑选新家选择了视野开阔,风景独好的位置打造属于我们的一片天地,我先生几乎都是全听我的建议,我呢对生活有着高品质的追求。因此,设计师特意将浪漫多情的法式搭配上精致的轻奢理念,成就了这个优雅格调的美好空间。 项目信息 项目坐标
49877451 2020-05-08 14:3049151 56
-
140㎡打造三代同堂,中西厨、储藏室应有尽有
这套房子是拆迁分的,父母不是没有地方住,但年纪大了身体不好,最好身边能有人照顾,我和老婆商量了一下决定和老人一起住,结婚10年没有和父母住在一套房子里,老婆也很理解大度地同意了,装修的时候就按照三代同堂的生活来设计,尽量满足每个人的习惯和需求呗。 坐标丨勾庄佳苑户型丨4室2厅2厨2卫面积丨140㎡常住人口 | 5人风格丨现代轻奢硬装费用丨30万装修单位 | 恒彩装饰 这套房子原来的户型基本比较合
46812588 2021-11-25 16:3129182 48
-
撞色小混搭,满足90后对舒适生活的幻想
潜水已久,经常在19楼看大家的美窝,今天终于也能轮到自己发一套啦~这套房子是妈妈买给我当婚房用的,虽然我是女孩子,但是也要有排面~~~当初选在复兴南苑这边也是看到周边配套比较完善,小区比较老但是学区过关,得房率也高,156方的房子4房2厅2卫2阳台的配置非常够用啦~~房子到手之后马上开始安排了装修公司来装修。对比了几家之后选了南鸿装饰,主要看中这家的隐蔽工程质量比较好,接触下来感觉设计师人nice
49680528 2020-05-19 14:4840811 55
-
【2022年日立中央空调杯】129㎡现代轻奢风,迎接极简优雅生活
杭州的毛坯房越来越少,精装盘是越来越多,当时买的时候,果断选择精装房,三室一厅的,现在么,软装和定制都搞定,可以空空后入住啦~虽然装修跨过了硬装这个大槛,直接进入相对比较简单的软装,但是如何搭配好原有的硬装倒也是个难题。基于对自己设计天赋的自信,前期也尝试过自己进行软装,但一番摸索后还是难理清头绪,所以还是想将这专业的事交给专业的人做。有个认识的好友是从事这方面的工作,于是就决定和她联手打造我的浪
51237255 2022-07-21 15:1027008 53
-
沉淀在岁月里的温暖,140㎡香槟金轻奢居所
- 造型无需繁复 简单自带高级 - 设计方案DESIGN PLAN 地址 |龙湖春江天玺 面积 | 140㎡ 户型 |4室2厅1厨2卫 风格 | 轻奢 常住 | 一家三口 装修公司|九鼎装饰 我们夫妻俩对空间色彩非常敏感,追求最近流行的低调奢华风格。汤设计师利用原户型采光好、南北通透的优势,以淡香槟金为基调,配合大气耐看的装饰,凸显窗明几净、流光溢彩的视觉效果,展露出历经岁月沉淀后的华丽、精
34197777 2021-07-07 13:4130322 51
-
139方蓝银色的家,大家九都会轻奢风
“家的意义就是忙碌工作之后最憧憬的那个角落。” 装修的所有事项家里全权由我负责,父母跟老婆几乎没有参与,这反而能让我最大限度化发挥我的创造性,我也很感谢他们的支持,或许会有一部分业主认为,这是一个家庭的事应该是一家人共同参与的;在我看来,装修本身就是一件难事,参与的人越多反而会变得更麻烦,专业的事就应该交给专业的人来做,作为业主只要提出自己的需求就可以了,这也是我自己家装修深切体会到的。 因为自
17803740 2020-06-11 14:1132541 51
-
【秀家大赛】人间至味是清欢,轻盈+精致的法式梦幻
每个人都渴望有一个专属的空间,来承载自己有趣的灵魂。我们对“新”家要求有着清晰的轮廓不仅要满足各类功能需求,也要融入艺术氛围,把生活过成自己想要的样子,让宅家生活充满多姿多彩。 历时一年,终于毕业啦。2018.7初次沟通/ 2019.3收房/ 2019.9完工,入住几个月了,想记录一下下还记得,第一次设计师小姐姐让我列业主需求时,,我写的是“希望家里不要有太多烟火气息”。某天和设计师沟通方案的时候
32642536 2020-03-24 15:4739508 44
-
装修小白新房选了全包装修后……
安冉原本的计划是选择半包,价格不算贵,能自己diy的地方还挺多。 然而现实是残酷的,两口子既不认识靠谱的装修队,职业缘故又抽不出太多时间,加上家里没有其他人合适帮忙盯现场,只能抱憾选了全包。选择全包装修公司也是个曲折的过程,在网上查了可以在杭州本地十大家中公司,和设计师多次交流、亲身跑完展厅、工地后的基础上,最终在朋友推荐下,也是因为信任选择了现在的这家装修公司,好在新家装修顺利毕业!没辜负这么
32798812 2021-04-29 16:2118119 24
-
【2021秀家大赛】117方美式+轻奢风,深的我的喜爱!!
我们常说的好的生活状态,便是知道自己想要什么,又满足于什么,不嗜繁杂,保持本真。归家,回归心灵的宁静,美式风格便是这样,追求自在、休闲、本真!要让家体现一个生活随意的感觉,我认为最好的装饰就是让自己感觉到幸福,回到家以后有一种温馨的感觉。本人比较喜欢美式,因为它的贵气与怀旧,没有太多的矫揉造作,居家的方方面面,不经意中营造了一种休闲式的浪漫,我平常比较看重细节这块,对待生活一丝不苟的天蝎座女人,对
45342986 2021-03-06 15:2948118 50
-
2020打工人的家~我的温馨小家
最近“打工人"的梗挺火的,感觉就是我每天的真实写照嘛,每天”自我鼓励“,拖着疲惫不堪的身体奔赴公司,开启”美好“的一天~每天就盼着下班可以回家好好休息休息,可是一直住的出租房,也没啥归属感...... 15年因为工作变动,和老公来到了杭州,这几年前前后后换了不少出租房,现在想想都心累.....但是呢,今年我终于在杭州拥有了自己幸福的小家~ 19楼作为杭州本土的老牌网站,深入人心,于是就在家居板块浏
43140117 2020-10-23 15:5823414 39
-
【约克水空调杯秀家大赛】酷尚改造家,让幸福蔓延~190㎡现代轻奢
引用装修公司写我们家的宣传贴的标题简单讲一下我家的情况:父母之前居住的老房子,给我们翻新二次装修做婚房,老房子采光方面差想要设计上弥补,空间利用率也是一个问题。设计师参考了我们的想法和意见,给我们看了好多案例图片作为参考。 小区:六和源面积:190㎡装修公司:城建装饰 起初选择装修公司是在某个平台报名,特意说了要杭州本土的装修公司,因为是要老房翻新在我们的观念里还是要找杭城知名的,也是说会担心跑路
45371492 2020-03-18 12:4029762 45
-
【2021秀家大赛】190㎡我的意式轻奢风小屋
因为平时做生意店里比较忙,所以想找一个能掌控大局的设计师!在这期间接触过很多公司很多设计师!最后选择了铭品装饰的李设计师!在后边的设计落地上设计师非常的辛苦,因为每样材料都是需要他给我们做知道,做选择,跟性价比的落地!在半年的装修之旅中深感不易,装一套好房子真的需要用心投入以及跟设计师合理,目前的效果我跟老公都非常满意,和李设计师也变为无话不谈的好朋友!好的设计师同时也需要好的施工同事落地,也感谢
50637166 2021-03-04 14:5736364 37
-
【2022日立中央空调杯】骑马看世界|180㎡轻奢大平层
@装修美少女 我是一位妻子,同样也是一位妈妈,更是别人家的儿媳妇。 从孩子出生后,家成了我一天当中呆的最多的时间地方,从清晨的的第一缕阳光洒进屋里开始,我就要忙碌在家里的各个地方。 地址名称:临江花园户型面积:180㎡装修风格:轻奢装修公司:恒彩装饰装修方式:全包装修费用:精装32w,软装电器40w设计老师:吴丽娜项目管家:喻小兵 这是关于我们一家五口的故事~ 故事中我、老公、孩子以及孩子的爷爷奶
46882106 2022-03-03 17:3120270 33
-
【2022日立中央空调杯】129㎡现代轻奢,四房改三房、吧台做隔断
人间朝暮,叶落惊秋。也只有到了这个时节,人们才会有缓和下来的心境,于是,匆忙的生活启动了休止符。趁现在,于家中偷得半日闲,可以家长里短,也可以谈笑风生,享受独属于秋天的那份舒阔与闲适。今天给大家带来的作品以暖色系为底,又有富有情调感的灯光氛围加持,逐步呈现出如秋日暖阳般舒适、温馨的品质家居。 坐标丨城西宝龙面积丨129平方米风格丨现代轻奢设计师丨圣都家装 余彩云屋主是一对恩爱夫妻,房屋主要作为一家
51081385 2022-09-19 16:04436036 16
-
122平现代轻奢风,也是抵达幸福的地方
在这个家,我们想看到了美是最真实的样子。如同艺术家对于色彩的理解,从感官印象到思维解构,最后到艺术呈现,色彩所承载的不仅是瞬时的情感表达,更是一种积极向上、探寻美的生活方式。原户型中一成不变的泛黄陈旧感,由爽净简约的白色所替代。在轻盈的底色上,软饰加载典雅蓝和暖意橙,营造极具视觉冲击力的品质感。长直型空间阔然敞开,开合出高朗尊贵的厅室风态。面积:122平方风格:现代轻奢设计加施工:亚加装饰花费:5
32827467 2021-08-13 14:4129812 33
-
140㎡一步一换景,这样的家住十辈子也不腻!
装修是一件公认的复杂的事情。装修之前,装修过的朋友们就经常跟我抱怨装修的苦,说你装修一次就懂了。现在我们家也装修完了,也已经入住一段时间,我们一家人都很满意,很开心能入住到自己的新家。整个的装修过程,也没有像朋友们所说的那样,当然我们也很上心,但是是一个非常愉快的装修之旅。140平的房子,在阳光郡,不知道是缘分还是冥冥之中的注定,一次机缘巧合,遇到了我们的设计师,来自圣都。之前我们也是看过几家公司
51093590 2021-10-28 16:3420462 32
-
【2021顾家家居杯】140㎡四室大高层,远离喧嚣的心灵居所
设计方案DESIGN PLAN 地址|永兴首府 面积 | 140㎡ 户型 | 4室2厅1厨2卫 风格 | 现代轻奢 常住 | 一家四口 设计 | 李丹 装修公司 | 九鼎装饰 每个在快节奏中生活的人,都会向往一个温馨治愈的家。我们因为本身从事设计行业,对生活品质有较高要求,追求简单而不失格调的设计,我们在装修前也比较谨慎,对比了多家公司的方案,最终被本案设计师专业新颖的方案吸引并共同完成
34311818 2021-07-28 14:5420607 32
-
【2022日立中央空调杯】国樾湾118㎡ | 轻奢法式惊艳上线!
很多人认为,买了精装房就能拎包入住了,其实不然,千篇一律的精装压根没法满足各自的需求,装修看了一个多月,终于确定下来了。今天我就写一下我家装修的心路历程:1.自己要有定位,喜欢什么装修风格,预算多少,装修质量决定要找什么样的公司,我家预算有限,但对细节要求和装修效果比较高。之前找过一家,感觉设计师就是卖货的,吹得天花乱坠,专业能力还一般,后面加价坑你没商量,后面是19楼小姐妹推荐,对比了两家,最
49947164 2022-04-28 15:248331 11
标签简介
大家都在讨论"轻奢风格"赶紧来看看吧~



