-
90后小夫妻婚房,沁蓝+米咖 配色清新,处处小资情调
家的意义不仅在于遮风挡雨,还在于提升生活品质感。本案作为婚房,更具有特别的意义,我们期望通过设计,将屋主的日常喜好及生活习惯融入其中,做出适合他们方案,为他们的新婚生活增加色彩。 【案例详情】项目地址| Address:绿城蓝庭品蓝轩装修公司| Co :铭品装饰设计风格| Style:美式轻奢户型面积| Size:150㎡玄关|入户是玄关短廊,定制了整面储物柜作为出入收纳。 客厅livin
铭品DESIGN 2020-12-14 11:2412720 18
-
【2022日立中央空调杯】181方轻奢质感好家!粉色的女儿房很有爱
家里的房子是四居室的,分别是主卧、次卧、女儿房、书房。 父母不过来住,次卧基本是空着的;两个宝贝女儿呢,共用一个房间。现在女儿们都长大了,再挤在一个房间里多少有点不方便,少了很多私人空间,大女儿也偶尔和我抱怨过这件事;其实孩子们分开住这件事,我很早已经考虑到了,加上最近看了很多装修的案例,我也有把家里翻新一遍的想法,调整一下家里的户型布局,相信生活也会更方便些。这次装修找的是南鸿装饰,设计师的户型
51338751 2022-04-06 16:2019447 17
-
这样超高级质感的轻奢装修很贵?其实你也装的起
本案委托人一家4口居住,原户型客餐厅配比不太合理,经过调整,客餐厅调整为一个厅,原北阳台调整为餐厅使整个空间连贯通透。餐厅餐桌采用岩板定制区别于传统的成品餐桌,可同时兼备休闲吧台功能。案例信息案例地址:现代轻奢案例风格:119㎡装修方式:半包装修价格:11万 原始户型图 户型图案例赏析客厅 常见的轻奢风格多以白色、玫瑰金、胡桃木色为主,但本案的客厅装饰中,选用了深邃澄澈的蓝色吊顶,像是一汪清泉悬挂
铭品DESIGN 2021-04-07 15:406659 16
-
125平三居室,复古绿背景墙,黑白经典电视柜,大爱
今天分享的是一套建筑面积125平米的现代简约风三居室案例,设计师以复古的绿色搭配大理石、黄铜元素,来营造出一种文艺、轻奢的格调感。很喜欢这套案例当中的主卧室的床头背景墙,迷雾森林加上壁灯,让人感觉非常好看。 ▲ 平面布置图 ▲ 入户门对着墙面,设计师在这做了端景台加鞋柜的组合式设计,白色的柜子搭配黑色的搁架,再加上多彩的绿植图画,让人感觉很有格调。 ▲ 位于入户门一侧的是客厅空间,客厅的电视背景墙
50153787 2021-03-25 10:306686 15
-
【2021秀家大赛】120㎡三世同堂——四叶草户型装修改造计划!
历时半年,夏天找好装修公司、定下方案,年末终于住上新房子。自己家有五口人,所以当初在看户型的时候就选择了四叶草户型(卧室分布在公共空间的四周,相互之间干扰低,私密性强,适合多代人同住)。准备三代同住的小伙伴,建议选四叶草户型,还可以参考这套装修哦~ 设计公司|良工装饰项目面积|120㎡户型|四室两厅项目风格|现代轻奢装修总费用|55万 客厅 不喜欢单调枯燥的大白墙,于是在设计师的建议下,采用大面积
28301127 2021-03-17 17:2237666 15
-
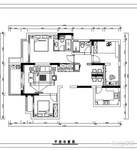
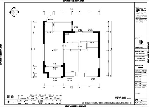
89㎡精装轻奢三居,原木+留白更简约温暖~
因为是业主购买的第一套刚需房,所以在装修方面就比较用心,想要住进理想的家居氛围。对新家的期待从收房之际就开始有了,装修之前浏览与各大装修平台和app中,寻找靠谱又能够符合我们预算的公司。说真的..看过那么多的公司更难以选择,后来到朋友家看到的设计风格我很满意,打听才知道是这家公司负责的~户型图 原始结构图 改造后平面布局图 目前是一个人居住,所以空间设计上是怎么舒服怎么来的...等以后结婚了另一半
铭品DESIGN 2021-04-14 13:494434 4
-
187平美式轻奢风,在灰蓝的陪衬下洗褪浮华与嘈杂
这套案例之中,柔和色调的冰川灰色作为墙面的背景,没有那么冷峻的感觉,反而是奠定了一种舒适的氛围。棕色系的地毯搭配着黑色的三人位组合沙发,角落里糖果色的长颈鹿,十足的温馨暖意。 灰蓝色的窗帘布艺也在这种格调中显露出了柔软的一面。蜂蜜色金属搭配,增添了生活气息,却不染俗气。 以蓝色与白色灰色排列组合,克制又规律的展现出细致的精准美感。蓝色的世界里深浅不一,层叠不断的颜色低低叙述着自己的表达,和谐的在纬
亚加装饰始于1994 2021-03-22 15:059402 14
-
【2022日立中央空调杯】160方法式轻奢,一场顶级浪漫盛宴
设计方案 风格 - 现代地址 - 杭州·良渚面积 - 280㎡主案 - 万雷军设计团队 - 刘琪 崔丽瑶装修公司-九鼎装饰 在家的设计中,以设计语汇实现生活方式的具象化,让简约自然的空间形态呈现出谦逊、朴素的气质。从功能需求、到情感满足,构筑一个有温度的家,让每一个成员得以自由生活,又能彼此紧密联系,让居住环境回归生活的本真。 实景呈现 生活不是浓妆艳抹的刻意渲染,而是长年累月经营后充满人居温度
34312055 2022-07-19 15:3813126 13
-
现代风格|我们的婚房,理想中的样子,精致又实用~
地址:江南学府风格:现代面积:144㎡类型:毛坯新房空间配置:四室两厅两卫设计理念:整体空间装修以现代轻奢的风格基调,摆上现代简约的舒适家具,没有什么繁杂的布置设计,却也为主人营造出一个温情优雅、安静而成熟知性的生活氛围。第一次见到她,给我的感觉是年轻、活力、爱放声大笑的女孩。特别是她讲述对于这套房子的想象和期待,无不体现着她对于生活的热爱,对于未来的美好憧憬,对于“家”的向往……户型图 原始结构
铭品DESIGN 2021-09-08 11:0912276 9
-
139㎡现代轻奢四居,打造三代同堂的生活乐园
户型解析项目地址 / Address:融信.杭州公馆设计施工 / Co :铭品装饰风格 | Style:现代轻奢项目面积 | Area:139㎡业主信息:本期项目案例用于一家三代同堂居住,男业主是干净利落的职业操盘手江先生。设计亮点:① 客厅采用无主灯设计,电视背景以极具质感的白色大理石为主,配合深色木饰面形成对比,更显大气。 ② 沙发组合选用灰色调的单椅,大理石材质的茶几组合、奇异的边几造型,提
铭品DESIGN 2021-05-21 15:106545 2
-
【2022日立中央空调杯】衣帽间、景观阳台、超大落地窗一样都没落
生活的小确幸,便是与家人一起,镌刻在房屋里的印记。对待这个空间,我们不愿将就。当所有的幻想遇到完美的设计,才愈加体会到理想生活赋予三餐四季的舒适与美好。本案的女主人偏好美式的自由风格,又秉持着优雅的生活态度,因此,设计师定下美式轻奢的家居风格,并对空间的一切细节都极尽苛求,于是便形成了这件大气、典雅的作品。坐标丨绿城玫瑰园户型丨4室2厅1厨2卫面积丨206平风格丨美式轻奢施工单位 | 圣都家装设计
51381785 2022-06-06 18:05473464 10
-
200㎡半包四居,打造浪漫且优雅的法式轻奢风
简单介绍项目地址 / Address:锦玉园设计施工 / Co :铭品装饰风格 | Style:轻奢项目面积 | Area:200㎡户型图放一下 原始结构图平面设计图 设计亮点:遵循业主的习惯重新配置理想的格局,满足日常实用性之余,客厅也能保有舒适敞阔的空间尺度,动静两线巧妙区分,功能互不干扰,行进间可感受由法式到轻奢的层次变化。玄关 原本房子并没有独立的玄关,进门就是餐客厅区域,空间也比较宽敞,
11876359 2021-09-17 11:1612323 8
-
酷尚改造家,让爱继续,让幸福蔓延~190㎡现代轻奢
本案是靠着钱塘江边的一套大平层,是父母为儿子准备婚房进行的二次装修。延续之前的现代风格,加上轻奢元素,打造时下年轻人喜欢的家居空间。更是一份父母对孩子的祝福。 案例信息项目地点:六和源项目类型:住宅项目面积:190㎡项目风格:现代轻奢 改造前 效果图 房屋本身格局较为方正,只是原来的动线稍复杂,浪费了一些空间。于是,设计师将室内动线调整拉直,让走向更为顺畅,并且大大提高了空间利用率。
城建锦绣设计 2021-03-18 16:302831 3
-
古典轻奢风独栋别墅装修设计、空间与功能的和谐构成!
户型解析设计公司:铭品装饰 案例:东郡国际橄榄墅 居住成员:大人x2、小孩x1 房屋面积:400平方米 设计风格:古典轻奢 房屋类型:标准格局 空间格局:玄关、客厅、餐厅、书房、主卧房、女儿房 主要建材:油漆、木地板、木作、玻璃、壁布、铁件、系统柜、石材、大理石 ①、本案为400㎡别墅,以新古典优雅的格调演绎设计,整体营造出温暖舒适并且充满诗意的家居空间。 ②、吸收业主对新居的质感要求后,考虑到屋
铭品DESIGN 2021-03-11 14:583876 4
标签简介
大家都在讨论"轻奢风格"赶紧来看看吧~



