-
设计美分享
〈案例赏析〉以极简的设计语言和表现形式,秉持“大宅至简”的豪宅设计理念,将多余的剔除,为空间赋予更多的精神内涵。结合主人的爱好及生活习惯,打造极简的诗意栖居。
城建锦绣设计 2021-09-09 12:222656 2
-
现代风格|我们的婚房,理想中的样子,精致又实用~
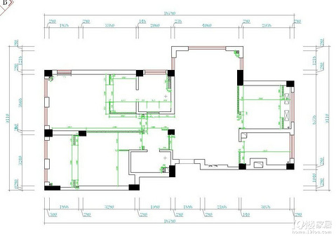
地址:江南学府风格:现代面积:144㎡类型:毛坯新房空间配置:四室两厅两卫设计理念:整体空间装修以现代轻奢的风格基调,摆上现代简约的舒适家具,没有什么繁杂的布置设计,却也为主人营造出一个温情优雅、安静而成熟知性的生活氛围。第一次见到她,给我的感觉是年轻、活力、爱放声大笑的女孩。特别是她讲述对于这套房子的想象和期待,无不体现着她对于生活的热爱,对于未来的美好憧憬,对于“家”的向往……户型图 原始结构
铭品DESIGN 2021-09-08 11:0912202 9
-
设计美分享
城建锦绣设计 2021-04-09 15:023303 2
-
我选择装修公司就一个标准
我这个人认死理,你装修房子,设计师画的效果图再怎么好看?格调如何前沿?如果施工的师傅不负责任,说什么都是胡扯。 简单说:跟卖海信中央空调道理一样,如果安装做不好,海信产品再好又有什么用? 为什么,总有太多人就是不明白这些最简单的道理。装修公司,行业本身,是没有什么技术含量的,其最终是靠施工的师傅们赚钱的,没有他们,装修公司三天就得倒闭。 但真正市面上,真正尊重装修工人的不多,为什么?很多人认为:
我还是天问 2025-12-23 15:168154 2
-
安装中央空调,你应该多想想,产品过了质保谁来负责?
中央空调强调精工安装,是因为什么? 不客气的说:你普通安装,是不是就没保证? 不会,如果就是简单说:要保证中央空调制冷制热,一个前提:氟利昂不泄露就可以,这是一个非常简单的要求。氟利昂不泄露,只要安装的时候,做了保压测试,并且,符合24小时的时间规定,就能保证制冷制热。 如果按照这个原则:是不是代表精工安装没有意义呢? 显然,这个观点是错误的。 我们说:中央空调无论你怎么装?它也不是说,一两天就出
我还是天问 2025-12-13 11:237788 5
-
金秋装修季,将绝美的秋色搬进新家!
风吹一片叶,万物已惊秋虽夏意未尽,但秋天已来 在经历了缤纷彩色的春天绿意盎然的夏天终于要迎来了四季中最灿烂的季节——秋天 让我们在绝美的秋色中寻找新家装修的灵感吧 {甜蜜橙色} 秋天是丰收的季节,柿子、橘子、南瓜都在这个季节成熟,橙色是由红色与黄色调配而成的二次色,吸收了两者活泼火热的优点,是亮丽跳跃的热情色彩。 橙色能给人带来温暖的感觉,阳光活力而又有朝气。运用在家居设计中,橙色能提升空间的温度
城建锦绣设计 2023-09-11 16:544454 5
-
【分享】当下最流行的三大软装风格,快来轻松get它
随着家装风格的发展演变,可供选择的风格越来越多,而选择越多,决定越难。想要风格不出错,下面三大流行装修风格值得参考。现代风现代风格是比较流行的一种风格,追求时尚与潮流,注重功能和空间组织,发挥结构本身的形式美,造型简洁,反对多余装饰,崇尚合理的构成工艺;尊重材料的特性,讲究材料自身的质地和色彩的配置效果。因此现代风多采用简洁明了的线条,依托造型多样的几何形状进行结构搭配。 关键字:有质感的材料选择
麦丰装饰2007 2023-04-12 10:065235 2
-
手把手教你打造「氛围感」家居,软装亮点不可少!
在如今的装修中,空间氛围感越来越受到大家的重视,尤其对于年轻人来说,在高压的工作环境下,更希望有一个放松、随性的住所,感受生活的美好。 (一)营造居室氛围软装设计在室内环境中具有较强的视觉感知度,因此对于渲染空间环境的气氛具有巨大的作用。不同的软装设计可以造就不同的室内环境氛围,从而给人留下不同的印象。 (二)组建居室色彩在家居环境中,软装饰品占据的面积比较大。在很多空间里面,家具占的面积超过了4
麦丰装饰2007 2023-03-26 10:472845 5
-
小白鲸加湿器怎么样
注意啦!各位朋友们,我最近又又又发现一款宝贝,这款宝贝有如白玉般的高颜值外表,出雾的形状就像鲸鱼吐水一般,超级可爱又好看。这款宝贝呢,就是舒乐氏小白鲸加湿器,有看上的朋友们,可以去旗舰店找客服报“瓜子”,还能领大额优惠。下面,我给大家先看下这款宝贝的参数:功能:除菌、水过滤、香薰材质:内部离子膜阻垢材质、外部磨砂材质形状:经典柱状电源方式:交流电适用面积:31㎡--40㎡操作方式:触摸式出雾口数量
51420018 2022-08-21 18:223871 12
-
设计美分享
绿色·清新舒适的现代简约风设计效果。
城建锦绣设计 2021-12-22 10:361720 5
-
108㎡年轻人更偏向的北欧风格,今天就给大家整一组
户型解析硬装尽量简单简洁,去除掉所有的繁杂,留下最原始最基础的东西,以“少即是多”的原则来做我们的硬装;比较重视软装和色彩的搭配。 项目地址|Address:江南国际城设计施工|Co:铭品装饰风格|Style:北欧小清新项目面积|Area:108㎡ 原始户型图 平面设计图、玄关玄关才是打造空间氛围的第一线!一进门的就是北欧风玄关了,很漂亮让人眼前一亮。进门就是鞋柜,客人一进门就看到的就是鞋柜等玄
铭品DESIGN 2021-12-13 17:136392 12
-
193㎡美式风,全屋选灰色基调,融入橙色点亮空间,温馨与精致
户型解析业主信息: 一家四口,在深入沟通后,我们给业主的定位是“美式轻奢”。 案例:193㎡美式风费用:20万房屋信息:春天华府空间格局:四室两厅一厨两卫客厅低调内敛的高级灰作为客厅的主色调,灰色的石膏线条搭配背景山水画,更显大气和谐。 客厅选择颜值耐打的沙发,可以除去繁琐的物品装饰,简约的背景墙,轻松构建空间焦点。 电视背景墙选用立体简约的设计,给客厅营造更多的空间;原木打造的电视机柜,让电视机
铭品DESIGN 2021-09-01 11:042084 5
-
110㎡北欧风,空间以灰调做底配上原木系家具,生动而富有情感
户型解析业主信息: 业主是对年轻时尚的夫妇,对设计有一定的要求,喜欢简约干净的环境。 设计理念:整屋地板配上木质家具,墙面不做过多的处理,用干净简单的乳胶漆调色,搭配皮质沙发,整个空间就很层次。软装上面也是花了一点心思,有了一点俏皮的粉色来做点缀,让整个房子更活泼生动。 客厅客厅的设计简约、时尚、大方;灰色光亮质感的窗帘,能够给空间带来静谧的氛围,一盏造型别致由多灯组合的吊顶灯,加上天花灯,更显空
铭品DESIGN 2021-08-31 14:072783 5
-
不规则户型改造秘籍:他家设计诀窍全在这!
地址:沁园雅舍风格:现代面积:134㎡户型:三室两厅两卫装修方式:精装全包本案房子常住人口不多,基本上就是两位退休的老人家居住,偶尔子女也会回来小住一下。是幸福三口之家,初次认识L先生的时候,就觉得屋主是个人很亲和的朋友。因此房子常住的人不多,基本上是在收纳之外建立在审美的角度为主。业主喜欢现代轻奢风格,简单但又要有家的温馨感??所以我们在设计的时候就大量采用了温馨的实木元素,硬装上主打硬包和时下
铭品DESIGN 2021-07-18 15:442541 5
-
实木沙发闲置
低价出实木沙发2件,8-9成新,轻微使用痕迹,原本装修给老人住,现自住置换。沙发实木框架,胡桃木质感很好,结构结实,海绵垫基本无变形,躺下午休超舒服;余杭闲林自提,较重物品售出不退不换!诚信出,不议价!谢谢!沙发尺寸:三人218*86*72cm,单人89*86*72cm。
31040392 2025-09-24 22:467823 1
标签简介
大家都在讨论"家居种草"赶紧来看看吧~



