-
【装修日记】峰景120平 半包 奶油中古 辞职盯装修ing
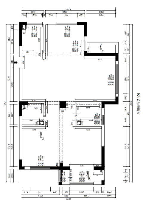
【小区名称】:峰景佳苑【户型面积】:120平(套内94)【装修风格】:奶油中古【装修公司】:逸墅【装修方式】:半包【装修预算】:30w【开工时间】:2025.5.19 标题党了一下,实际是离职后想着刚好要装修,就暂时先不找工作吧,哈哈哈哈哈。房子是村里分的,交房快三年了才装修,所以差不多装修公司看了3年,哈哈哈哈哈~去看第一家时,啥也不懂,被逼定交了1w订金,后续交流以及群里有同家的小伙伴反馈都不
、黎落 2025-06-26 17:3814874 22
-
有没有买过英士利的智能马桶,这牌子是没有售后吗?
英士利智能马桶质量差也就算了,一直漏水无缘无故突然冲水,打售后电话一直推脱不修理,一个多星期了也没人来修,问客服就是师傅忙,没空来修,台州牌子真是倒台州人面子[ej=1F44E][ej=1F44E][ej=1F44E][ej=1F44E][ej=1F44E][ej=1F44E]
51318366 2025-11-03 12:125878 6
-
【装修日记】美宸园116平半包奶油风装修日记
【小区名称】:美宸园【户型面积】:116【装修风格】:奶油原木风【装修公司】:设计师自带团队【装修方式】:半包
叫我橙子呀 2022-07-13 09:0574747 89
-
橱柜避坑点,请一定要留足燃气管道空间-我家灶具翻车记
装修前看过很多楼主都有写厨房装修因燃气管道翻车案例,我在硬装的时候就非常重视这方面的问题,和燃气师傅也多次沟通,确保无误。本以为不会有问题了吧,没想到安装完橱柜才发现还是一脚踩进坑里了。前天预约燃气开通,师傅一来看了下灶,就说我家的灶具安装有点麻烦的。当时有点闷逼,觉得会出啥问题哈?不都沟通过了,结果灶具安装完,师傅就和我讲灶具的燃气阀基本废了,建议我以后开关灶具都用总开关。 当时想就这
betty303 2023-08-31 21:1117376 16
-
【装修日记】温岭139平+半包+没有风格 预算35万
户型面积】:138.99平【装修风格】:没风格【装修公司】:本地找的不知名装修团队【装修方式】:半包,7万6【装修预算】:预算是35万全部搞下来【开工时间】:2025年7月8日【设 计 师】:我自己包工头问我什么时候开工,我拿出了黄道吉日选了7月8号,虽然那天下大雨,自我安慰风调雨顺哈哈哈。先上户型图 虽然建筑面积有快140平了,但是套内面积只有122左右,我把阳台推拉门卖了(后悔中),准备封阳台
momo大军 2025-07-22 16:4120818 33
-
装修不要找熟人,后续被坑的没办法售后
新房几年后,出现3次漏水,最近第三次发现漏水,整个房间地板下面全是水,之前2次,2个房间,都是整个房间地板被腐蚀,全换了,这次发现早,第三个房间,没坏,真坑。
a787017518a 2025-12-15 10:165251 15
-
【装修日记】江山府136平-半包-现代简约 精装房改装太纠结辣~
【小区名称】:祥生江山府【户型面积】:136平【装修风格】:现代简约【装修公司】:铭品装饰【装修方式】:半包【户型图+设计图+房屋实拍图】 总以为能考虑在前头,事实证明,就房子这块,坑是永远踩不完的。 选房的时候觉着精装房简单弄一下就能入住了,格局看起来又比较直观,但到装修的时候就会发现哪哪都很粗糙,想要改动又是牵一发而动全身,到最后很容易就陷入要全部拆掉重装的境地。出于理性和感性的平衡考虑,最终
皓月无光明正大 2023-08-08 17:0576355 77
-
封窗危险
今天封窗,结果在安装的时候窗户从楼上掉下来,还好楼下没有人,不然后果不堪设想。提醒大家注意在注意,危险危险危险
39726979 2021-10-09 18:163079 0
-
3天去一次工地,我是不是不勤快?
每次都被咬蚊子的满手包,太狠了
右耳花开 2021-06-30 12:055163 10
-
【装修日记】学府水岸+128平+半包+轻中古混搭(狠狠做攻略版)
【小区名称】:学府水岸【户型面积】:128【装修风格】:轻中古混搭【装修方式】:半包【装修公司】:不写了(狗头保命 有需要私问我吧【装修预算】:30万左右【设计师】:小雯老师 2025.5.13开贴,开贴大吉!!! 记录一下自己做过的功课 and 可能遇到的坑,给后面要装修的业主们一点点小参考~ 装修这种时间久且参与人员多的项目,我是觉得很难全程无摩擦无雷点的,只希望后面我能尽量少踩坑吧,一起避坑
小李西西的家 2025-05-13 22:3562027 92
-
论买瓷砖碰到一个不靠谱的业务员能有多心累
黄岩二环西路的马可波罗瓷砖门店的罗乐乐同学在我第一次去门店时接待了我,第二次交定金时她刚好不在,当时我考虑到之前人家接待过也挺辛苦的,刻意提了一下之前有人接待过,没想到给自己挖了个大坑。首先下单的时候就在统计图纸用料的时候少算片数,当场确认的改动也忘记加上,都是被我提醒了才加上去,对方直接一笑而过,考虑到有时候人难免出错我也没吱声。接下来沟通送货时间,把“下星期一”看成“下星期”,没有及时送货也没
阳光下的梧桐ljf9 2024-10-12 18:043367 5
-
椒江有设计自建房建筑图的吗
盖三间立地房五楼半左右有没有做建筑设计图的联系我
47613564 2021-08-23 17:132674 2
-
临平+日式简约+89方+无敌设计(已结帖)
终于开贴了。首先感谢我的超级无敌好邻居推荐19楼和好好住这两个超级无敌的平台,在阅读了无数前辈的血泪史、以及邻居和各路好友的支持下,我的小家顺利开工,并于2021年5月竣工验收。 由于LZ多年在企业做咨询的习惯,先定位一下我装修日记的风格,不记录施工工艺和专业(其他前辈大神贴已经有很多可以参照),把专业的内容留给专业的人,仅从业主角度分享自己的感受和经历,希望能够最高效地帮助和回馈更多的伙伴们,买
50153336 2020-11-27 23:08649273 874
-
新德佳苑+58方+简约原木风
直达电梯(★首页贴)前期设计:最好的设计师就是你自己开工大吉:我家多了个落地窗★装修效果:设计师出身的项目经理就是省心★砸墙拆旧:一眼望的到头的小蜗居再刷宜家:带着娃来寻找灵感★水电放样:干货满满的一篇分享★动线布局:设计中的小心思★厨房家电:国美苏宁五星探店★空调安装:一波三折的风管机遇上好邻居★地漏选购:地漏我选择实体店购买★采购瓷砖:瓷砖的购买和选择★甲醛问题:如何让新家住的放心(上)★燃气
PockeT 2021-05-14 16:29338089 853
-
断断续续总算成型了的家
硬装应该快结束了
成成080906 2023-02-13 20:094720 1
-
要封阳台,椒江路桥有没有门窗商家推荐
有没有靠谱的门窗商家推荐?商家也可以自己留下联系方式谢谢大家了
50340497 2021-09-23 09:343130 8
-
【装修日记】湖畔云邸+101平+半包+25万内挑战法式中古~
只看楼主大图【小区名称】:湖畔云邸【户型面积】:101平(116非标户型)【装修风格】:法式中古【装修公司】:/【装修方式】:项目经理半包【装修预算】:预算是20万,只求25W内落地【开工时间】:2024年11月2日【设 计 师】:周俊浩【项目经理】:孙斌这几天出了最终的效果图,把效果VR发在小区装修群,我的预算邻居们直呼不可能!怎么说呢,装修确实是个无底洞!希望各位正在装修的楼友们秉持初心,握紧
卢饼饼 2024-11-03 10:50198986 377
-
【智汇家】云悦钰府168平方+半包+现代极简风
【小区名称】:云悦钰府【户型面积】:168【装修风格】:现代极简风【装修公司】:孙工装饰【装修方式】:半包前言:2019年初在椒江看房,在错过江南玖号院后,被云悦钰府周边配套深深吸引,成了该小区的业主之一。光阴荏苒,岁月如梭,一转眼2年收房之约已至。于是踏上装修之路:
kkk6666 2021-07-30 20:58642576 727
-
原则性问题装修大忌
请教大家个问题,全包,设计费另加(非小公司)由于设计师设计缺陷致施工图纸全部报废无施工图水电开工到完工马上验收全程无新图纸(水电施工中沟通过几次要图纸都没有)私自用业主家原材料安装后被业主发现(业主开工前问过装修公司如果用业主材料无法保修故而选择装修公司材料)现在还在沟通,这样的装修公司还能合作么。
50442251 2021-04-05 14:154993 13
标签简介
大家都在讨论"装修日记"赶紧来看看吧~



