-
拱墅区谢村金昌苑100方开工(秀家毕业了)
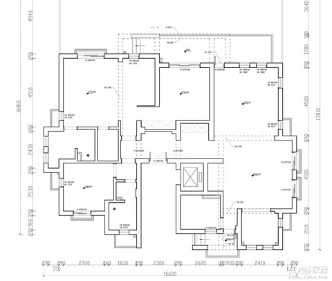
秀家毕业帖距离装修完工正式要告一段落了,因为这边计划11月份搬到新家,目前大致整理了家里的清单如下地板:大自然,瓷砖:诺贝尔,衣柜全屋定制:柏澜厂家定制,窗帘:小区门口,灯具:淘宝,沙发:芝华仕,橱柜:丽居雅图,门:升升,挂画:找人现场绘根据自己喜欢的样式图 先上照,这是小区的北门,目前西边的路还在修,咱家刚好在这条在修的马路边上 接下来上传自家户型图,这个是我在去小区拍的,这样看着真,我家设
50611340 2021-01-18 17:3449967 109
-
【装修日记】天辰誉府163平方半包记录美好生活!
【小区名称】:天辰誉府【户型面积】:163平方【装修方式】:半包【装修风格】:原木奶油风【装修公司】:尚城建工2022.8.8 8:18开工大吉
51481313 2022-08-11 20:2197052 105
-
【智汇·家】新明半岛+116方+半包+现代简约,装修小白的装修之旅
小区名称】:新明半岛【户型面积】:116【装修风格】:现代简约【装修公司】:良匠装饰【装修方式】:半包 房子是17年入手的,买的是二手房,前房东装修过,用来出租的,装修质量可想而知,反正问题一大堆,凑合着住了近4年,过完年下定决心,再怎么困难也要重新弄过。小区施工的工地还不少,就我们这单元就有好几家,实地考察了几家装修公司的工地,一家是某知名品牌大公司,就在我们楼下,从他们砌墙到做水电,一只都在关
50896859 2021-06-24 19:1995725 105
-
120㎡黑白灰控必看!电竞房简直是太绝了~
这是位年轻业主的婚房,我们明显感觉到他们是有想法、有规划且又执行力得一对对未来生活充满信心的年轻夫妻。极简主义不是追寻的目的,亦只是一个工具,用来追求真正想要的生活,删繁就简、大道至简…餐岛一体式的设计让空间尺度感得以延伸,也很好地起到了补充厨房台面的作用。 深灰色的背景墙搭配木质元素,沉稳大气。电视嵌入其中,旁边的展示格可摆放装饰品,丰富空间层次。 L 型布局,操作方便。白色的吊柜与黑色的地柜形
铭品DESIGN 2025-03-06 16:157185 3
-
求靠谱的铝合金踢脚线安装师傅电话,谢谢
能接黄岩城区活的就可以
49390438 2022-09-06 21:361073 0
-
杭州亚运村 115㎡精装大逆袭!90 后女教师的对中古风的极致诠释~
谁能想到亚运村这套为运动员打造的精装房,被 90 后女教师改成了这么有质感的中古风小家!从千篇一律的精装风到专属中古质感,每一处改动都戳中审美点,亚运村的房子也能这么有烟火气~格局大改:把 “运动员户型”改成小夫妻专属舒适区 主卫并入主卧:原本在主卧外侧的主卫,贴合小夫妻居住需求改入室内,私密性拉满,日常使用更便捷书房全能进化:移动房门位置,让书桌深度刚好够用,书房秒变 “收纳 + 暂住 + 办公
铭品DESIGN 2025-11-06 14:2917192 6
-
西溪佳苑二手房翻新有人做吗?
有能做的可以联系我
51324101 2022-04-13 15:312853 13
-
请问大家我们台州市那一家装修公司比较靠谱
我们台州市那一家装修公司比较靠谱,诚信,做工精细的房屋装修公司,烦大家装修过的推荐一下,谢谢
椒江先生 2021-05-06 08:572907 7
-
戈雅公寓★190方大平层带花园★开荒记
电梯3.31拆旧篇4.21PC放样4.26包阳台篇5.11水电材料进场5.21水电预验收6.8空调地暖篇6.24泥工进场7.17木工进场【小区名称】:戈雅公寓【户型面积】:190方【装修风格】:简约风(吧……)【设 计 师 】:阿德(麦丰)【装修公司】:麦丰装饰【装修方式】:全包【开工时间】:2021年3月30日9点28分麦丰帮忙挑了今天黄道吉日开工,那我就顺便今天开帖吧。当初一眼看中这套房子,主
120475 2021-03-30 16:2847483 107
-
装修血泪史:旧房拆除那些坑,我替你们踩了
家人们,作为一个刚经历完旧房大改造的 “装修过来人”,真的有一肚子话想和大家唠唠。这次装修,那可真是像西天取经一样,历经九九八十一难,尤其是旧房拆除这一步,我踩过的那些坑,说出来都是一把辛酸泪,今天必须给大家好好讲讲,希望能帮你们避避雷! 咱就先说这拆除计划,这可是重中之重啊!我一开始就大意了,觉得不就是拆嘛,能有啥难的。结果呢,开工之后那叫一个手忙脚乱。大家一定要记住,在拆除工作开
拆拆搬2025 2025-03-31 09:5843399 27
-
西湖区55方老破小装修
拖延症终于开贴啦,婚房装修的时候开了一个贴烂尾了,所以现在想要弥补下这个遗憾。 说说为啥又要装修呢,一个是孩子快要上学了,总感觉西湖区的学区好一点,另一个是婚房在丁桥,上班在城西,时间都浪费在路上了。6年前刚入住的时候小区附近公交线路很少,坐公交上班单程2个小时,感谢我亲爱的同事们,轮流让我搭车,让我度过最艰难的时光。生了娃以后,买了一辆新能源车,终于可以开车上班了,不过单程也要一个多小
小依呀 2022-08-05 16:1774202 103
-
小家记录全过程:庭院深深160平现代简约
大家好,我来啦~从15年买房之后一直断断续续在19楼家居板块暗中畅游,笔记做了一遍又一遍,装修日记看了一篇又一篇,终于等到我自己开始了家装之路,实在惭愧,前期准备的已经忘得差不多了[/可怜],现在从头开始和大家一起分享装修之中的苦与泪,欢笑与满足,谢谢大家~ 【房屋基本信息】 【小区名称】:庭院深深【户型面积】:160㎡【装修风格】:现代简约【装修公司】:九鼎装饰【装修方式】:半包【装修预算】:3
17310069 2021-03-31 11:1453848 106
-
金色时光 120/130 轻奢/新中式
2020年,疫情阴霾下,我们等了三年的房子终于毛坯交付了。虽然小区一直在维权,但是在经济各方面亚历山大的情况下,装修还是要早早准备起来。 作为人还不在杭州的新杭州人,装修注定是坎坷的。老公年前辞去了原来城市的工作,来了杭州,有了双休,正好有时间可以筹备装修。而我人还在北京,装修只能云装修+遥控指挥,感谢老公的配合和理解,希望房子装好后,我们俩能在共同装修这种即使存在重大分歧还能最终决策归一的历程
辛德瑞拉125 2020-07-01 16:48135414 106
-
有没有装修群啊
装修小白需要学习点经验。有没有装修经验群拉我进去学习的呀
51754462 2023-06-23 14:294399 8
-
【装修日记】温岭天骄嘉苑89平,现代简约。
【小区名称】:温岭天骄嘉苑【户型面积】:89平 【装修风格】:现代简约【装修公司】:GF【装修方式】:半包选房经历还是不赘述了,都是为了生活嘛。没有好不好,合适自己的才是最好的。有兴趣的话,可以看下我那另一半之前发的购房经历吧。https://taizhou.19lou.com/forum-2012-thread-52041592193535645-1-1.html在交房之后也考虑过这套房子应该如
JKinGo 2022-06-17 16:1858162 99
-
【2020日记大赛】西溪璞园 现代 125方终于有了一个家
户型面积:125方三室两厅 装修风格:现代简约 装修方式:全包 装修预算:28万 开工时间:2018年1月16号 装修公司:杭州铭鼎装饰 设计师:张恩瑞 项目经理:张电亮 监理工程师:搭窝监理 何林峰 进度阶梯: 1、装修前准备(户型图) 2、水电验收 历经许多波折,房子终于在2017年10月底拿到手,因为是第一次装修,找了三家装修公司做比较。分别是:铭鼎、良工、亿阳。自己是装修小白第一次
40572912 2018-08-09 20:55218088 102
-
【装修日记】天辰誉府丨95后第一次装修丨现代极简丨55W装修完结
【小区名称】:天辰誉府【户型面积】:137【装修风格】:现代 简约 轻奢【装修公司】:半包【装修预算】:50-60W【开工时间】:2022.10.6【装修准备】:没有直接找装修公司半包,一是感觉价格有点高,其次担心装修过程中被坑,毕竟又当裁判又到运动员的,找第三方监理又是一笔额外的费用。后来经朋友介绍选了现在的设计师和项目经理,很满意。前期就两人居住,也不想考虑太久远,于是把3室改成了2室。原始户
Mr_Jiang_ 2022-10-08 10:4183417 98
-
【2020日记大赛】现代简约风格装修ing
坐等礼拜六 三竹装饰公司 水电放样,开工大吉
雨后柒彩虹 2020-08-12 09:05123456 98
标签简介
大家都在讨论"装修日记"赶紧来看看吧~



