- 
                                
                                    
                                    
                                    小家记录全过程:庭院深深160平现代简约
大家好,我来啦~从15年买房之后一直断断续续在19楼家居板块暗中畅游,笔记做了一遍又一遍,装修日记看了一篇又一篇,终于等到我自己开始了家装之路,实在惭愧,前期准备的已经忘得差不多了[/可怜],现在从头开始和大家一起分享装修之中的苦与泪,欢笑与满足,谢谢大家~ 【房屋基本信息】 【小区名称】:庭院深深【户型面积】:160㎡【装修风格】:现代简约【装修公司】:九鼎装饰【装修方式】:半包【装修预算】:3
17310069 2021-03-31 11:1453395 106
 - 
                                
                                    
                                    
                                    金色时光 120/130 轻奢/新中式
2020年,疫情阴霾下,我们等了三年的房子终于毛坯交付了。虽然小区一直在维权,但是在经济各方面亚历山大的情况下,装修还是要早早准备起来。 作为人还不在杭州的新杭州人,装修注定是坎坷的。老公年前辞去了原来城市的工作,来了杭州,有了双休,正好有时间可以筹备装修。而我人还在北京,装修只能云装修+遥控指挥,感谢老公的配合和理解,希望房子装好后,我们俩能在共同装修这种即使存在重大分歧还能最终决策归一的历程
辛德瑞拉125 2020-07-01 16:48129832 106
 - 
                                
                                    
                                    
                                    
有没有装修群啊
装修小白需要学习点经验。有没有装修经验群拉我进去学习的呀
51754462 2023-06-23 14:294370 8
 - 
                                
                                    
                                    
                                    【装修日记】温岭天骄嘉苑89平,现代简约。
【小区名称】:温岭天骄嘉苑【户型面积】:89平 【装修风格】:现代简约【装修公司】:GF【装修方式】:半包选房经历还是不赘述了,都是为了生活嘛。没有好不好,合适自己的才是最好的。有兴趣的话,可以看下我那另一半之前发的购房经历吧。https://taizhou.19lou.com/forum-2012-thread-52041592193535645-1-1.html在交房之后也考虑过这套房子应该如
JKinGo 2022-06-17 16:1857872 99
 - 
                                
                                    
                                    
                                    【2020日记大赛】西溪璞园 现代 125方终于有了一个家
户型面积:125方三室两厅 装修风格:现代简约 装修方式:全包 装修预算:28万 开工时间:2018年1月16号 装修公司:杭州铭鼎装饰 设计师:张恩瑞 项目经理:张电亮 监理工程师:搭窝监理 何林峰 进度阶梯: 1、装修前准备(户型图) 2、水电验收 历经许多波折,房子终于在2017年10月底拿到手,因为是第一次装修,找了三家装修公司做比较。分别是:铭鼎、良工、亿阳。自己是装修小白第一次
40572912 2018-08-09 20:55212676 102
 - 
                                
                                    
                                    
                                    【装修日记】天辰誉府丨95后第一次装修丨现代极简丨55W装修完结
【小区名称】:天辰誉府【户型面积】:137【装修风格】:现代 简约 轻奢【装修公司】:半包【装修预算】:50-60W【开工时间】:2022.10.6【装修准备】:没有直接找装修公司半包,一是感觉价格有点高,其次担心装修过程中被坑,毕竟又当裁判又到运动员的,找第三方监理又是一笔额外的费用。后来经朋友介绍选了现在的设计师和项目经理,很满意。前期就两人居住,也不想考虑太久远,于是把3室改成了2室。原始户
Mr_Jiang_ 2022-10-08 10:4181187 98
 - 
                                
                                    
                                    
                                    
【2020日记大赛】现代简约风格装修ing
坐等礼拜六 三竹装饰公司 水电放样,开工大吉
雨后柒彩虹 2020-08-12 09:05117954 98
 - 
                                
                                    
                                    
                                    
【2020日记大赛】装修--记录生命中的一段历程
骑驴去新家 2020-5-17 昨天看到王工发来的录像,原来已经开挖北花园了。开工不到十日,再不记录就会赶不上新家的变化了。昨日去绍兴,朋友问我,沈园来过么?我说我想不起来了,三味书屋来过吗?我说肯定是来过的。坐过乌篷船吗?我说我忘了。去过安昌古镇(名字忘了,刚才问了度娘)吗?我说我去过一个古镇,名字忘了。去了才知道。于是走所有这些地方,到了每个地方,才想起来,原来我都是来过的,但是生命中经历过的
49796882 2020-05-17 13:55118352 105
 - 
                                
                                    
                                    
                                    完工实景
精工细作终成形
48802977 2022-02-21 10:052496 7
 - 
                                
                                    
                                    
                                    家装设计
如此雅竹,犹如一股清流墙咔与中式定制墙布结合效果
51304776 2022-03-13 10:351361 7
 - 
                                
                                    
                                    
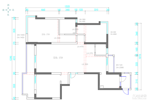
                                    【智汇·家】公园首府129平 半包 现代 装修小白的装修之旅
【小区名称】:公园首府【户型面积】:129【装修风格】:现代简约【装修公司】:新隆【装修方式】:半包简单说下买房经历,16年年底就开始看房,定位就要三房和两个卫生间,通过网上看,中介看,几个月都没有找到合适的。一次偶然看到一广告牌,新楼盘开盘在即。就打电话联系,通过接待的销售介绍,以及对周边设施,还有房屋的户型,都非常满意,就这样开盘后定下一套。先上一张我家的户型图:4房2厅2卫 【装修准备】 其
19493539 2021-02-28 20:5883333 103
 - 
                                
                                    
                                    
                                    
【装修日记】天曜誉府+119+半包+原木风+记录人生第一次装修之旅
【小区名称】天曜誉府【户型面积】119平方【装修公司】孙工装饰 【全屋定制】艾佳高定 【瓷砖】洪家金意陶 【包窗】暮森门窗 【地板】路桥月星家居格润法米利 【油漆】多乐士森呼吸【装修方式】半包【装修风格】原木风【装修预算】30万【开工时间】2023年11月26日曾经有低均价的天辰摆在我面前,我没有珍惜;最后入坑城东均价最高的天曜。简单讲讲挑中天曜的原因吧,首先老婆作为椒江人对于方远这个房企有着
铜锣烧v 2023-12-10 21:4438139 92
 - 
                                
                                    
                                    
                                    【装修日记】大国景139平半包+原木奶油风+求指导
【小区名称】:大国景拆迁房【户型面积】:139【装修风格】:原木奶油风【装修公司】:黄岩世家国际【装修方式】:半包前期自己也不急着住,就慢慢悠悠看了好几个装修公司,基本黄岩的装修公司都考过去了,好多设计师的想法不太贴近自己的想法,后来看到世家给的平面图,还蛮有创新的,加上邻居也已经定了他们家的半包,所以决定也打算定他们家了。前期从平面图到设计图推进也推进了快一两个月,基本的效果也蛮符合自己所想要的
biubiubiuaaa啊 2023-07-09 23:1817143 33
 - 
                                
                                    
                                    
                                    
泥工的建筑垃圾求清运
9袋泥工的建筑垃圾,求顺带清运,3楼无电梯,坐标三里亭
琹琹1016 2022-08-30 08:061564 5
 - 
                                
                                    
                                    
                                    杭州哪里卖断桥铝门窗的地方多
求推荐杭州断桥铝合门窗的地方
43739432 2022-02-25 08:081578 9
 - 
                                
                                    
                                    
                                    
寻泥瓦工
杭州萧山世纪新城,需要敲一个门洞,砌一面墙,把门洞的砖用来砌墙,有合适欢迎联系
51089995 2021-10-12 10:341705 4
 - 
                                
                                    
                                    
                                    澜颂奥府+117方+北欧简约混搭风
【小区名称】:澜颂奥府【户型面积】:117m?(套内90.11m?)【装修风格】:北欧简约混搭风【装修方式】:半包【装修预算】:36W(拆旧+硬装+软装+家电家具)【装修公司】:杭州德博装饰【项目经理】:夏经理【开工时间】:2021.9.7【状态更新】:2021.11.8更新 泥工阶段 2021.11.23 本周做美缝,下周木工进场 2022.1.14
15649904 2021-08-25 16:5353530 102
 - 
                                
                                    
                                    
                                    
必备|告别杂乱无章,家居收纳可以这样规划
相信很多人都会有这样的经历,住进自己精心装修的家里,每一个细节都精致且极具品质。但是随着时间的推移,家里别的物品与组件越来越多,一些杂物渐渐占据大部分的收纳及展示空间,每逢大扫除或者整理时,都需要花费大量的时间来进行归置。总的来说,就是收纳存在问题。尤其是对小户型来说,收纳是设计的主要需求。如何才能定制适合自己需求的收纳设计,你可能需要理清这些问题。 1收纳需要达到什么效果 收纳需要达到最主要的
台州兔宝宝 2022-04-14 16:291643 0
 - 
                                
                                    
                                    
                                    豪宅别墅家居工厂怎么做成的!我带你们走进工厂!
49767969 2021-12-08 10:412302 8
 - 
                                
                                    
                                    
                                    
哪个装修公司靠谱点
刚买的二手房想拆了重新整一下,看了良工和圣都两家,哪家靠谱一点,不是太了解
46930294 2021-11-07 14:524495 18
 
标签简介
大家都在讨论"装修日记"赶紧来看看吧~
 



