-
超现代化的室内风格,不是充斥着大量的现代科技…
而是将繁多的元素融会贯通,更加简约干练。有图你秒懂!
51662763 2023-04-29 02:454331 3
-
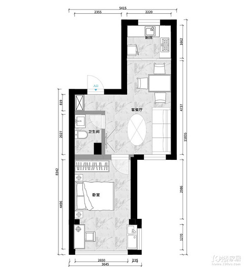
新世纪花苑——107方——日式北欧
【小区名称】:新世纪花苑【户型面积】:107(建筑面积)【装修风格】:日式北欧【装修公司】:奥林装饰【装修方式】:半包【开工时间】:2021年9月1日【设计师】:杨设计师【项目经理】:王经理 因为已经是装修过半了,才开始记录,前面的大概的提一下。基本上是拿到房子再看装修公司了,因为还是感觉当面在现场比较好沟通一些,有问题可以当面提出来,包括设计师对于这个户型的一些想法。现在是我们小两口住,过两年要
51049528 2021-11-04 17:5243389 51
-
铂鑫橱柜,圣威嘉橱柜大家避雷
新家装修在洪家橱柜城二楼订了一个橱柜,水槽水龙头都是在她家买的,当时买的时候老板娘一家子各种热情,包安装,各种橱柜拉篮说也可以不在他们家买他们给你安装,看他们家还停洋气直接在她家定了,付了定金。后来做好了可以安装了,安装师傅过来说要先收钱再给我安装,做为第一次装修的小白很爽快的付了钱,然后等他安装,本来以为一会就可以安装好了,结果说需要一天,因为要上班就回去了,结果整个安装的与展厅样品差别很大,安
43343263 2021-10-21 17:3914251 51
-
浴室装修不可忽略的小细节
洗澡次数一多,脱发就变得更频繁了,特别是女生,长头发很容易堆积在出水口,排水如果不够好,浴室就可能积水甚至返臭。所以这时卫生间的地漏显得尤为重要!比如安华的304不锈钢长条地漏,首先就可以根据浴室空间大小来选择地漏的长度超大面板能拥有更大的排水面积,能够更快排清污水!而且双重的过滤系统,能够让头发之类的细小杂物都被过滤,再加上自动闭合的翻板设计,不仅能时刻保证通道顺畅不堵塞,还能够防虫防臭。平时用
50922466 2021-07-24 14:091261 4
-
微风之城(北欧风)清包一一 省省省!
年前拿到的房子,178方,上叠。一开始拿到房,并不急着装,主要是老公上班远,吃不消从西南角到东北角跑,问了中介,这地儿出租市场不成熟,链家没有门店,我爱我家也只有出售的,富阳那边的中介说只能租个1500.想着是不是简单装一下,做个第二居所或开个民宿,赚点零化钱。【小区名称】:融创微风之城【户型面积】:178方【装修风格】:北欧【装修方式】:自装,包清工【装修预算】:40W【开工时间】:2021年
画外音 2021-04-27 15:4624528 51
-
【装修日记】天曜誉府+119+自己装+奶油简约+装修小白的装修之旅
【小区名称】:天曜誉府【户型面积】:119【装修风格】:奶油简约【装修公司】:无【装修方式】:自己叫师傅装【户型图+设计图+房屋实拍图】:【文字内容】:因为家里亲戚都是做装修师傅的,和老婆合计了下就选择了自己找个设计师来,自己安装,主要还是能省很多钱,看了好几个都不合适,后面问了朋友他刚好装修完,说这个设计师还不错,所以就接触了下,看了我家房型和我们的要求后设计了一个很不错的方案。
吃可心长大 2024-12-10 16:028680 14
-
拆非承重墙还要检测报告?
敲一面泡沫砖砌成的墙,物业说要出一份安全检测报告。他自己都说了没有文件说明这里不能拆,拆了没有安全问题,就为了堵投诉邻居的嘴。一份报告3500
你什么时候来找我 2023-08-14 15:492096 3
-
【银城青山湖畔】125方现代简约,只因多看一眼,就彻底沦陷!
51547159 2022-11-23 14:231867 7
-
找木工师傅量房和安装柜子
找朋友订做的柜子,需要木工师傅帮忙测量提供尺寸,安装柜子就行,家里要装30平左右的柜子,在老余杭金星站附近,有没有师傅比较空闲的,报个价
48012845 2022-06-08 16:391660 9
-
新房装修,找敲墙和泥工师傅
最近要装修,想清包,找敲墙的、泥工,水电,木工和油漆师傅,最近有时间的师傅可以私我。
22566317 2023-07-16 02:237977 13
-
【装修日记】美宸园丨115㎡丨清包丨现代丨荔枝阿姨的家
【小区名称】:美宸园【户型面积】:115【装修风格】:现代 简约【装修公司】:清包【装修预算】:30w【开工时间】:2022.7.16下周六要进房了(23/3/18),紧赶慢赶也算完工了。拖延症严重,帖子去年就想写了。写了个开头搁浅了。预算有限,找了自己亲戚做项目经理,套内面积98,想着自己弄预算全部弄好控制在30w内 @@台州居家仔
你是ex何必听我吠 2023-03-12 14:3242887 50
-
9万装出一个家
51445735 2022-08-05 10:411228 4
-
除甲醛相克法谁发明的啊!又省时又省钱!
本来不起眼的东西具体在除甲醛的事情上可以发挥这么大的作用!集大家的智慧学习到了除甲醛方法!比去找某些机构实惠太多了,节省不少开支!!自己解决,很快甲醛含量达标,可以手工入住新家啦!!很开心,幸福感是要共享的,那我把除甲醛的方法分享出来,让跟我当时一样的小白也能节省点时间!!!~~~除甲醛用到的工具:工业风扇定时开关绿萝活性炭加湿器草本迪亚林-----------------通风:只要不是阴天下雨都
50912811 2021-11-22 16:301198 0
-
【装修日记】天曜+106平+半包+现代简约
【小区名称】:天曜誉府【户型面积】:106平【装修风格】:现代简约【装修公司】:大视野【装修方式】:半包【文字内容】:装修从23年底就开始了,目前自己在diy全屋柜子,说是日记其实算是写回忆录吧,讲讲我印象比较深的一些事情吧。当时选这个户型是看中三室朝南,主要原因还是钱包太扁了买不起大的,唉,现在这房价说多了都是泪。当时交房以后各种销售闻着味儿就来了,电话接不停,先去都都看了一下,了解了一下价格,
来杯82年橙汁 2025-09-28 01:5412596 11
-
大门正对客厅简约屏风
开门正对客厅,如何把效果图落地,熬了几个夜晚,期间差点使用了铁艺,考虑铁艺影响客厅的磁场,进而影响风水,还是原木最好,河南有句俗语:人养木三年,木养人一生!何处一屏风,过来寻蒋工
51124814 2023-04-22 20:223669 5
-
第六空间
谁有洪家第六空间进门左手边那张卖5万的沙发照片
35088668 2023-03-04 22:451798 0
-
儿童防护网安装完成
51654300 2023-02-20 12:242450 10
标签简介
大家都在讨论"装修日记"赶紧来看看吧~



