-
农村老旧房子改造,让它成为你的梦想之家
农村老旧房子改造,浅黄色和棕色色调,二楼小阳台三楼露台等多样设计,让它成为你的梦想之家!如今,很多人都希望能够拥有一座心仪的别墅;但事实上,别墅的花销可不是一般地昂贵。那么怎样才能以省钱的方式来实现这个愿望呢?对于那些想要拥有一座格外美丽的别墅的人来说,老旧农房改造是一个特别重要的机会。 这个老房子进行了外观改造。原来的样子 改造后 浅黄色和棕色色调,加上二楼小阳台和三楼露台等多样设计,使它成为你
51750955 2023-06-18 15:084297 5
-
圣都的垃圾项目经理方海军
本人在去年四月份帮方海军做了一套工地,做好以后前期工资打了,在去年年底竣工尾款迟迟不打,今天拖明天,明天拖后天,到今年现在四月份了尾款还是不付,向公司反应,公司说他已经辞职了,他现在就是电话不接,微信不回,难道现在就没有人能收拾他了这种人渣吗?
奋斗青春0 2023-04-25 19:306427 6
-
记录2021买房后坐标杭州十年光阴装修日记
2021买房后也是特殊的二年,2020飞来病毒疫情影响比较大,原有的装修计划,一度延迟,也影响了装修进程,同时影响生活便利。2010年本科毕业于上海某大学,毕业后进入浙江杭州一家外企做基层管理部门工作,十多年还待在同部门上班。终于熬到2019年有了想换套大点房的设想,想在这个城市长期生活,还需要在城市一直工作生活下去,部门的同事大都买了大房,2021年买房受疫情期间,房价平稳,房价似乎没受多少影响
郇冬兰花 2022-11-27 16:203452 9
-
有没有好的设计师或是公司推荐啊,xdjm们
想要对房子进行部分改造,有没有好的设计师或是公司推荐啊,xdjm们其中一个房间稍微改动一下格局,做一个门,重新设计一个房间的格局 定制家具。地板不能动
44566500 2022-10-15 11:074226 12
-
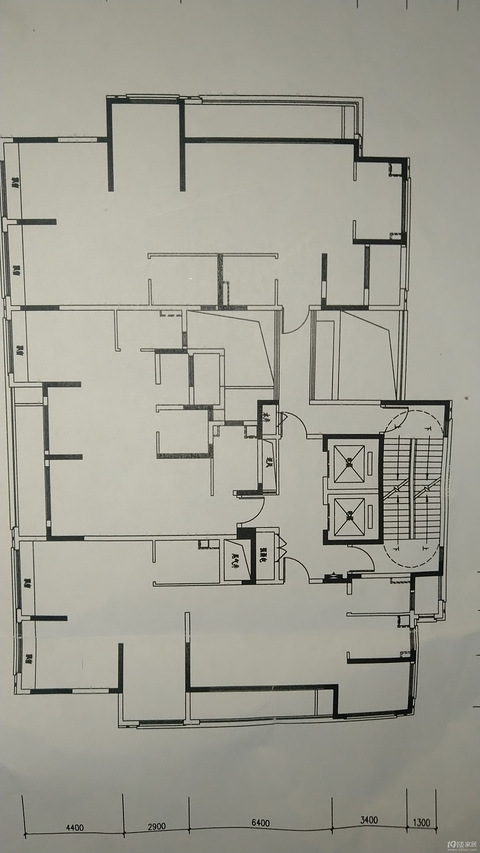
【装修日记】落地房120平 清工 简装出租
【小区名称】:农村落地房2层【户型面积】:120平【装修风格】:简装出租【装修公司】:无【装修方式】:清工【户型图+设计图+房屋实拍图】: 【装修预算】:10万【开工时间】:2022.4.1【设 计 师】:李女士(本人)【项目经理】:李女士(本人)上次的家装贴获得19楼三等奖之后,本人自我感觉良好,自诩装修经验丰富,所以在老弟的启发下,决定盘活固定资产,装修落地房出租。2022.4.1 泡沫砖隔间
Captain李 2022-09-24 14:0122512 40
-
创新区学区之天辰誉府
大家来说说[ej=1F31E]
51496917 2022-08-15 15:161491 1
-
塘河新村局部翻新改造
如题,厨房客厅地砖,阳台局部墙地砖拆除,三个卧室顶铲除刷新,难点是,只能先做两个房间,另一个房间要住人,等那两个房间顶做好,再拆除地砖,地砖做好,再拆除地板,
51124814 2022-05-12 11:417790 40
-
房子装修本人出差不在杭州,房门密码锁装修师傅可以对图施工
19楼朋友给推荐拆旧龙师傅已经拆除完成,进行装修下一步,房子装修复古式那种分风格,只请责任心强装修师傅对图施工,全程装修皆可以遥控视频对接通过私聊约定好即可进场施工,房子定位西湖区万科。
37992343 2022-04-14 15:5346428 40
-
装修标准
征求意见稿还要求,卫生间不应直接布置在其他住户的卧室、起居室、厨房和餐厅的上层。卫生间地面应采用防滑铺装,地面静摩擦系数(COF)不应小于0.6。 厨房、卫生间、封闭阳台与相邻空间地面的高差不应大于0.015米,并应以斜坡过渡。
椒江先生 2022-03-21 20:531176 1
-
新星小区53方装修
鉴于职业原因,本人做事比较干脆迅速,自12月初决定给孩子转学到今天1月12日房子交割,前后不足1月,当然找装修公司也花了一周,今日敲定,明日开拆。尽管孩子9月是否能转学成功还没确定,但考虑过后还是决定先装修,原因是如果转学成功我就得租房子半年等待装修,如果没转成功就空置一年。 先介绍下房子情况,29年房龄,初始装修,5楼顶楼无电梯,需要拆3堵墙。 前后装修过2次清包,装修经验可以算丰富,但
51157952 2022-01-12 13:0316709 40
-
【智汇·家】金清和悦府140平精装修轻奢装修小白的装修之旅
【小区名称】:金清和悦府【户型面积】:140【装修风格】:轻奢【装修公司】:精装+云景木作全屋定制【装修方式】:全屋定制【户型图+设计图+房屋实拍图】:平面图:全屋定制效果:电视机背景酒柜沙发主卧榻榻米房 【文字内容】:选房经历:房子是20年疫情时买的,今年十二月交房。说一下家里的结构,爸妈在金清做生意,姐姐已结婚基本上都住在椒江和路桥,自己在椒江工作(工作日住在姐姐家,周末回金清)。在选房时对选
50982249 2021-12-30 15:2630711 40
-
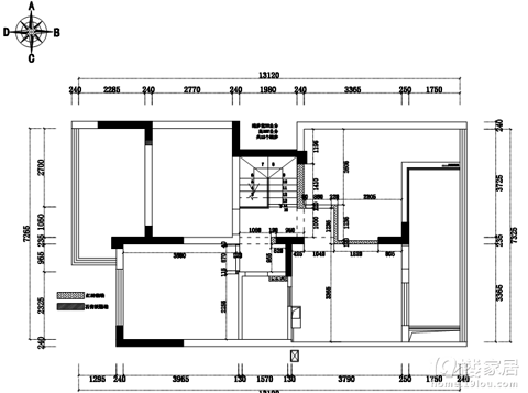
108㎡自住实用风开工啦!
【小区名称】:乔司小区【户型面积】:108㎡建筑面积,实用面积更大点【装修风格】:实用【装修公司】:小张师傅公司(并不知名,但目前看很靠谱)【装修方式】:全包【装修预算】:30万左右【开工时间】:7月8日【设计 师】:我自己【项目经理】:小张师傅原始尺寸图如下:
50953128 2021-07-24 20:3911416 40
-
19楼里找的装修公司-杭州中壹建筑装饰工程有限公司,坑死了
装修开始已经一个半月了,很快也很慢。痛苦并快乐这,不得不说装修房子是个磨人的事。下面好好汇报下这一个半月以来的装修历程,让其他要准备装修或者开始装修的伙伴提前长点经验。 本来这个帖子一个月前就要发的,你也知道装修期间又是普通的上班族实在是忙。这就拖到了现在,好,话不多说直接进入正题。 摇号篇:一日上班,突然听到同事说要摇号,以为是杭州车牌摇号也就没有注意。过了20天左右,这
我们的份上 2021-06-18 22:0112137 27
-
找个好地方享受退休生活:融创微风之城
【小区名称】:融创微风之城【户型面积】:171方【装修风格】:新中式【装修公司】:闺蜜介绍【装修方式】:半包 【装修预算】:60W【开工时间】:2021年3月18日【设计 师】:裴工【项目经理】:杨工
292147 2021-03-19 16:3831406 40
-
临安水电师傅推荐|靠谱师傅,手艺好、价格透明
我家第二次装修,前面找的装修公司(多花好多[/11大哭]),这次是自装的,一共是96平,做的水电全改,师傅在某音找的:「杭州临安零火水电」,特意找的年轻师傅(懂的都懂)包的工,55一平,做的全屋智能,全屋下来开关插座一起九十多个点位,材料自己买的(可以节省很多),没有图纸,师傅很专业现场沟通定的位,整体比较满意,水电排布也很规范,超出了我的预期,很多细节都考虑到!做好以后工地也整的很清爽。强烈推荐
蹦瞎卡拉卡一 2026-04-01 08:489590 1
-
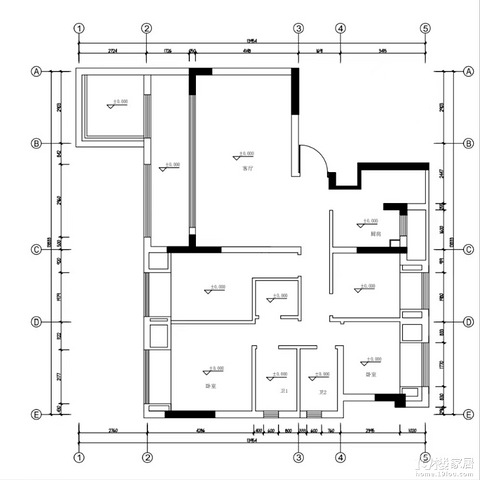
【装修日记】悦都天华+114平+半包+现代简约+小白首次装修
【小区名称】:悦都天华【户型面积】:建筑面积114,实量装修面积103【装修风格】:现代简约【装修公司】:瑞禾设计【装修方式】:半包【户型图+设计图+房屋实拍图】: 【文字内容】:人生第一套属于自己的房子,大概率也是最后一套,后期可能要准备当婚房,所以装的标准计划稍微高一点,当时刚交房准备装修期间看了好几家装修公司,有铭品、圣都、都都等等,最后还是选了朋友推荐的这家装修公司,一个原因是和老板设计师
反方向的钟丶 2024-07-02 11:0916341 36
-
35w装完电器家具都有含记录我的小家装修日志
先说下具体信息什么的,刚刚结房就开始准备装修。【关于楼盘小区】巴南世贸江城铭著【关于面积】建面129【关于风格】自然现代【关于硬装费用】95000【关于软装费用】还没弄等弄了加【关于设计费】29000软装硬装都包含了的,设计师是我闺蜜推荐的所以还是很信任。【关于户型图】这是我们最原始的户型图【关于设计设计需求】我的需求1、需要一个大书房满足两人办公。2、需要3个房间,常住2人但也要有以后孩子和老人
51847050 2023-12-06 15:5721947 23
-
原木风格,简单干净清爽…
生活其实就应如此,有图有真相,你懂的!
51662763 2023-04-17 22:273038 2
-
120㎡极简,通透大横厅+全屋储物+赛博电竞房,拿捏00后夫妻
小区坐标:杭州·溪语宸庐设计装修:铭品装饰本案是毛坯房落地的极简风house,业主是一对00后年轻夫妻,比起千篇一律的模式化生活,他们更向往一个能与精神共鸣的栖息居所。 设计师从业主对新家的憧憬出发,打造一处既能承载家人兴趣爱好、夫妻亲密互动、满足日常社交需求,又能收纳四季零碎、风格简约纯粹的家居场景。 横厅公共空间的设计极尽克制,抛弃繁琐的装饰,余下大量留白艺术,整个家仿佛被打开,自然光和新鲜
铭品DESIGN 2025-10-07 13:5913273 2
标签简介
大家都在讨论"装修日记"赶紧来看看吧~



