-
地漏全部断层加水泥砂浆
这种垃圾公司,良心不会痛的,中午反应了情况老板狡辩还说装修公司地漏都这样做得,他公司还代表全国的装修公司了,脸真大啊。还有这样的瓦工他公司还在用,完全没道德底线的 ,每个地漏都是水泥砂浆。阳台断层6公分,二个五公分,次卫和主卫淋浴房倒还可以,只差一点点。
50635127 2022-09-07 14:182270 0
-
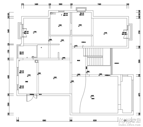
选两联供大概要多少钱?大家能推荐些品牌吗?
选两联供大概要多少钱?大家能推荐些品牌吗?提供下图纸吧
chongyje 2022-04-13 09:521753 6
-
花园整修,草皮换水泥地
个人觉得草地还是蛮好的呀,种种花种种菜都挺好的,但是我妈好像喜欢水泥地吧,问为什么!说是为了不招蚊子,哈哈哈好吧?
右耳花开 2021-10-22 19:413553 7
-
征好的设计方案有信益装修公司,急装修
征好的设计方案有信益装修公司,急装修和拆除队伍。
39866114 2021-08-13 21:412877 17
-
当你的客餐厅里多了一个书房是一种什么体验
在客餐厅区域总有那么一些犄角旮旯是“闲置”的,并不能百分百利用起来。想要小书房的就可以利用起来,只需要一个简单的书柜,一张小书桌,一张椅子,一盏小台灯,追求更高品质的可以用吊灯,一个简单的小书房就有了。
50883606 2021-06-29 17:521799 4
-
新中式风格,现代与传统的优雅交融~
古典与现代家具的结合,既有古典的东方韵味,又有现代风格气息,在空间联动上把握的恰到好处。深褐色的木质背景墙,水墨画,配合灰色的家具格外稳重。设计语言采用直线条为主,块面的分割,给人通透干练的感受。 餐厅 根据业主的需求喜好,设立了两个独立的餐桌,圆桌用于中餐,长桌用于西餐。落地移门将餐厅空间与室外的光和景紧密联结,增加了室内空间的自然采光,还能欣赏户外的自然风光,娱乐空间 开辟出一个小房间,摆上方
46919049 2021-06-25 11:412696 4
-
石膏线也翻车了
这个弧形,不知道是不是做的有点低还是咋样,有点怪怪的[/11捂脸]因为房间比较小,做不了三筐的石膏线,想着就做一个好了,结果贴的太矮,框也小,实在是丑哭了,然后拆了还好决定拆,改完舒服多了,嘿嘿嘿壁炉本来是这样的PVC石膏线一波三折,线下定的石膏线,这个户弧形的是说要定制比较麻烦让网上买PVC软线条,结果自己买错了PU的,装不上去,重新买等了好久,好不容易等到了,买少了,不够围一圈,因为买的对称的
一只猫一只小猫 2025-05-07 19:145500 2
-
【装修日记】学诚小区+120平+混搭风格+清包+预算25W
【小区名称】:学诚小区【户型面积】:120+21车库【装修风格】:混搭风格【装修公司】:游击队【装修方式】:自己找工人和自己安装【开工时间】:2024年3月份【设 计 师】:自己【项目经理】:自己【装修预算】:25w【户型图+设计图+房屋实拍图】:拖拉了半年多才想着快年底了,还是写一写装修日记,也是被自己懒出天际。学诚是去年底买的,打算年初开始装修,拖拖拉拉就晚了两个月,没办法,主要是女儿出生太忙
爱烧菜的楚枫 2024-11-01 17:4711425 16
-
自装,转塘,需要各工种师傅!
自装,杭州转塘二手房改造翻新,需要各工种师傅!比较实在的师傅可以联系我!1、敲墙师傅(敲墙,拆阳台移门,拆吊顶)2、水电师傅(水电改造)3、木工师傅(吊顶、衣柜、地柜)4、瓦工师傅(瓷砖改造)5、油漆师傅(全屋乳胶漆,石膏线)要人好、实在一点的师傅!站内信私信!
chazfx99 2024-09-28 10:3915476 10
-
新房装修
明日交付,今天先带人帮忙验下房子问题1.还没通电,漏电保护不工作。2.入户门鼓包不平整3.阳台中间3个玻璃没有3C安全防爆玻璃标志4.阳台移门闭合不紧5.客卫窗户没有限位器6.厨房窗户推拉困难7.客厅移门有划伤。8.地面及墙面空鼓较多,需要重做!!!2024.3.11其实跟低碳贝贝这个老板聊了快半个月了,回答问题都很及时,也很热情,也许是缘分到了吧。她家有几款床也都是不错,纠结了好久
大脸喵喵咪 2023-12-27 16:014354 23
-
【装修日记】天璟御府+130平+清包开工喽!
小区名称】:天璟御府【户型面积】:130【装修风格】:奶油风【装修公司】:清包【装修预算】:15w【开工时间】:2023.10.20终于开工了,装修过程比较漫长,打算是简装一下,有小孩子,希望少一些甲醛,简单的装饰一下就行。不管怎样,终于有个遮风挡雨的地方了!
爱你的誓言 2023-10-26 09:0011222 16
-
【装修日记】德加小区+100平+穷装之精装小改装之路
【小区名称】:德加公馆【户型面积】:100【装修风格】:没想法[ej=1F602]在原有基础上改一些【装修方式】:自装终于交房了、半精装的房子就这样吧。弃之可惜食之无味。手里也没几个银子。就弄弄过吧、话说、重装饰轻装修。最后也不知道要改成什么样。参考很多邻居的、走一步算一步。总之就希望花最少的钱做最好的效果!娃要读书了。拖延症患者 在已有的基础上只想改一个阳台。结果问了很多人。最后老爸说太贵了、自
seventeendays 2023-08-21 22:4015623 23
-
装修问题
求助下楼里已经在装修的小伙伴:本人上班装修小白,118平想装奶油风的装修。是选择设计师自己找的工人装修好呢还是半包比较好呢
彼岸唔花 2023-08-12 10:061288 3
-
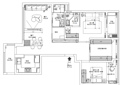
【装修日记】心海上城+129平+原木极简+半包+45万
【小区名称】:万科心海上城【户型面积】:129【装修风格】:原木极简【装修公司】:品东 装饰【装修方式】:半包【装修预算】:43万装修方案:随着年纪增长开始喜欢山,溪,树木,花草这些使人沉静的东西,每到假期就携家人往山里跑,在喧嚣中觅一处静谧。我家是一楼,考虑到采光和我们的喜好,我和家人决定原木极简的装修风格。(脑补着屋外花木成晆,坐在客厅里春赏樱花秋赏桂,举目望去,满眼新绿的小日子。)我家开了二
50313971 2023-05-10 14:1611911 16
-
【装修日记】观江苑133平+现代轻奢风半包
【小区名称】:观江苑【户型面积】:133【装修风格】:现代轻奢【装修公司】:源初装饰【装修方式】:半包【装修预算】:50万【开工时间】:7月 七月一号收房后找装修公司,选择了源初设计,半包满吊价格880元/平方,于7月10号开始设计,12号出来平面,16号出来效果图,经过局部修改后20开始动工了。
20606036 2022-11-24 20:2816562 23
-
卧室装修
51445735 2022-08-25 08:395657 2
-
装修之我们家的不锈钢橱柜好评满满!
新家装修的时候,在外婆家过渡住了一段时间。外婆家的橱柜是早几年用颗粒板还是什么板做的,水槽下面的地方都发霉烂掉了,而且每次打开别的柜子,都有一股说不出的霉味,所以我老爸一直念叨想做不锈钢橱柜。后来刚好朋友推荐了一家做不锈钢橱柜的,口碑听上去还行,做出来的质量和效果感觉也还不错。然后就联系上了老板。他一开始发了几他们做好的橱柜给我看。 个人还是蛮喜欢这样的,台面、柜体和门板都是304不锈钢做的,一体
41937969 2022-07-31 16:146529 23
-
80后130平房子装修,适合什么风格
室内面积130平,80后,适合什么装修风格,3室两厅,2卫,求推荐
51405403 2022-07-21 16:406716 23
标签简介
大家都在讨论"装修日记"赶紧来看看吧~



