-
求解:泥工, 另找泥工师傅
现在泥工用的水泥、黄沙用的还是普通的海螺/钱潮水泥,还是那种沙么,听有些师傅说现在的沙都是海沙,质量不好,现在都用新型的材料,有用过的朋友么,到底是哪个好另找泥工师傅:厨房+阳台+卫生间 还有70-80平方的粉刷
琹琹1016 2022-04-19 14:325116 21
-
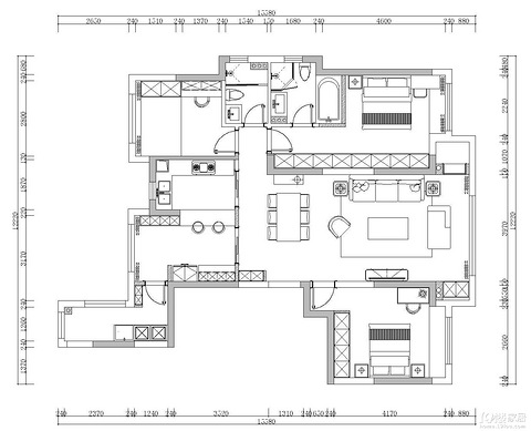
89平温馨小窝装修记录
【小区】:昆盛肖邦【户型】:小三房【建筑面积】:89平米【装修预算】:30万【装修方式】:全案设计【装修公司】:独立设计工作室【装修风格】:简约奶油风我们的小窝开始装修了,正在装修的朋友们可以互相交流呀
51292240 2022-03-03 17:506340 21
-
旧房翻新中之小局改
林司后的老房子,老人居住,想给老人请保姆,原来是三房两厅,两卫,客卫取消把厨房变大了,现在想把厨房隔开,还原原来的卫生间,拆除台盆,加一堵玻璃隔断,做移门,给保姆做卫生间用,台盆拆除,砸开地砖找到原马桶下水管,今天又增加一个立柱盆,考虑到客户住在里面,影响生活,布管结束就处理基层,刷防水,效率效率杠杠滴11/5号,跑了温州村,新时代,恒大建材市场,实在找不到以前的瓷砖款式,房东放弃了,就用300+
51124814 2021-11-04 21:562924 7
-
60方老破小漫漫装修路
装修公司:恒彩设计师: 葛设计师房子是今年年初买的,3月份顺利过户完成,漂了4年总算在杭州有了自己的空间,虽然不大,但好在地铁快开了,以后交通会挺方便的。新房到手后就开始着手装修,虽然房东原来的装修保护的还可以,加上卖之前房子又重新粉刷了一遍,所以也不知道房子的具体情况。但是楼下邻居反馈说厕所漏水,和老婆商量了下还是打算全敲掉重装,从此开启了漫漫曲折装修路。附房子原来的装修照片。
50754293 2021-08-31 09:1510288 21
-
套内70奶油轻法式13万硬装,超详细装修日记(上)
【户型面积】:89边套【装修风格】:奶油轻法【装修公司】:品筑施工队半包(姐妹们,我不是不想推荐这个施工队。而是问题有点多,所以我不推荐也不黑,愿装修路上少一点怨妇)。【装修方式】:半包5.5w不含柜子含辅料【装修预算】:13万毕业(无地暖中央空调)【开工时间】:2021年3月15日【设 计 师】:本人(翻小红薯)内容很长,记录了从开始到结束,也会记录一些我踩的坑还有装修顺序和一些知识,希望对你能
50448024 2021-07-01 03:0012323 21
-
此帖已删
此帖已删
50346844 2020-11-08 09:107607 21
-
蝶变两室两厅,凤起路上Mr.L和两个小情人的温暖house
房价太贵,学区房太小,摇号遥遥无期,本想改善买个新房子,无奈一直没法实现,偶然的机会买了这套不是学区的房子,为了能够更多时间陪伴在孩子身边。 于是开始了重新装修之路,因为之前已经有过一次装修经验,所以这次的装修变得有些许轻车熟路。 房产证面积63方两室一厅一厨一卫,实际测量61.5方设计之后改为两室两厅一厨一卫 在19楼的设计节上,沟通的大概4-5家公司,最后选定了三家来家里量房出了方
19606397 2020-07-10 15:4012477 21
-
展示水电施工图
stzssy520 2026-03-21 08:228005 0
-
老家自建房开始装修了
外墙窗户全部完工,接下来就是内部装修了。
想飞的猪9925 2025-06-13 10:5846981 17
-
威地暖安装完成
U51928037 2025-04-04 14:301010 1
-
【装修日记】巨资三万打造的毛胚房
只能容纳几人的小饭桌 女儿的房间这个角落是我最爱的哈哈哈哈我自己的房间浴室门都没有[/11捂脸]厨房和浴室蒜我家精装了[/11害羞]也没按柜门到时候遮挡帘到了按上去
40416747 2024-09-01 10:394542 7
-
75平日式简约
平淡如水
51787900 2024-06-13 11:044293 1
-
最后一步,到位
不知不觉,装修将近一年,随着最后一台马桶的装修完毕,总算大功告成了!
台州小市民 2024-05-25 16:221404 3
-
【装修日记】台州国际人才公寓+137+半包加全屋定制+极简风
【小区名称】:台州国际人才公寓【户型面积】:建筑137,套内107吧【装修风格】:极简风【装修公司】:青辰装饰+兔宝宝全屋定制【装修方式】:半包加全屋定制【户型图+设计图+房屋实拍图】:其中实拍图原图不少于5张。去年来台州工作的,女朋友椒江这边的,正好单位也在椒江,当时考虑在这边买房子,看了一圈,觉得人才公寓价格还比较合适,楼间距很大,我很喜欢,就等了一年,社保满一年了才买。其实周边房价降了不少,
Carpedie106 2024-05-23 14:4815501 17
-
3月开工,水电完工,有进度差不多的小伙伴,一起交流一下吧
水电验收,看了一圈还想加两个插座,10分钟就好了,有点受宠若惊
敏敏0710 2024-04-25 15:376834 7
-
【装修日记】春风华府半包原木奶油风装修小白的装修之旅
【小区名称】:众安春风华府【户型面积】:108【装修风格】:原木奶油【装修公司】:本地 璟恩工作室【装修方式】:半包【户型图+设计图+房屋实拍图】: 【文字内容】:先吐槽吐槽,外地人2018年底来台州,来之前因为吃了毕业没买房 看着房价上涨 首付越来越不值钱的情况,下定决心 到新城市一定先买房。 谁想刚到台州,逛一圈 发现 城市建设 交通情况 比预期的要差一些,可能知道的二线城市都是省会一类的 对
48921128 2024-04-01 16:1311076 17
-
精装实拍效果图
比起成千上万的糖衣炮弹式的营销,我们回归本真让设计走心
51754067 2023-06-22 16:294365 3
标签简介
大家都在讨论"装修日记"赶紧来看看吧~



