-
记录在杭州小家的装修全过程
2021年之前我和老公一直在上海工作,由于上海高不可攀的房价以及非常苛刻的购房资格,2021年年初老公辞去上海的工作来到杭州,快速落户,赶在购房政策改变前入手了一套二手毛坯房,等待了半年多的时间,我们终于拿到了属于自己小家的钥匙,之后就开始了我们的装修之路。想着留下一些我们曾经布置这个家的过程,于是我开始了我们的装修日记~
51292240 2022-03-03 17:275410 8
-
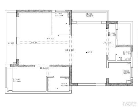
钱江三苑装修心得分享
听朋友们说大家都在这里分享自己的装修,那么我也想来简单的分享分享。但是打开的时候,说实话还真不知道该跟大家分享些什么,有人说看装修很重要的一点就是看工地,特别是水电阶段的,因为这些都是隐蔽工程,到时候铺上地砖地板啥,什么都看不见了,这些地方做好了,那就真的是好的。装修前期:其实在定圣都之前,我们在网上看了很多的资料,也逛了很多的论坛,公众号咨询过一些身边装修过的朋友。最终关键的还是得自己去家装公司
51153919 2021-12-02 15:577378 15
-
杭州装修日记—墨缘
8月8日,装修第36天,工长通知今天早上伟星公司上门进行打压试验,所以一大早就去看结果!打压到10.3,半个小时降到10.15,这点下降是没问题的,因为管子里有空气。试压通过后伟星的工作人员会跟你讲一下保修啥的,然后给你一张单子。明天水电验收,我拍点图上传给大家看看装修公司做的怎么样!然后还要估算各区域用砖的数量,然后我就可以把单子下给订砖的商家啦!下周还有换入户门和装窗户,至少要装好窗框这样泥工
50891094 2021-08-08 14:132522 8
-
197㎡意式现代,高雅的绅贵气质藏不住了!
说到自带高级感的装修,那意式风必须有名字。今天带大家参观的完工案例,正是一套意式现代的复式住宅。屋主夫妇事业有成,还有一双可爱的儿女,长辈经常过来同住,对房间的需求比较大。他们希望设计风格大气通透,同时每个成员在家里都能找到喜欢的元素。 一层户型图 二层户型图 步入空间的第一印象,是悠闲放松又不失沉稳大气。低饱和度的浅咖与木饰面碰撞出内敛的深度,整齐有序的色块,抚平内心的浮躁。 沙发的背景极尽简约
铭品DESIGN 2024-12-28 13:5327755 11
-
萧山装修-软装后-120平开荒保洁后的家太爱了,表扬项目经理
3月8日开工的装修,截止7.23日终于开荒结束,看到装修公司撤掉的保护标识,有点恍然若失!一直在19楼看装修,铭品也是从19楼了解到的,发此贴主要目的也是表扬自己,努力做功课,找到了负责人的项目经理郭玲松以及耐心,愿意倾听我各种意见的君君设计师,给我落地了我十分想要的三分离厕所~【楼盘坐标】萧山蜀山街道回迁房【房屋面积】120方【装修公司】萧山铭品装饰【项目经理】郭玲松【设计师】楼文君【硬装费用】
Hehy88516 2024-07-24 10:5928529 18
-
沙发性价比还不错!
这沙发性价比还不错
力到成功 2024-07-11 20:071133 1
-
不想被滤芯收割,400块diy搞定厨下净水器
装修太苦了,关于厨下净水器,本来想偷个懒,网上买个算啦~每年交点滤芯费嘛 万万没想到~现在的净水行业,割韭菜割的好狠! [/11爱心]专用滤芯的换芯成本 某国产净水品牌,一个1000G大通量的厨下净水器2k,咨询滤芯更换成本,kf回复除ro之外的滤芯,一年一次200,ro膜5年换一次1400,活动期1000可以搞到 心存疑虑,这么大通量的净水器,ro膜5年才换一次属实不太可信,换芯成本这么高,干脆
碧玉的主人呀 2024-05-21 15:5321680 18
-
全屋净水怎么做?来自穷装人的理性组合
装修至今,一直努力坚持 控制130w穷装350平的小排屋 像我们这种穷装人,一直逼着自己理性一点,肯定是要把有限的预算都用在刀刃上 - 关于全屋净水,其实是个锦上添花的系统, 很多人在暖通公司做方案的时候,就被糊里糊涂的顺带一起做掉了 一套系统:前置过滤器+中央净水器+中央软水器+末端净水机,没个3-5万下不来~ 土豪随意,穷装的小伙伴需三思 - 先剖析一下全屋净水的组成部分,再做决策吧 1?前
碧玉的主人呀 2024-05-17 16:368773 18
-
装修进入第二个月了
装修进入第二个月了,我本来以为装修应该是一件很快的事情,事实上并不是这样。砸墙砌墙确实很快,两三天就搞定了,后面水电,真的是各种琐事。本来以为按照设计师设计的来,应该没啥事的,实际过程中需要各种确认,各种更改,以前有些确实不合理的地方,都要现场确认,还有正常上班,真的太累的。后面的爱咋咋地吧,太累了。封窗我也以为会很快的,结果总耗时超过半个月了,说是订单太多,加工厂忙不过来,慢就慢吧,还能咋的,这
鸦神道人 2024-01-25 10:3827300 18
-
【装修日记】海尚望府120平
【小区名称】:海尚望府【户型面积】:120拆迁房终于在2023年8月底拿到钥匙那就开始装修吧第一步敲墙,砌墙除了不能敲的承重墙,全都敲了设计师给的看不太懂的图纸敲完重新砌回去的客厅,阳台墙,放水槽洗衣机 下图是厨房门,左边这一溜砖,我本来打算用玻璃砖,这样在厨房可以看到客厅,在客厅也可以看到厨房,因为厨房门打算不安装玻璃推门,安装那种木板画一样的推门,因为大门进来,斜对就是厨房门,想隐藏厨房门后墙
会跟我跑 2023-11-04 14:068482 11
-
到底是鸡肋还是解放双手呢
星之火之战神 2023-08-14 09:522595 11
-
能分享自己喜欢装修风格图片吗?
这个奶油原木风真的好看!!!
51770601 2023-07-21 15:154359 4
-
集成吊顶真好看
简直焕然一新
51751052 2023-06-18 21:272307 5
-
【装修日记】124平-半包-自由风简单装修
【户型面积】:124【装修风格】:现代简约混搭自由风【装修公司】:紫明都【装修方式】:半包【装修预算】:45万【开工时间】:11月 n年前开过装修日记!现在置换大一点能顺利交房 还提前! 万幸中的万幸,现在暴雷太多了!一交房就马上开工!半包的选择 ,有没怎么看!就看小区群里,大家说的,这家实惠一点!940一平方,包砸墙、搬运、地板地龙! 材料也还可以 算知名 中策电线、伟星水管、东方雨虹防水、兔
翼州刺史 2023-02-22 10:5412897 18
-
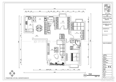
金地艺境装修日记之《地砖铺贴》
进入到杭州冬季最冷的时期,有人说这个天气不适合铺砖,我觉得问题不大,所以也就按部就班的走了,闲言少叙,先上之前展厅选的瓷砖材料。这是客餐厅通铺的地砖,选择东鹏1200*600抛釉砖,一共进了62片,按照图纸应该够用了。厨房墙面砖选择顺辉400*800瓷片砖主卫选择顺辉瓷片砖客卫也选择顺辉瓷片砖贴砖记录一下都师傅工艺流程:用瓜子片拌沙灰做基础层找平用找平爪尺来回赶平安放平衡支架取出大砖撕掉正面保护膜
34067575 2022-12-19 17:527561 8
-
无主灯设计
51445735 2022-12-10 22:572861 5
-
客厅装修
51445735 2022-08-19 21:407275 5
-
我的小排屋装修日记第三篇(附开销总结)
继续更新一波~~ 照例先汇报一波进度:目前敲墙完成;楼板浇筑完成,楼梯浇筑还差一层本周完工,门窗安装完毕。大致整个土建结构层面的基本完工,后续就是万分期待的精装修了[ej=1F60D]~~~ 那么这个阶段告一段落,我们来排一排目前已经支出的开销,做一个小小的总结,供需要的小伙伴们参考: 土建部分(敲墙浇筑运垃圾):包给准备签硬装的项目经理,打包价75000元; 窗户:部分窗户利用的
碧玉的主人呀 2022-07-13 17:4916291 18
-
钱江二苑140方现代简约~
来平台开贴记录装修过程~装修进度大半了4月2号正式开工 房子:钱江二苑面积:140方风格:现代简约公司:城建装饰设计师:王克装修模式:全包 每一个为梦想努力的人都值得拥有更好的生活,每一颗奋斗的心,都值得被温柔对待。疲惫的自己一定会记得回家,与家人在一起便是幸福。喜欢简单的事物,回家那一刻都是简单舒适的,所以一开始便和先生明确好了风格,现代简约~ 设计上:1、阳台较小,洗衣机放置是个问题,解决:公
46888353 2022-06-13 14:46114825 18
-
时隔7年,又又又装修了,随便记录一下
【开篇】 7年前装修到后面都断更了,不过这次回头看到以前的图甚是感慨,感觉写一篇日记也是不错的。这次好还是想到哪写到哪,包涵包涵~依然准备年底入住,时间上还是有点紧,只能加油了! 【户型面积】:100平【装修风格】:混搭(没钱)风【装修方式】:半包【装修预算】:本来决定25~27,最后发现物价飞涨30不知道能不能打住【项目经理】:郑老板【设计师】:季子 【准备工作】一想到装修就头疼,设计师依旧找了
24265120 2022-06-08 11:326524 18
标签简介
大家都在讨论"装修日记"赶紧来看看吧~



