-
【装修日记】翡翠云邸101平 自装 随心所欲风
【小区名称】:翡翠云邸【户型面积】:101平【装修风格】:随心所欲风【装修方式】:项目经理 【准备阶段】:买房后三天两头接到装修公司电话,看心情随意加了几个,线上线下都粗略地了解了一下,感觉有些装修公司的设计师过度追求设计感,本人偏向于实用性,喜欢我家空无一物的感觉,加上预算有限,最终决定自装。由于是新小区,有好多活跃的业主都在群里分享一些装修有关信息,我自己也三天两头上网看看人家的roomtou
953114 2023-05-07 19:1396277 193
-
贫民窟刚需89方北欧小窝
基本信息:【楼盘名称】:卓悦华庭【户型面积】:89㎡建筑面积【装修风格】:现代北欧风【装修方式】:全包【装修预算】:贫民窟里哪有预算,都是抠搜的来~【实际支出】:待结算【开工时间】:2020.09.10【装修公司】:圣都装饰【设 计 师】:韩燚-----------关于设计师(后期全部结束会有叙述)【项目经理】:韩晓华-----------关于项目经理(后期也会从头到尾一一道来) 户型图平面图
46658395 2020-09-11 08:40201267 193
-
【2020日记大赛】装小白入坑记
在杭州漂了十年。总算入手一套老破小。算是有了一个家。 折腾了将近一个月,总算把装修合同敲定了。比较过大的装修公司、小的工程队,最终还是选定了这家不大不小的以做老破小闻名的装修公司。一个是基于设计师的沟通比较顺畅,第二个是觉得他们拆旧做的挺不错的。价格嘛,也还算公道。 在选装修公司之前,就签订了装小蜜的监理和陪签服务。事实证明,这项开支还是非常有必要的,可以帮助小白绕开了不少道道,特别是装小蜜的密友
千家万家 2020-08-10 09:22212364 192
-
60方出租找全包报价
60方出租找全包报价
43479533 2021-08-06 19:021887 4
-
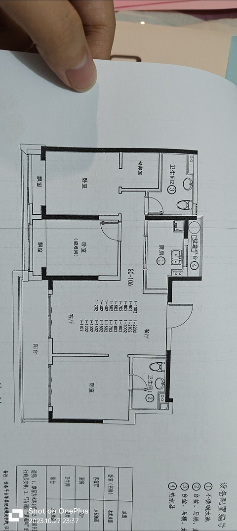
【装修日记】翡翠云邸+120平 买房2小时选装修公司2个月
【小区名称】:翡翠云邸【户型面积】:120平【装修风格】:极简风【装修方式】:项目经理【装修预算】:尽量控制在30万以内,希望结束的时候不超过35万【开工时间】:2023年3月8日 写在前言:从看房到最终买房,花了差不多2个小时(一个晚上)。主要原因也是最后一期折扣力度比较大,带着些许冲动,插坑了翡翠云邸。 阶段一:装修准备从去年12月份开始,先后被10多家装修公司骚扰(没办法,联系方式被无情的出
人在十囧楼 2023-03-16 11:05131810 176
-
【2020装修日记】张家佳苑140方现代轻奢
[序言] If You Live Seriously, You can Find The Candy Hidden in Your Life. 认真生活,就可以找到生活藏起来的糖果 ────以此鼓励自己能坚持写下整个装修阶段的日记!- - - - - - - - - -
31425996 2020-08-29 12:27204135 190
-
请问下 路桥周边哪里有卖圣戈班或可耐福的石膏板啊 谢谢
请问下 路桥周边哪里有卖圣戈班或可耐福的石膏板啊 谢谢
45477224 2021-05-10 11:252072 4
-
志邦全屋定制温岭店出了啥问题,交钱订货后老板电话不接
25年12月10左右交的钱,订货,说要到26年1月22日左右交货,今天打电话没人家,好不容易回个微信说找另外一个老板,另外一个老板一直不接电话,温岭装饰城的店也一直关着,后来查询志邦全国服务,说25年7月份就终止合作,是不是要黄了,网友能不能出个招,新家没法交付,日子也选好了,怎么办
47679589 2026-01-22 16:035638 5
-
【2024装修日记】89平,日式原木+中古风的装修记录,处处皆细节
2022年10月1日和先生一起买下人生中的第一套房子,2023年2月26日正式开始动工,2023年8月左右结束装修,2023年10月底正式入住,已经入住大半年的家,仍旧是看哪哪都很喜欢,不管看到家里的哪一个细节都心生喜悦。 从2023年2月底到2023年8月底,历经大半年的装修,有很多心得经验想要记录与分享,决定在19楼这里,再次回顾记录我们的小家装修之路,希望我的分享能帮助到大家。 一、装修前期
慢慢亦灿灿 2024-04-26 10:05128064 75
-
北欧混搭小清新·我们的新家养成记~
2019年9月买房一事终于提上日程了,目标五常闲林附近。 想着新房摇号艰难,交房起码得等2年,精装修的自己又不一定喜欢那风格,加上当时也没合适的新盘,就直接找中介看二手毛坯了。 9月初开始跟着几家中介断断续续地看房,从闲林山水到岸上蓝山再到东海闲湖城,不是户型不喜欢,就是价格不满意。直到11月初,之前联系过的西溪未来里的置业顾问突然联系说她们12月开盘,又有了新希望,然而!果然还是高估了自己的运
醒木木77 2020-07-24 14:15183765 182
-
【装修日记】红枫苑131半包选配现代轻意长文记录
【小区名称】:绿城 红枫苑【户型面积】:131【装修风格】:现代简约【装修公司】:梅工装饰【装修方式】:半包+选配主材【装修预算】:硬装二十多万【户型图】:平面设计图11月开工【装修准备】装修需要注意的一些事项起因:买房后囊中羞涩,空置近一年,想着每年白交好几千物业费,还是决定咬咬牙装修。前期准备:先在某红书以及各个装修app上浏览选择喜欢的装修风格,了解装修需要注意的事项,自装半包和全包的区别以
星辰溪枫 2024-10-14 09:3366091 151
-
【装修日记】天韵+173+半包+简约风格+疫情下的装修之路
【小区名称】:天韵水岸【户型面积】:173【装修风格】:简约【装修公司】:新隆装饰【装修方式】:半包 对于装修,一想起就头大,因为疫情,因为种种原因,一直没动工,眼睁睁看着各种装修费用刷刷的上涨后,才下定决心装修。每个不曾起舞的日子都是对生命的辜负,那装修的日子大概就是一次凤凰涅槃吧!在了解各种装修材料中,常常发出灵魂拷问:为什么要将每个装修的人都逼成了半个专家?当然,幸好有19楼! 决定
阿薇0576 2022-04-16 11:17182004 177
-
【智汇·家】铭鼎花园+124平+半包+北欧记录全部心路历程
【小区名称】:铭鼎花园【户型面积】:124【装修风格】:北欧【装修公司】:新隆装饰【装修方式】:半包【户型图+设计图+房屋实拍图】: 【文字内容】:2021年10月9号就准备开始装修但是一直都是以看19楼网友的装修日记为主,看的非常的多,期间也有很多收获。看过朋友家的新装实体看过很多家的半包公司,其中有新隆装饰,良工装饰,丽园装修,易家还有几家独立工作室,量房都量过了,那么多家接触下来还是对新隆装
为你偏执成魔 2021-11-15 18:42160175 180
-
【2020日记大赛】王马—老破小的血泪装修史
今年三月份在王马社区买了一套老破小给儿子读小学用。65方,三室一厅一厨一卫。照片都在下方,可能照片给大家没啥参考价值,但对我来说算是留点纪念哈。接下来讲讲我的装修血路~ 先说下我对目前市场常见的几种装修承包方式的见解吧半包:主材自己买,其他由装修公司负责。(对生活有品质要求,对材料也有要求的,适合半包,因为市场上的材料款式多,更新快,毕竟要与时俱进么)全包:全部包给装修公司,自己什么都不买。(省事
10110314 2020-04-20 22:51194068 178
-
【顾家关爱】小蛋挞的第一套房子,130平预算40万
前期看了很多,基本上觉得自己都定下来了,其实还没有开始装修。。4月份法院拍的房子,然后一直看酷家乐,兔狗,好好住,小红书,还有19楼,又在前期跑建材市场看了很多,实际跑很重要,一来不至于定的时候太匆忙不知道怎么选,二来很多你想的东西能不能做出来,不至于后面风格越来越偏,第三最好的老师是销售,听听他们的意见,我学了很多,还可以货比三家,第四我觉得买东西最好看老板,老板老实人真的很好砍价。 我是这样的
小蛋挞的家 2019-06-13 06:27196535 174
-
名翠云汀苑精装三房,被小装修公司装成了出租屋
最近在处理中,后面我综合发布
开心的4220 2025-12-29 11:3526758 5
-
【装修日记】自建房装修已完工
自建房,村里一起自行拆了重建,大概一共15幢6间套三层半一起,我这幢历时1年半(从打桩到门窗全部装好)。其中地基配套费16万,所有大门阳台门窗门费用12.2万,泥水师傅包工13.76万,建房主体钢筋混凝土水管电线管工各种31.3万,外窗大理石0.41万,阳台石头护栏0.64万,前后天井窗1.1万,窗线道加外墙喷漆5.72万,共81.13万
squallhm 2022-03-30 10:45105504 173
标签简介
大家都在讨论"装修日记"赶紧来看看吧~



