-
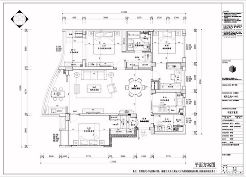
143㎡现代简约风,无主灯设计,空间大气又高级
以少胜多、以简胜繁的设计理念,玩转出一个个温馨、亲切的时尚家居环境。 SD/业主需求1.主卧希望有衣帽间和书房; 2.一楼需要办公区;3.二楼楼梯不想对着卧室门。 SD/设计亮点 1.打掉厨房与餐厅的墙体,增大客餐厅空间;2.卫生间干湿分离,单独设计洗衣房空间,避免了客厅阳台晾晒衣服杂乱的感觉;3.二楼改变卧室门入口,解决了出卧室就是楼梯的危险性;4.主卧阳台墙体打掉,扩展到室内,增大面积,同时
50906909 2022-11-01 15:519738 7
-
实景项目,拍照中…
50846736 2022-10-04 22:362152 1
-
初检没问题但是竣工验收发现墙面40%的空鼓咋办
瓷砖是去年11月份贴好的 ,请的装小蜜监理12月检查了发现个别空鼓,但是在允许范围内就没让装修公司修复,现在竣工验收发现2个卫生间大面积空鼓,厨房和阳台也有但是集中在2个卫生间,装修公司目前是说不会掉的然后延长了保修期,但是还是担心后面掉下来 万一砸到人可咋整。担惊受怕的。但是如果选择重新贴,装修公司估计不愿意,而且橱柜,淋浴房,马桶,热水器这些是都要拆掉吗,感觉好麻烦。求大佬指点。贴的是400*
50957237 2022-09-06 09:244870 14
-
新华路35方老房子装修
因为父母年龄的原因,还是住市区比较方便,看病购物什么的,终于说服父母把这套老房子装修下。太后点头了,自然是我去跑腿了。【一、选择装修公司】作为19楼资深用户,自然在19楼的装修论坛上找了几家感觉不错的装修公司,大公司、小公司、装修队都谈了一遍,因为时间原因,没有继续找,最后选择了SJP,因为报价相对便宜(提供了详细的报价单,而前两家装修公司只给了大致价格),还有看重他的后付款模式(先付定金,接下来
guhaif97 2022-08-31 22:225311 14
-
因为瓷砖不平,整个墙面贴完瓷砖就像海面一样,此起彼伏呈波浪形
因为瓷砖不平,整个墙面贴完瓷砖就像海面一样,此起彼伏呈波浪形避坑萧东陶瓷市场X元帅贴瓷砖的师傅一直都在说,从来没有见过这么侘的瓷砖,买了三款,三款全部都是劣质瓷砖
43739432 2022-08-27 21:146352 14
-
89方的房子,出租房装修,这个效果可以吗
48971458 2022-08-23 11:026167 14
-
【房屋装修】美缝怎么做?
前几天分享了人生中第一套房的购买经历,接下来就要开始研究怎么装修了。https://www.19lou.com/forum-111-thread-61861656644498066-1-1.html 精装房收房后的第一步就是美缝(当然了,前提是房子没有太大问题)。 为什么要做美缝呢?由于我们是精装房,在交房之前,房屋的水电墙面、地板都已装修完毕,所以就不用考虑装修毛坯房流程了,但是开发商在铺地砖和
阿里保保 2022-07-18 21:139633 14
-
最常见的4种吊顶!做无主灯布局,这感觉也太棒了吧!
吊顶是指房屋顶部装修,也可以理解为天花板装修,是室内装饰的重要部分之一。 吊顶在整个室内装修中占有很重要的地位,它能够美化室内环境,因此在选择吊顶材料时一定要非常上心。 常见吊顶样式 1.回型吊顶:明装筒灯+嵌入式射灯+线性灯带+吊线灯 2.悬浮吊顶:嵌入式射灯+磁吸灯+线性灯带+壁灯 3.平面吊顶:嵌入式筒射灯 4.不吊顶:明装筒灯+轨道射灯+明装射灯+吊线灯 可以直接拿去参考啊! 好啦这期的分
51457848 2022-07-12 14:541789 7
-
一位叫姓周的河南人. 大家注意了就是个骗子,专以各种理由坑钱
:一位叫姓周的河南人. 大家注意了就是个骗子,专以各种理由坑钱,我真是气死了.天下竟有这样不讲道理的人.表面看看憨厚诚实.长相也老实.怎么就素质这么差,真不知道这些人怎么想的.还好意思闹说我差他很多钱. 事情是这样的.也就是4月份自己接的单子.,在4月25号有家装修网找了一位叫姓周的河南人.来拆旧粉刷,大家注意了,这种人.我居然拿他没办法.到公安.派出所,说这不属他们管.我们只能看着骗子、没其他办
金博士设计 2022-05-15 16:3811267 14
-
德信早城跃层装修出售记录
16年还没限购前,经朋友推荐买了德信早城88.66跃层。满五唯一,现在二手房交易时间较长,就想着装修下,边住边卖。家人朋友也劝我,为了出售而装修,装修钱白白丢水里。我觉得装修是把自己喜欢的生活气息和对这套房子居住风格解读的展现,也是寻觅同欢喜的有缘人的过程。所以也在此记录下装修出售的心路历程,与大家分享。房子是跃层,产证面积88.66,使用面积约120平,整体风格做现代简约精装,整体色调以天空灰,
44724540 2022-03-13 08:156319 14
-
潮湿嘈杂的一楼如何装——记录我家的装修点滴
引言住了11年的房子,孩子在这里长大,我们在这里变老。2001年的房子,虽然已有二十余年光景,但是因有满满的感情所以准备重新装修留给自己居住。今天借19楼宝地,记录房子的变化。也希望能把我们的经验传递给有同样诉求的朋友。房屋特点:一楼,三房朝南,客餐厅朝北,两卫生间,一个半暗卫,一个全暗卫;房屋问题:光线不足,梅雨季节潮湿发霉;南边卧室朝向教工路,开窗时候嘈杂。房屋优势:保温,冬天室内温度不低于1
12450673 2022-02-18 21:3613125 14
-
开工大吉
开工大吉,财源滚滚而来,金钱源源不断,人生处处得意,开工时时大吉!
50247937 2022-01-20 14:257020 14
-
万科城市之光装修日记
2021年六月我们开始了我们家的装修。六七八月是最关键的水电进场,这些都是承包给铭品装修公司的。工地现场有监理很负责的来巡逻工地,还有装修经理帮忙监工,后期结束还有公司派来的负责人验收,期间设计师也来交涉确认与预期方案一致。 九月十月是泥工木工进场,期间也是很负责任的在进行,有什么不懂的 我也直接与施工团队及时沟通,师傅很负责很有经验,合作愉快。十一十二月是油漆工进场,全屋定制公司进场。后期收尾活
51221493 2022-01-02 13:406849 14
-
新安嘉苑-81平米-现代简约(开贴)
【小区名称】:新安嘉苑【户型面积】:81.18(建筑面积)【装修风格】:现代简约【装修公司】:良工装饰【装修方式】:全包(预算14W)【开工时间】:2021年10月18日【设计师】:华设计师【项目经理】:汪经理 我们是回迁房,从拆迁到拿到房子中间过渡了6个月,10月拿到的房子,我在7月就开始陆续关注装修公司(由于第一套婚房是我婆婆出钱装修,我全程没有参与,可想而知装修的也不是我喜欢的,这次我就和
xiaohuai55 2021-12-22 11:247241 14
-
寰宇天下—180方—美式风格—半包
写装修日记真的是很不错的体验很多自己吃过的亏、得出的经验时间一长就忘了记录一下少走弯路【小区名称】寰宇天下【户型面积】180方【装修风格】美式风格【装修公司】九鼎装饰【装修方式】半包【装修预算】22W【开工时间】2021【项目经理】江经理 2021开始了我们的网络沟通。我在厦门装修也关注过九鼎。从3月到6月,经过了对九鼎的了解,施工的介绍,管理介绍,到最后用建筑CAD结构设计方案(有时候晚上十一
34311974 2021-12-14 13:509776 14
-
联排别墅装修
期待效果
冯冯冯疯子 2021-10-11 09:423432 7
-
联排别墅装修设计
富阳银湖附近免费上门量房,另正在施工的工地可以参观
冯冯冯疯子 2021-10-10 21:551928 4
-
放假天天出去玩?收纳整齐,梳洗更方便
放假前还说要好好休息7天,结果回家超多聚会,各种婚礼朋友聚会同学饭局都来了,但每次出门拖到最后一秒,又不想随便梳个头就完事,实在是太需要一个方便梳洗化妆的空间了! 所幸家里换了安华卫浴的柏林顿浴室柜,真的是把收纳分类做得太好了,就适合每次我这种洗漱保养都超多流程、瓶瓶罐罐都摆满的人哈哈哈哈像这款的镜柜简直就是为了精致猪猪女孩们专门设计的!半封闭式设计,还很贴心地划分成多个储物格子,再也不用将一大堆
50922466 2021-10-06 15:202874 7
标签简介
大家都在讨论"装修日记"赶紧来看看吧~



