-
装修公司是分几次收装修款呢?
付款方式?
luchao3812_cn 2022-03-28 18:154702 12
-
装修成这样你觉得需要多少钱?
从设计方案到软装落地挂画,摆台,每个细节都不放过。施工过程中有一些设计甚至工人不知道做,头大,和客户小姐姐期间也有一些争吵,各种各样的出人意料,过程很艰辛,但结果还是很满意的!你们觉得呢?
51297996 2022-03-26 09:276674 12
-
受宠若惊了!小心脏扑通扑通的
这个色系也没谁了,独特的人就连喜欢的东西也是少数人的选择,猜猜这位的年龄有多大
51297996 2022-03-24 21:343686 12
-
东寰名邸116方 现轻风格
开工啦~ 房子:东寰名邸面积:116装修公司:城建模式:全包(柜子先不考虑)价格:18.9w需求:现代轻奢 2020年房子交付后一直没有想着去装修,但想着23年小孩子读书可能房子是要入住进去的,而且中间一个空档期也可以装修好后散散甲醛,并且装修一年一年价格都在上涨,所以装修这块22年就要动工了,后续东西慢慢添置进去。21年12月就近找装修公司咨询了解,拿着户型图和设计师先沟通,筛选出自己觉得合适的
46888358 2022-03-03 15:229322 12
-
求卫生间装修师傅
新年好!!!家里的卫生间想要重新装修以及其他局部改造。想要尽快开工,有没有师傅接单呢?具体的私信吧
12425976 2022-02-02 11:582056 12
-
记录一下我的装修——中央空调篇
最近几年中央空调好像挺火,就跟风买了格力中央空调,杭州的天气到了夏天简直是湿热难耐,没有空调简直没法正常的生活学习。美誉舒适家-格力小王在做活动就买得挺实惠,格力中央空调就比普通柜机空调贵一点,关键是不占地方这点我很喜欢。 然后根据我家的情况和我的要求设计了一套比较合理的实施方案,能最大的发挥中央空调的作用。我也没管那么多,安装师傅进场的时候查看了家里的实际情况,开始准备把中央空调的孔打好,因为事
美誉暖通家电 2021-12-16 15:407545 12
-
48平“老破小”的变身,单身的我有了一方自己的天地!
我在杭州呆了好几年了,因为之前的男朋友就在这边工作,所以我一毕业就过来了,可惜我们最终也没有走到一起,买这套房我爸妈赞助了很多,因为就自己一个人住,也没有那么多钱所以相对面积就会小点,但是我一个人住还是够够的,那段时间一直在中介和公司连轴转,终于还是入手了一套48平方的,虽然是老小区,绿化这块肯定没有那么好,但是交通便利这个是我的首选了,房子到手之后接着就开始着手找装修公司,一来觉得找装修公司比较
34398472 2021-12-15 10:515730 12
-
滨江,求靠谱油漆工
坐标滨江,求推荐靠谱油漆工
51159723 2021-12-02 02:542489 12
-
美式小清新~补充日记
居住:微风之城面积:130㎡风格:美式装修模式:全包23W装修公司:浙江城建联合装饰工程有限公司设计师:芳芳 需求:一家四口住,家里有2小朋友一儿一女,自己从业原因,钢琴需要一个位置摆放,老公需要书房,公卫要干湿分离的,冰箱想放进厨房,具体尺寸需要设计师帮忙规划。 几年前之江九里的房子就是找芳芳老师设计的,这次我们这套房子装修找的同个设计师、同个项目经理团队进行施工,实在没想到这么多年,我们很幸运
50556027 2021-11-22 13:048059 12
-
我家全屋衣柜的选择原木衣柜篇
无意中了解到小何木榫,去了两次门店,觉得效果不错,今天毕业啦来分享一下衣柜,原木环保且有质感,价格实惠,老板和安装师傅都很负责,设计师设计很合理 第一稿方案就很满意,安装师傅特别认真。给好评-所有的柜体都是全实木原木做的,*选的无节板-爱格板做柜门,用的是色号H1379,真的很高级,和胡桃色很搭厨房入口处做了小吧台,上层放烤箱,下层做柜子。nice电视机旁做了清洁收纳柜,抹布工具电动吸尘器统统搞定
50647382 2021-09-29 13:537016 12
-
装修日记铭品
地点:拱墅区昆仑橡树园面积:128施工单位:铭品装饰设计师:周装修方式:半包+主材代购预算:50万装修风格:极简暖色调装修时间 7.15-11.30拿到房子的时候通过网上约了4家装修公司过来量房,分别是圣都,铭品,恒彩,南鸿圣都是第一个看的,看了旗舰店展厅的面积是真大,产品的选择也是最多的,看下来感觉挺不错,就是设计师的方案不是很好,感觉就是套娃的方案,我们说什么就是什么,没有一些好的建议。觉得既
47540620 2021-09-27 12:287057 12
-
进一步更新自家房子的装修情况
施工质量真的很放心,果然没有选择错,交给他们做真放心
836845 2021-09-10 11:473811 12
-
我们的婚房装修很成功,感恩设计师的付出
回顾2018年,我发现我们家的主题就是装修。首先,就是我爸妈家的房子。因为住了有几十年了,整体看上去有些陈旧。原本是想要卖了这套,然后重新买一套。只是,爸妈说这套房子从他们结婚后就一直住在这里,都有感情了。后面呢,只能各退一步,对这套老房子进行全面翻新。因为前期在找装修公司上面花了很多功夫,所以后面的翻新工作很顺利。没过多久,翻新工作就完工了。只不过,爸妈这里的翻新是完成了,而之前我买的那套
42654891 2021-08-28 10:408742 12
-
老房改造,终于动工啦
装修公司:铭品装饰 装修之前!拆拆拆
42688323 2021-08-26 10:559939 12
-
天韵水岸+136+半包+原木简约
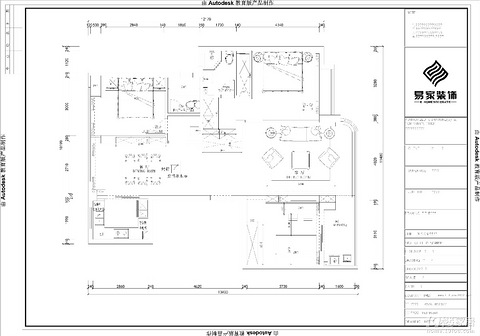
【小区名称】:天韵水岸【户型面积】:136平【装修风格】:原木白简约【装修公司】:易家【装修方式】:半包【装修预算】:45万【开工时间】:2021.6.13【设 计 师】:洪慧【项目经理】:赵记伟 5月份开始准备装修,因为只能周末去看,所以装修公司总共就去了3家,半包易家,全包圣都和安乐窝。安乐窝:价格特别便宜,但是后来去看了一下他们完工的样板房,不是特别满意装好的效果,可能是网上照片看多了,感觉
leo蛋蛋 2021-07-05 11:237708 12
-
【智汇·家】永江府60平 清工 现代 装修之旅起航
【小区名称】:永江府【户型面积】:60平方【装修风格】:现代【装修方式】: 清工 拆迁房等啊等,终于等到了。中层60平米小房到手后,在全包和包清工间犹豫了几天,由于房子打算装修起来出租用,且户型比较简单,一个厨一个卫生间一个客厅一个卧室,全包怕装修材料问题熬不了多久,所以本着钱花在刀刃上的原则,打算更大地实现几万元预算的价值,包清工进行装修。没做多少复杂的准备,没有找设计师设计图纸,就看了看
hanguwa 2021-06-14 00:2417459 12
-
2021装修日记-赵小白
【小区名称】:亲亲家园【户型面积】:套内90【家庭成员】:我+我先生+1只小猫咪【设计公司】:上北设计【设计风格】:复古【装修公司】:全产装饰(原名酷程)【装修方式】:半包【装修预算】:40万【开工时间】:2021/5/20【第三方监理】:装小蜜刘工【第一章】开工前期【前期准备流程】1:1/27确认设计师去好好住app上找了自己喜欢的几家设计公司,线上沟通,再面谈看平面方案。经过筛选确认用上北设计
50622130 2021-06-02 16:1911417 12
-
136㎡我的现代简约新房装修日记
地址:水印城面积:136㎡风格:现代简约装修公司:铭品装饰设计师:温双双新房子要装修了没什么经验,对比过很多家,最后还是选择了铭品装饰,来铭品沟通了一下是对温设计师很满意,看了展厅的材料和施工工艺,也都不错,跟其他公司还是有区别的,有很多自己的施工专利,从设计到效果图的表现都很满意,希望后边到了一切顺利吧. 5月22日开工了 希望后边装修一切顺利吧!
50665620 2021-05-28 17:176100 12
-
余杭农村自建房来看看
貌似19楼没有以前红火了,看了很多很多的帖子,基本都是商品房的装修款式、建议等等,农村自建房真的是小众了,但再小众也有其存在的必要性,那么如何建一栋自己喜欢的房子呢,过程是怎样的呢?接下来我会和大家一起来分享我的一个建房过程!
31616880 2021-02-26 15:3515116 12
标签简介
大家都在讨论"装修日记"赶紧来看看吧~



