-
大家指点互讨
大家互讨
19583539 2021-02-20 20:421907 8
-
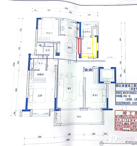
135㎡简约风之家,质感与舒适拉满~
项目地址 / Address:金色钱塘设计施工 / Co :铭品装饰风格 / Style:现代简约项目面积 / Area:134㎡追求**干净、高效、无冗余**的生活方式,审美偏好、性格特征和消费行为与中古风爱好者有明显差异。愿意为高品质、耐用的设计买单,但厌恶“华而不实”的溢价。 偏好“少而精”,而非“多而杂”。崇尚“少即是多” ▲原始户型图以功能主义为核心,强调简洁、高效、无冗余现代简约风不
铭品DESIGN 2025-10-18 15:4932169 1
-
封窗结束开启木工争取年前完事
封窗找的祖安 去店里了解了一下感觉老板人还可以现场拍的照片除了我加的外开下悬的五金跟店里的样品也是一毛一样 ps:注胶的细节玻璃装上就看不到了 打胶师傅技术还是杠杠的 平整度也OK 大玻璃因为太大了一直凑不够人所以大晚上8个人过来加班了(黑灯瞎火的内心慌的一批,还好有惊无险) 到这就结束回家了 整体图片过两天更新
昨夜安 2025-01-12 11:503577 4
-
欧派衣柜避坑,颗粒板、木渣板避坑
欧派衣柜 购买服务体验:差评。签合同的时候就让全款付掉了,然后后期有更改,玻璃门外面定(相差10倍的价格,他们这算了一千多),他们也没退钱,说是有抽屉没算,和抽屉费用抵消掉了;设计师设计不成熟,材料用的不对称,和他们反应后,说是我自己签字过的;设计师说外面买灯带便宜一些,柜子移门玻璃门早点定,到时候全屋定制师傅来的时候帮忙装一下,付点安装费,谁知来安装了以后,安装师傅就帮忙装了灯带和轮子,收了26
44687280 2025-01-10 07:1019301 11
-
致:铭品公司周关林装修经理的感谢信
尊敬的周关林经理, 您好! 我是云熙望府8-901的业主严女士。我想对您及您的团队在近期完成的装修项目中展现出的专业水准、敬业精神以及出色的成果表示最诚挚的感谢和赞扬。作为项目的直接受益者,我深感荣幸能够与您及铭品公司合作,共同见证这一空间的华丽蜕变。 从项目启动的那一刻起,您就以高度的责任心和细致入微的态度,确保每一个细节都符合我们的期望和要求。您不仅在设计上充分考虑了实用性与美观性的结合,更在
43969585 2024-12-25 09:345316 1
-
地暖
想咨询下各位已经装修的宝子们,家里都选了什么样式的地暖啊?刚开始装修,被选择什么样的地暖难住了,天氟地水,天水地水,电地暖,锅炉地暖,样式太多,商家又主推自己代理的产品,每一个靠谱的,所以想问问已经安装的楼友们。
海浪1979 2024-12-19 12:383250 11
-
二次新房装修来个专业的装修公司或者接活师傅!
需要拆吊顶,全屋壁挂空调改中央空调,需要浇筑阳台,需要改造两个阳台[/11偷笑]需要重新打3套柜子,来报价
月落天澜 2024-12-17 01:076519 11
-
高级百塔的黑胡桃木完工图
黑胡桃天然木皮总是给人高级、百搭的魅力 木作水漆通透,见木不见漆,天然纹理,无需过多装饰,简约之间高级感自来[得意]
兜兜冇餹0304 2024-11-16 01:521693 1
-
【装修日记】龙湖悦天府+99平+半包,目标22万装完
【小区名称】:龙湖悦天府【户型面积】:99.7【装修风格】:本来没什么风格,现在逐渐定下来,我感觉应该是现代+原木吧可能【装修公司】:项目经理【装修方式】:半包【户型图+设计图+房屋实拍图】:之后补,目前太懒了,懒得上传。其中实拍图原图不少于5张。【文字内容】:不少于300字自由发挥部分(可以说说选房经历,选装修公司的经历,或是半包、全包、清包的选择原因;说说与设计师的沟通的过程;说说对户型的分析
饭饭st 2024-10-30 14:576461 11
-
请问杭州电视台生活频道的三家装修公司哪家好
刚买二手房需要翻新重新装修请问杭州电视台生活频道的三家装修公司哪家好亚加装饰 麦博装饰 铭鸿悦家
suxingmxp007 2024-10-22 18:4010346 11
-
【装修日记】云栖望府+144平+全包+现代简约风,开工啦~
【小区名称】:云栖望府【户型面积】:144【装修风格】:现代简约风【装修公司】:品一【装修方式】:全包经过新房收房,和跑了几次装修公司后,定下来装修方案,今天开工啦!记录下。
30850654 2024-07-28 21:598211 11
-
毛坯房,回迁房为什么要先验房?
每天一个装修小知识之~验房服务[/11暗中观察]为什么要验房?保障自身的合法权益:1、以防将来房屋一旦出现质量问题,想找开发商索赔会处于非常不利的地位。2、所有房子都有《住宅质量保证书》,在保修年限内的问题,业主都是有权利要求开发商进行维修的。3、业主在收房的过程中与开发商有些信息是不对称的,专业的验房能帮助业主发现自己不懂的问题及时避坑,以减低拿房风险。[打卡R]验房目的1:找出房屋局部需要修缮
48786324 2024-06-20 04:1315085 11
-
安利装修环节水泥自流平的体验
水泥自流平,打造独特工业风 大家好呀!今天来给大家分享一下我家的水泥自流平装修环节。 水泥自流平的施工过程非常简单,只需要将加水的液体浆料铺散到地面上,它就会自动流淌并填平低洼处,然后固化抛光。不仅施工速度快,价格也经济实惠,以我所在的城市上海为例,施工全包价大约在 40-120 元/平米之间。 我选择了水泥自流平,是因为它的质感和外观与我家的工业风装修风格完美搭配。自流平的水泥色调非常百搭,能
麻辣香郭果果 2024-04-22 08:1034821 11
-
绿洲杀猪盘,扯皮第一流
绿洲杀猪盘,业主当猪猡收钱前小弟,收钱后大哥收了意向金,翻脸不认人虚报高报账,突然就涨价赌你眼昏花,不去细对账暴露厚脸皮,理直气还壮明抢诓客户,态度还恶劣领导没格局,只会瞎扯皮拿钱笑嘻嘻,退钱麻买皮顾客使劲割,名气可劲造抛事实不谈,问就是合同广告打的好,韭菜割的爽如有意向者,千万要谨慎哄骗你入局,步步变被动赚点钱不易,莫让风刮去还好只是交了3000意向金,就当买个教训,及时止损,水电入场前就要交5
小小胖滚 2024-01-29 18:064874 11
-
心海上城|装修中|关于砌墙这事
心海上城|180户型,平面布局160,正在有序的装修中,有几天没来了,师傅在砌墙,刚好有空就来看一下。 电梯里出来,第一眼看见还是熟悉的高端私人定制,哈哈哈!! 才那么两三天的时间没来,师傅就已经快把墙砌好了,感谢我家师傅,工艺绝绝子! 师傅真的把砖砌的很完美,首先是用弹线定位,确定好位置,并会激光水平仪辅助检查墙面垂直度 墙面平整度达到 百分之99,我夸赞师傅手艺好,但万万没想到师傅开始和我吐槽
51811697 2023-10-18 10:453139 4
-
求一位美缝师傅联系方式
西湖区老破小装修目前美缝阶段
48018709 2023-09-09 16:155620 4
-
102㎡的公寓,充盈着极简主义与幸福的旋律,
空间虽不广袤,却足以恣意满足的日常幸福所需,其中微妙的诗意点缀,赋予了这方净土无限的美好意向。
健身的香菇rr9061 2023-08-24 20:134269 4
-
【2023装修日记】我家的柜门安装
以前我觉得柜门安装挺简单的,这次装修我发现里面的门门道道也不少:1、柜门铰链的购买,有大弯,中弯,小弯之分,和柜子的侧壁有关,详细大家可以看下我的图片。所以大家如果铰链是自己购买,一定要和安装的师傅沟通好,确认好。我家的五金就是因为这个,有四个小弯的铰链不能用,因为当时包装已经拆了,无法退货,就浪费了;2、柜门的安装是很讲究经验的,最好找老师傅来弄。因为木工师傅做的柜体不可能完完全全垂平,柜子尤其
betty303 2023-08-19 15:3513256 11
-
【装修日记】椒兰郡118平装修之旅
【小区名称】:椒兰郡【户型面积】:118【装修风格】:现代原木风【装修公司】:平方空间设计【装修方式】:半包【开工时间】:2023.5【 户型图 】:经典四叶草户型
35216738 2023-08-17 14:386227 11
-
出售一台全新未拆封格力空气能热水器
开发商赠送的空气能热水器(内机+外机),格力品牌的,容量150L,全新未拆分的,地址在椒江区,大家可以根据纸壳上型号网上搜索,价格1800元,
39066456 2023-08-02 09:432912 11
标签简介
大家都在讨论"装修日记"赶紧来看看吧~



