-
【2023日立中央空调杯】126㎡三口之家的现代原木风,住着很惬意
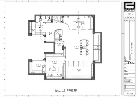
新家今年入住有一段时间了,各方面还是很满意的,今天乘着假期有时间来19楼和大家分享一下~ 房子是去年年末装修完毕,回想这段装修过程还算比较顺利,装修公司呢也没有多比较,因为是朋友介绍的,就直接接触了城建装饰,杭州老品牌公司了,可信度还是加不少分的,给我们推荐的设计师钟丹丹钟工,聊下来感觉也是非常契合,所以在沟通调整好方案之后,很快就开工了。 先说一下房屋的情况,房子是海月花园126㎡三室一厅的户
51355398 2023-09-29 12:2522866 14
-
缤纷,我那童话般的家居梦
一个人来到这个城市上大学,毕业后勤勤恳恳的加了两年的班并且傻傻的觉得这才是激情的生活。 然后,到了现在,想想还是有一个家才是最重要的。 从小到大对于小屋都有着很多幻想,于是在收房之后想着将近十年的美术不能白学,自己操刀花了一周的时间画了小屋子的概念。设计师,特别是工人,被我折磨的估计是崩溃的。 感谢董先生的包容,所有的都按照我的想法执行; 感谢设计师的耐心和专业,把我的想法变成了现实。
50001081 2020-09-17 19:5516331 39
-
【2022日立中央空调杯】500㎡美式住宅,朋友看了都说好
孩子们逐渐长大,开始需要各自的私人空间,考虑到这一点,我和老公商量后决定,买下两套相邻的住宅然后将它改造成一套三层的大房子,这样孩子们也能拥有更多的活动空间。之前住的那套公寓装修也是找的家装公司,所以这次也打算和之前一样,找个靠谱的家装公司设计装修。 因为要装修面积大,每层的户型也不太一样,所以要找到一个整套设计都很满意的设计师和家装公司真的有亿点点难。有去过线下展会,也在线上咨询过,就是怎么都拿
51540012 2022-11-09 17:1911819 23
-
【2023日立中央空调杯】换套跃层重新上岸,原木风的家,真的很棒
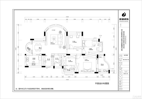
陆续装了小一年的房子终于上岸了,这套房子完全按照我自己的喜好来,所以装修过程中也跟设计师掰扯了蛮久。老公喜欢养鱼,所以预留了部分地方给他的爱好。家里常住人口就三口,孩子上初中了以后我也有更多的时间来做自己想做的事了。 装修公司找的南鸿装饰,金老师这个设计师很负责,经常来工地上看。我日常空闲了也会去工地转转,留下 一些装修过程吧。 家里差不多有160方,所以规划了三室加一些功能区。同时选择了白、灰、
49198532 2023-10-25 16:0627914 12
-
老房改造之料理达人の屋,她家是掉进调色盘里了嘛?这颜色绝了!
内心的世界有多缤纷,映射在现实的世界里就能有多璀璨。 20几岁的C女士,这个年纪特有的朝气,讲话细细的,笑起来很温柔,却是特别有主见,内心装着一个五彩斑斓的世界,对未来满是憧憬。当第一次见到本案设计师,相仿的年纪让她们特别有共同话题,相同的姓氏也让缘分水到渠成,共赴一场关于春暖开花的“盛放”之约 项目地址 / Address:都市水乡水曲苑设计施工 / Co:铭品装饰风格| Style:美式轻奢项
铭品DESIGN 2021-03-18 16:328645 21
-
【2022日立中央空调杯】90后单身青年的精致生活
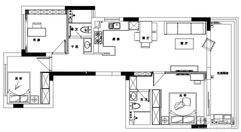
一开始是父亲的朋友推荐,然后家长替我先去考察了一下,后面我自己也探访过杭州不同的软装公司。根据设计能力第六空间的平台落地的能力还包括改造,最终也家里人商量了交由朴森全案落地。 ↑装修前 ↑效果图 客餐厅 对于一个90后来说原来的精装修千篇一律,没有特色,那么我还是想展示更多的一些自我,现在整个改造之后,它还是具有个人的一些特色,原先也没有餐边柜,导致非常不方便。设计师给把整个客厅和餐厅做了一个弧度
45753140 2022-05-10 13:4418931 23
-
【2022日立中央空调杯】166㎡绝美湖景+玻璃书房,宅家堪比度假!
我们家在千岛湖,看中这套房子是因为有一个L型的阳台,直接就能看到湖景,景色非常的不错。所以也是希望在装修中通过对布局的优化,让整屋的布局更加合理化,同时也能让湖景房的优势发挥到最大。因为我的侄女就是室内设计师出身的,所以我一开始就是打算让她来为我进行设计,她的方案我也是很喜欢,但是她对硬装没有还是有些地方不是拿捏的那么准,所以还是打算找装修公司,良工的王茜倩老师,专业知识很过硬,给了几个很好的建议
32800111 2022-11-30 13:1561460 42
-
◆◆◆◆目之所及,简约明朗,260㎡轻奢雅居◆◆◆◆
当喧嚣散去,尘埃落定,短暂的浮华如泡沫般消逝;眼前所见,依然是最初澄澈、静谧的模样。 本案来自紫郡西苑,260㎡260㎡轻奢雅居,装修设计公司:麦丰装饰。 整体以茶灰色为主基调,大理石、木饰面、硬包,金属等元素糅合展现奢雅的会客空间。打破原始的空间格局,设计师以其成熟的手法,重新对家进行定义。给予孩子足够自由的成长空间。
麦丰装饰2007 2021-03-11 19:119859 34
-
22W拎包入住北欧小清新(附淘宝链接)
珊瑚海海平面远方开始阴霾悲伤要怎么平静纯白我的脸上 始终挟带一抹浅浅的无奈~~~ 【基本情况】【小区】:翡丽湾【面积】:89m?【风格】:现代北欧【花费】:22万(所有电器软装配饰加上) 拖了很久的装修帖迟早是要还的,从设计到硬装再到软装摆场拍毕业照搬家,陆陆续续忙了整整一年多的时间,无论是老公、设计师还有项目经理都非常的辛苦,不过最佳女主角当然是我,非常感谢他们对我们这个小家的伟大贡献。决定
46585248 2018-01-05 10:35254603 351
-
别的小朋友都去春游了,你还不去吗?“我直接在家里春游!”
奔波的日子注定是辛苦的,像是颠沛的小船,在滔天的风浪里摇摆,于是渴望港湾的宁静。家,就是我们的港湾,哪怕在外的再多委屈,都能在家里得到治愈。 奔波的日子注定是辛苦的,像是颠沛的小船,在滔天的风浪里摇摆,于是渴望港湾的宁静。家,就是我们的港湾,哪怕在外的再多委屈,都能在家里得到治愈。 案例信息案例地址:杭州玖珑山小区户型类别:公寓户型需求:五室两厅一厨两卫装修风格:北欧简约风格装修公司:铭品装饰户型
铭品DESIGN 2021-04-17 10:176795 18
-
我家被问爆链接!铭品复古 + 智能混搭,让家变加班治愈所~
作为一个天天和代码、逻辑打交道的互联网程序员,我对 “家” 的期待很简单:既要能让我在加班后瞬间松弛,又得有点 “不被工作定义” 的质感。当铭品装饰把这套现代复古风的家交到我手上时,我才明白 —— 原来 “理工男的家” 也能这么有温度! 奶油色的云朵沙发,往上面一瘫,跟我敲完一个版本迭代后的放松感一模一样;旁边的复古落地灯暖光一洒,就像给大脑装了个 “舒缓插件”,加班回来在这儿瘫着刷剧,代码里的
浙里山水客sere 2025-11-02 16:2716117 2
-
平凡生活的最好姿态|现代装修
生活的惬意,来自于对工作闲暇时间的安排,在繁华的工作之后,向往的通常是平静的休息。是对自己生活的一种渴望,纷扰的生活中修行。生活所带来的时代的风,向生活在这个时代的人吹来,盘旋在现代的人们的身边,四处扩散。简约成为了一种态度,简约成为了现代的主流,有态度但又低调的不张扬,是现代主流的思想。 【项目面积】:82㎡【项目风格】:现代风格【项目户型】:一室两厅一书房【常住人口】:一成人【装修公司】:楚邦
50447983 2021-11-09 19:3411571 13
-
108平清新简约北欧两室,大理石背景+大书柜+榻榻米+吧台
玄关,极简置顶白色储物柜,中间部分留空辅以木色修饰,可随手置物。 进入公领域,多面采光的大横厅以功能性家具和顶面横梁作场域分割。 客厅,木色地面搭配浅咖色主沙发,温馨而柔和,圆形原木肌理茶几组与绿丝绒凳为空间丰富质感。 大小不同的两个休闲阳台有着不同的功能,这个独立阳台阳光充沛,规划为安静的阅读与活动区域 餐厅连接另一个休闲阳台,是餐厅的延续,设计吧台配置高高的吧台椅,观景、闲聊、品茶。 主卧,通
亚加装饰始于1994 2021-03-29 14:279845 26
-
60平米混搭风格 说不出的民族风
老帖重发,这是一套60平米两室一厅的房子,装修完成之后,搬家入住,贵在小房子很有特色,就来献丑了。 上一张最得意的干区照片 双台盆早上可以两个人一起用 非常方便 旁边做了一个壁龛 可以放一些零碎的东西 进门正对的就是厨房 右手边是一个顶天立地的柜子 可以放换下的大衣和雨伞一类的东西 左边是一个鞋柜 因为房子小也借此和客厅稍作分割 我觉得大部分人做饭的时候应该都是习惯把乱七八糟的东西都摆在台面上的
32913639 2013-10-14 16:25164928 304
-
【2023日立中央空调杯】170㎡无敌江景奢宅,时髦慵懒不费力!
我作为一位兢兢业业的职场人,特别爱好自娱自乐拍一些小视频,喜欢整体色调偏米色的现代简约风格,在外应酬打拼后,回到家希望能够享受慵懒闲适的生活。日常做的最多的事,就是坐在落地窗边欣赏大气磅礴的江景、看书阅读,亦或是在家里做做西餐喝喝咖啡。但是面对装修预算有限,所以挑了很久也没看好装修公司,后来在19楼看到有人发了自己家的装修毕业照,就私信问了具体情况,后来经过这位楼主介绍认识了都都装饰的客服。加上了
51666117 2023-03-01 16:0451503 33
-
神秘放大术,89方现代轻奢住起来大两倍!
今天要分享的案例,业主是一对年轻夫妻,两人从事金融行业,在买到这个不足90方的小宅之后,最大的设计诉求就是现代化,无主灯,能够整体看起来空间比较大,有个开放式的大厨房就最好了。 他们果断的将这些问题统统抛给了设计师吴宁燕,看她是如何在这个空间里“调配”出让人满意的家。 户型: 二居风格: 轻奢风面积: 89㎡小区:卓越·蔚蓝领秀 户型分析: 1、入户玄关不够开阔,视觉线会显得过分压抑; 2、由于入
都都设计 2023-09-17 18:5918815 9
-
【2022日立中央空调杯】第二次装修,昔日梦中情房终于实现~
时隔大半年,第二套房子装修终于落地了。??ヽ(°▽°)ノ?先说下我第一套的装修,第一套买的是80方的老破小,装修的时候很懵逼,不知道预算,不知道从何开始,因为急于开工,所以找的是施工队,最后选的他们的全包,当时也是看着工头好像蛮老实的做事肯定也放心奥,没想到啊钱没少花,房子给我整的一言难尽,住了五年,漏水开裂一样没少,后面刚好也是遇上孩子上小学要换学校了,立马置换了新的,因为第一次的装修事故,所以
51331611 2022-03-29 14:2513911 10
-
【秀家大赛】80方老破小,焕发新生!!!
小区: 杭州·南肖埠 面积: 建面80.25㎡,套内68.85㎡ 风格: 现代 户型: 两室一厅一厨一卫 投入: 半包7万 常住人口: 3人装修公司:恒彩装饰 我们一家三口原本住在爷爷奶奶家里,后来为了能有一个独立的空间,特意在爷爷奶奶边上买了一套小户型,离家近一点,也是为了家里的宝贝上学。作为一个比较老的小区,除了没有电梯之外,其他周边配套都还可以,学校,医院,是妥妥的学区房。 小区楼外摄 既然
49838224 2020-05-22 17:15108009 284
标签简介
你家装修花了多少钱?装成了什么样子?快来晒晒吧!



